SO41 0FG - 4 bedroom house for sale in Woodcock Lane, Hordle, Hampshir…

View on Property Piper

4 bedroom house for sale in Woodcock Lane, Hordle, Hampshire, SO41

Summary - 7 Woodcock Lane, Hordle, LYMINGTON SO41 0FG

4 bed 2 bath House

Well-presented four-bedroom village home with garage, gardens and top-floor conversion potential.
Four double bedrooms including large top-floor studio potential bathroom addition
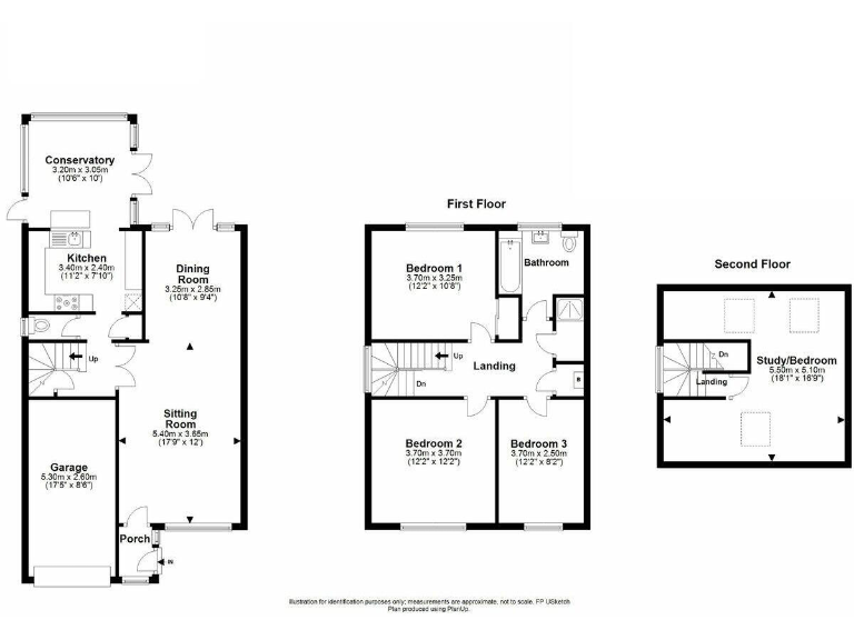
Set on a quiet street in Hordle Village, this substantial four-bedroom home suits an established family seeking space and scope. The well-presented ground floor offers three reception rooms, a generous living/dining area with doors to the rear garden and an open-plan kitchen with central island leading to an orangery — ideal for everyday family life and entertaining.

Upstairs are three double bedrooms, a family bathroom and a separate shower room; a large top-floor studio (bedroom four) occupies the entire second floor and provides clear potential to add an additional bathroom. Practical features include an integral garage, driveway parking for several vehicles, gas central heating and double glazing.

The plot is a comfortable village-sized rear garden with patio, lawn and established borders plus an alfresco pergola area. EPC band D and the likely absence of cavity wall insulation date the house to the late 1960s/1970s and mean modest energy-improvement work could reduce bills and add value.

This property balances move-in-ready presentation with straightforward opportunities to modernise (top-floor bathroom addition, insulation upgrades). Located close to outstanding primary schooling and local amenities, it’s an easy family move with low local crime and good broadband speeds.

Property Details

Brochure Descriptions

Image Descriptions

Floorplan Description

Rooms

Textual Property Features

Target Audience

AI Tags

Detected Visual Features

EPC Details

Nearby Schools

Nearest Bars And Restaurants

,,,,}

Nearest General Shops

,,}

Nearest Grocery shops

,,}

Nearest Supermarkets

,,}

Nearest Religious buildings

,,}

Nearest Medical buildings

,,,}

Nearest Airports

,}

Nearest Leisure Facilities

,,,,}

Nearest Tourist attractions

,,}

Nearest Train stations

,,,,}

Nearest Bus stations and stops

,,,,}

Nearest Hotels

,,}

Tags

Local Market Stats

AirBnB Data

Similar Properties

Meta

High Res Images

Compatible Images

Low res Images

Thumbnails

Raw Images

High Res Floorplan Images

Compatible Floorplan Images

Low res Floorplan Images

FloorplanImages Thumbnail

Raw Floorplan Images