**Development Opportunity Highlights:**
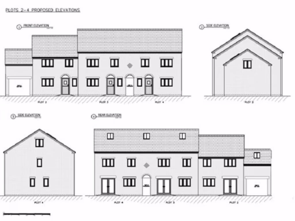
- Full planning consent for conversion and new builds (Planning Ref 23/00647/FUL)
- Conversion of an existing barn into a spacious 3-bedroom dwelling
- Six new three-bedroom homes (mix of two and three stories)
- Off-street parking, gardens, and landscaped areas included
- Excellent communication links to M1, M42, and East Midlands Airport
- Chain-free and freehold tenure
This unique property offers a rare development opportunity in a peaceful area of Hathern, perfect for investors or builders looking to create a vibrant residential community. The plans allow for the conversion of a charming barn into a three-bedroom home, alongside the construction of six new builds that cater to family needs with various layouts and spacious interiors. Each new home boasts three bedrooms and incorporates functional designs with ample gardens and parking, ideal for those who prioritize comfort and outdoor space.
Situated in an affluent local community with strong transport links and attractive amenities, this offering is not just about development; it's about creating a lifestyle where families can thrive. The tranquil setting enhances the allure, providing a suburban retreat with convenient access to city centers. Opportunities like this are scarce in today's market—don’t miss your chance to secure a promising investment in a growing neighborhood!
Land for sale in Shepshed, Loughborough, LE12 — £625,000 • 1 bed • 1 bath • 1028 ft²
Land for sale in Smiths Crescent, Coalville, Leicestershire, LE67 — £500,000 • 1 bed • 1 bath
Land for sale in Land on the South East Side of Burns Street, Heanor, Derbyshire, DE75 — £500,000 • 3 bed • 1 bath
Land for sale in Development Site, Barns at Top House Farm, Dalbury Lees, DE6 — £550,000 • 1 bed • 1 bath • 24829 ft²
Land for sale in Loughborough Road, Hoton, LE12 — £650,000 • 1 bed • 1 bath
Land for sale in Land adj to No.2 Seymour Road, LE12 — £120,000 • 3 bed • 1 bath






















