Compact, practical apartment with two parking spaces and long lease.
Chain-free first-floor flat with long 953-year lease
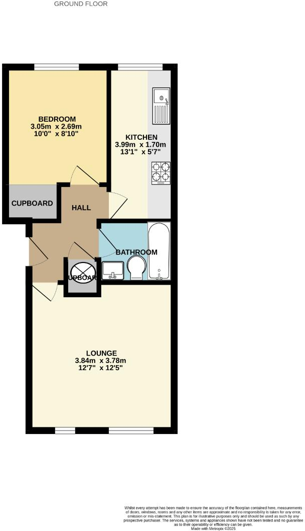
Compact 317 sq ft footprint, suitable for single occupancy
Two allocated off-street parking spaces — rare and valuable
Double bedroom with fitted wardrobes, separate sitting/dining room
Kitchen with electric oven and hob; bathroom has electric shower
Electric storage heating — potential higher winter running costs
Tenant served notice; vacant possession achievable on completion
Council tax listed as very cheap
This chain-free, one-bedroom first-floor apartment offers a compact, low-maintenance home or straightforward buy-to-let in western Bury St Edmunds. At 317 sq ft the layout is economical: a sitting/dining room, separate kitchen with electric oven and hob, double bedroom with fitted wardrobes, and a bathroom with an electric shower. Two allocated off-street parking spaces are a practical rarity for flats in this area.
The property sits on a modern 1990s development with double glazing and cavity walls; the lease is long (953 years), reducing upfront lease concerns for buyers. Monthly running costs may be lower than average — council tax is described as very cheap — but the apartment uses electric storage heating, so consider potential energy costs in colder months.
This apartment is well suited to a first-time buyer seeking a low-complexity purchase or an investor targeting a straightforward tenancy. The current tenant has been served notice, allowing for a vacant possession sale, and the chain-free status supports a quicker transaction. The accommodation is small, so it will suit buyers wanting compact, manageable space rather than larger family living.
Important practical points: the footprint is limited and interior space is modest, so furniture and storage options are constrained. There’s no evidence of recent major upgrades to heating or kitchen appliances, so buyers wanting modern systems should budget for possible improvements.
1 bedroom ground floor flat for sale in Sussex Road, Bury St. Edmunds, IP32 — £100,000 • 1 bed • 1 bath • 410 ft²
2 bedroom flat for sale in Denham Close, Bury St Edmunds, IP33 — £150,000 • 2 bed • 1 bath • 490 ft²
2 bedroom apartment for sale in Chantry Court, Cotton Lane, Bury St. Edmunds, IP33 — £160,000 • 2 bed • 1 bath • 436 ft²
2 bedroom ground floor flat for sale in Trinity Mews, Bury St Edmunds, IP33 — £160,000 • 2 bed • 1 bath • 463 ft²
2 bedroom flat for sale in Corsbie Close, Bury St. Edmunds, IP33 — £160,000 • 2 bed • 1 bath
1 bedroom apartment for sale in Bridewell Lane, Bury St. Edmunds, IP33 — £200,000 • 1 bed • 1 bath • 700 ft²


































