**Standout Features:**
- Two-bedroom mid-terrace property
- Requires renovation and modernization
- Spacious lounge and dining room
- Enclosed rear yard with passageway access
- On-street parking available
- Energy efficient with external insulation
- Auction sale with a guide price of £65,000
- Closing date for bids: 12 noon, Wednesday, 2 September
**Summary:**
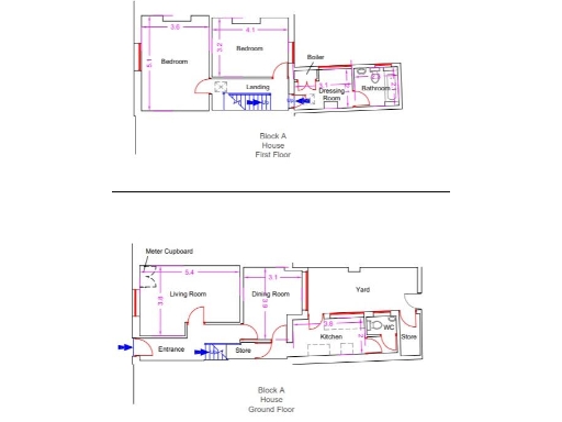
Unlock the potential of this two-bedroom mid-terrace property, a blank canvas ideal for homeowners with a vision. It features a traditional brick façade and comprises a cozy lounge, dining room, kitchen, and WC on the ground floor. The first floor includes two bedrooms, a handy dressing room, and a bathroom – all basking in natural light from double-glazed windows. While it requires repair and modernization, the presence of modern insulation offers energy efficiency advantages.
Situated in a transitional neighborhood of Goole, this home presents a unique opportunity for first-time buyers or investors looking for renovation prospects. Enjoy the convenience of on-street parking and an enclosed yard, perfect for private outdoor enjoyment. Local amenities, such as schools, shops, and leisure options, are all within easy reach. Act quickly to take advantage of this auction property—this opportunity won't last!
3 bedroom terraced house for sale in Marshfield Road, Goole, East Riding of Yorkshire, DN14 — £75,000 • 3 bed • 1 bath • 573 ft²
2 bedroom terraced house for sale in Marshfield Road, Goole, East Yorkshire, DN14 — £70,000 • 2 bed • 1 bath • 636 ft²
3 bedroom semi-detached house for sale in Western Road, Goole, DN14 6QP, DN14 — £167,500 • 3 bed • 1 bath • 733 ft²
3 bedroom terraced house for sale in Kent Road, Goole, DN14 — £86,000 • 3 bed • 1 bath • 807 ft²
2 bedroom terraced house for sale in Newclose Lane, Goole, DN14 — £130,000 • 2 bed • 1 bath • 840 ft²
2 bedroom end of terrace house for sale in Argyle Street, Goole, DN14 — £85,000 • 2 bed • 1 bath • 714 ft²


































