SK10 1JQ - 3 bedroom terraced house for sale in The Baths, Canal Stree…

View on Property Piper

3 bedroom terraced house for sale in The Baths, Canal Street, Macclesfield, SK10

Summary - The Baths, Canal Street, Macclesfield SK10 1JQ

3 bed 3 bath Terraced

Modern three-bed townhouse with southerly garden and commuter-friendly location.
Three bedrooms and three bathrooms, including master ensuite and dressing area
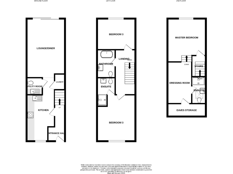
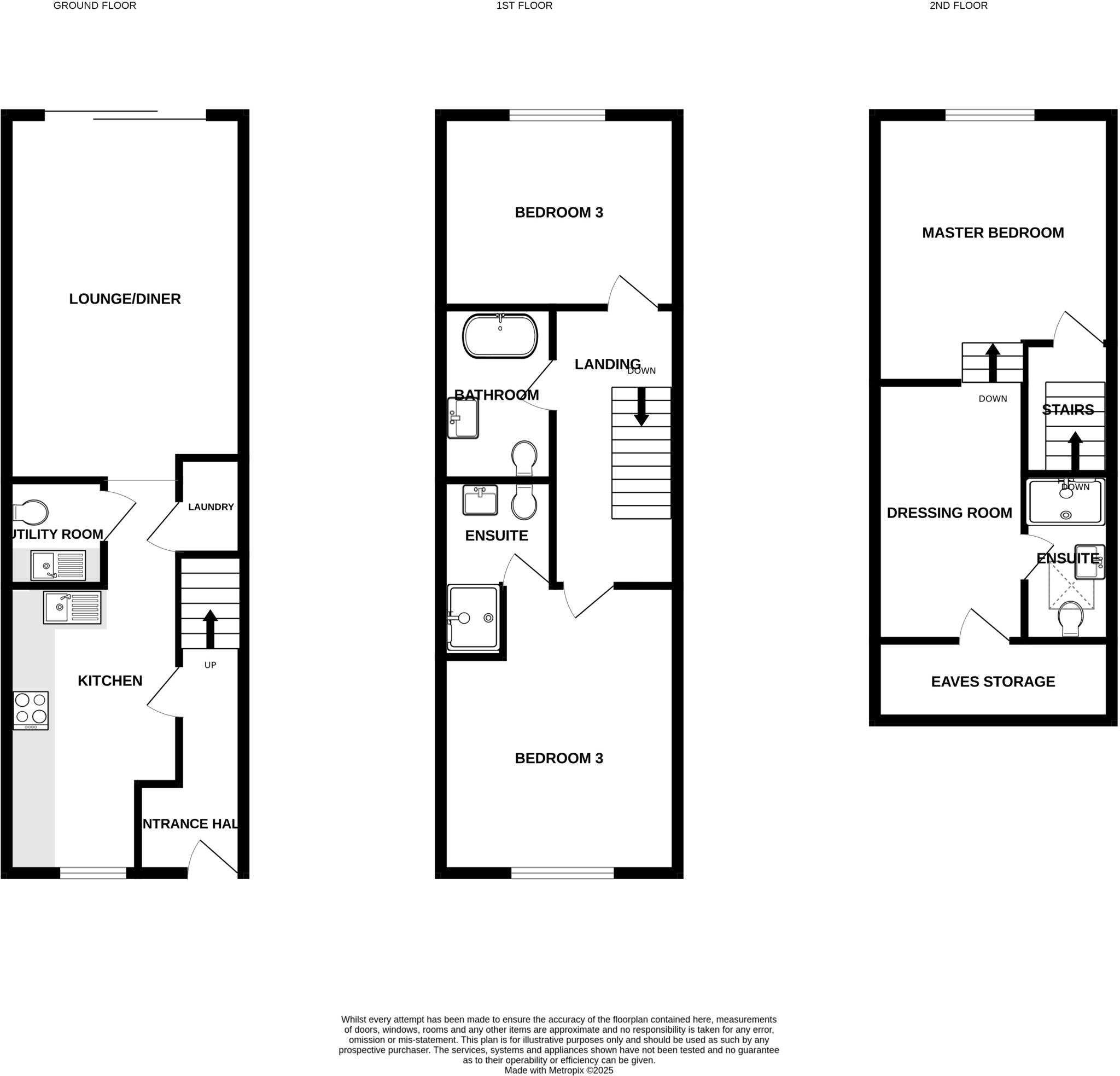
This three-bedroom terraced townhouse in Canal Street balances modern style with practical family living. The show-home presentation highlights a bright open-plan ground floor with herringbone flooring, a well-equipped kitchen, and large sliding doors that open onto a southerly-facing, low-maintenance rear garden.

The second- and third-floor layout suits families who need separate sleeping and working spaces: two double bedrooms with ensuite facilities plus a vaulted master suite with a dressing area or home-office landing. The property includes allocated off-street parking, an EV charging point and comes freehold with a 10-year new-build warranty for added peace of mind.

Important considerations: the home is compact (circa 790 sq ft) and sits on a very small plot, so outdoor space and storage are limited. As a terraced new-build in an urban setting, it’s best suited to buyers prioritising low-maintenance, commuter-friendly living rather than large gardens or expansive interiors.

Location is convenient for Macclesfield town centre and the train station, with good commuting links via the A523 and local amenities within walking distance. This property will appeal to families and professionals seeking a contemporary, low-upkeep home close to transport and schools.

Property Details

Image Descriptions

Floorplan Description

Rooms

Textual Property Features

Target Audience

AI Tags

Detected Visual Features

Nearby Schools

Nearest Bars And Restaurants

,,,,}

Nearest General Shops

,,}

Nearest Grocery shops

,,}

Nearest Supermarkets

,,}

Nearest Religious buildings

,,}

Nearest Medical buildings

,,,}

Nearest Airports

}

Nearest Leisure Facilities

,,,,}

Nearest Tourist attractions

,,}

Nearest Train stations

,,,,}

Nearest Bus stations and stops

,,,,}

Nearest Hotels

,,}

Tags

Local Market Stats

AirBnB Data

Similar Properties

Meta

High Res Images

Compatible Images

Low res Images

Thumbnails

Raw Images

High Res Floorplan Images

Compatible Floorplan Images

Low res Floorplan Images

FloorplanImages Thumbnail

Raw Floorplan Images