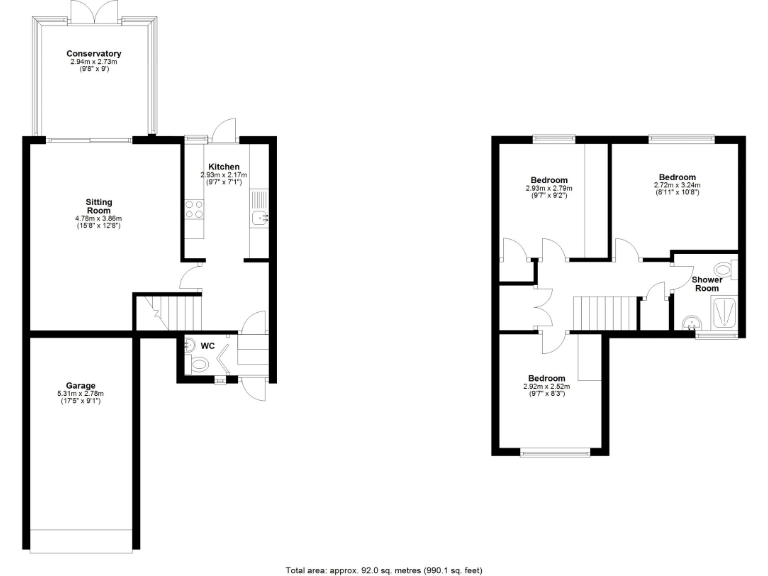
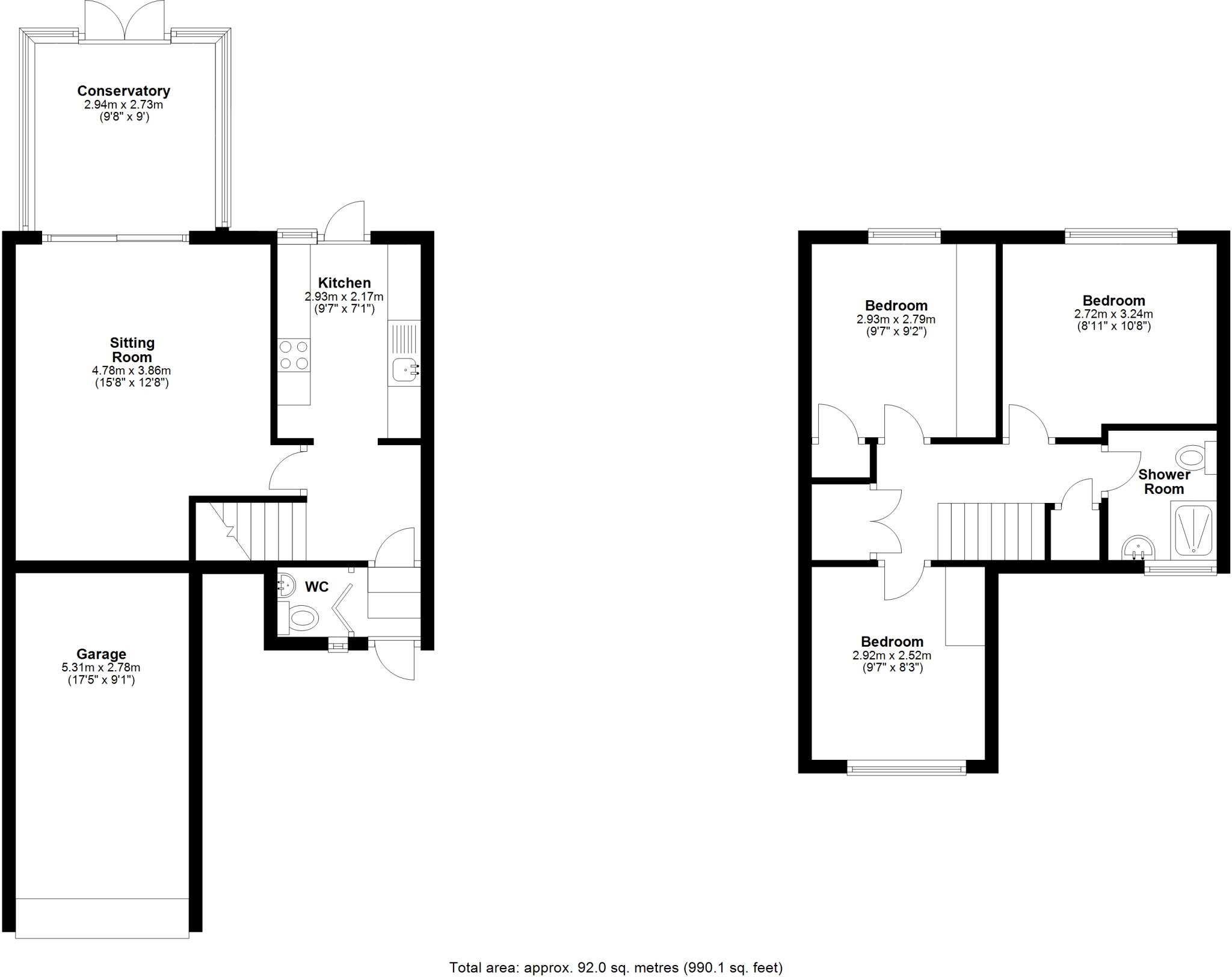
Practical town living with garage and conservatory for small families.
3 double bedrooms with built-in wardrobes and upstairs shower room
Conservatory connects sitting room to small private rear garden
Driveway space for one car plus a front garage
Freehold tenure; EPC rated C, mains gas central heating
Small overall size (approx. 615 sq ft) — limited living space
High local recorded crime level — factor into purchase decision
Modest garden and plot size, low maintenance but limited outdoor space
Broadband: ultrafast available locally (80/20) but actual speeds reported slow
This compact three-bedroom terraced house in Alnwick offers practical family living on a small footprint. The ground floor provides a sitting room with direct conservatory access, a fitted kitchen with integrated appliances, and a convenient ground-floor WC — useful for busy households. Upstairs, two double bedrooms include fitted wardrobes and there is a shower room; overall accommodation suits a small family or downsizer.
Outside there is a modest private rear garden with decking and seating, plus off-street parking for one car and a front garage. The property is freehold and has an EPC rating of C, mains gas central heating, double glazing and cavity walls with partial insulation assumed — sensible starting points for running costs and improvement.
Buyers should note the house is small (approximately 615 sq ft) and sits in an area with relatively high recorded crime; the plot and garden are modest compared with larger family homes. Broadband details are mixed: ultrafast service (80/20 Mbps) is advertised locally but reports indicate slower speeds in practice — verify independently. Overall this is a practical, well-located town property with straightforward maintenance and scope for modest updating.
3 bedroom terraced house for sale in Arkle Court, Alnwick, NE66 — £199,950 • 3 bed • 1 bath • 879 ft²
3 bedroom detached house for sale in Allerburn Lea, Alnwick, NE66 — £325,000 • 3 bed • 2 bath • 1041 ft²
3 bedroom semi-detached house for sale in Coopers Close, Alnwick, NE66 — £260,000 • 3 bed • 2 bath • 1053 ft²
3 bedroom terraced house for sale in Blakelaw Court, Alnwick, NE66 — £185,000 • 3 bed • 1 bath • 738 ft²
3 bedroom semi-detached house for sale in Whitesmiths Way, Swordy Park, Alnwick, Northumberland, NE66 — £265,000 • 3 bed • 2 bath • 1098 ft²
3 bedroom terraced house for sale in Upper Howick Street, Alnwick, Northumberland, NE66 — £240,000 • 3 bed • 2 bath • 1296 ft²






































