**Standout Features:**
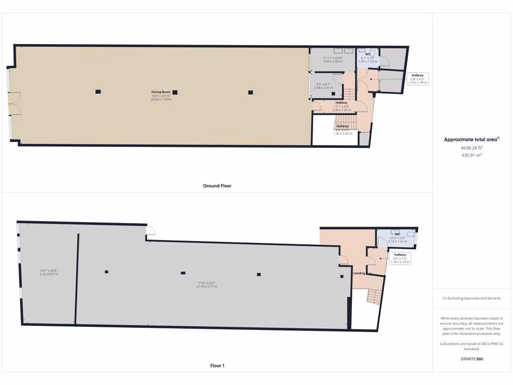
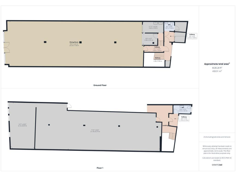
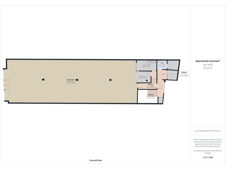
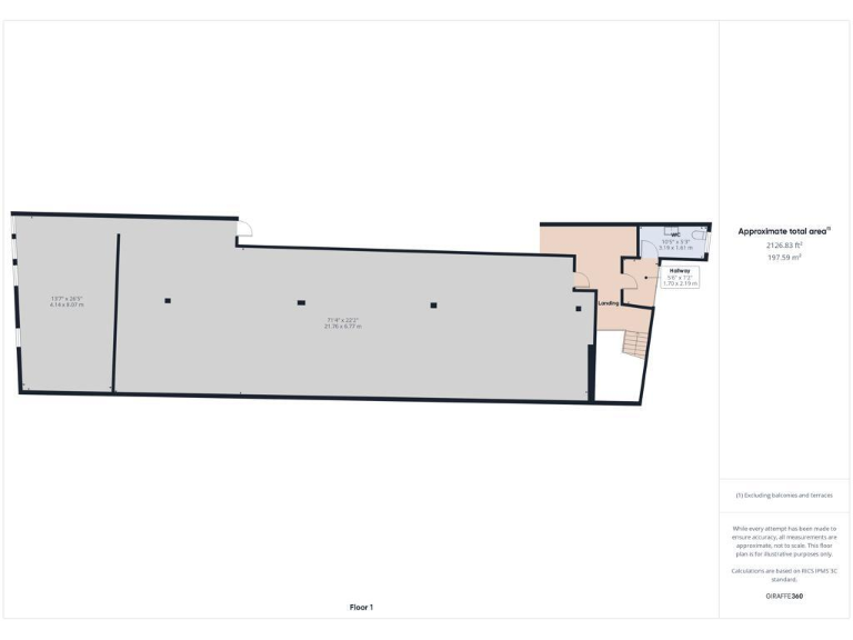
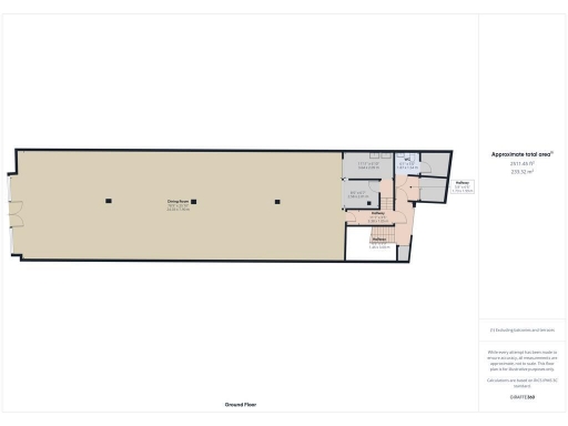
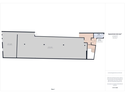
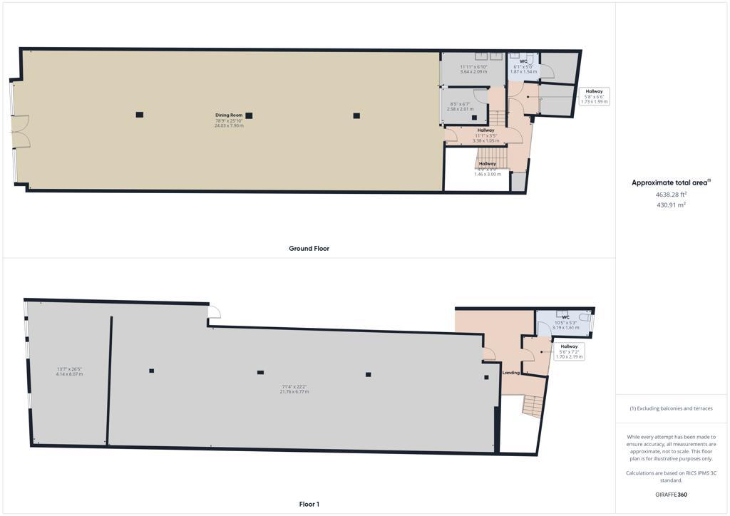
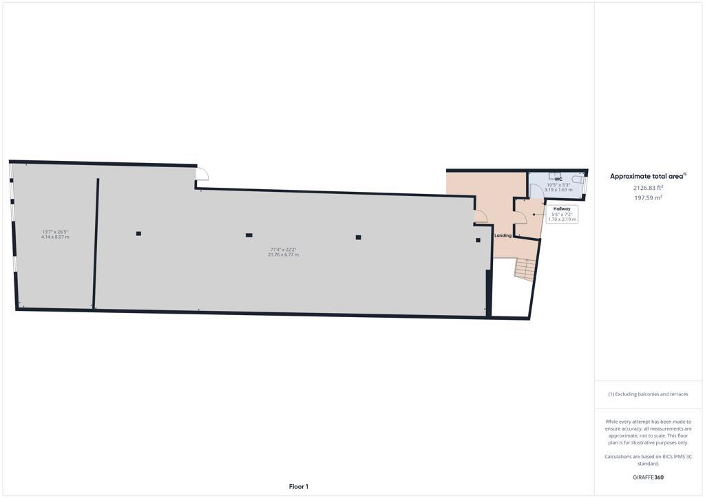
- **Spacious Layout:** Over 4,600 square feet of adaptable retail space across two levels.
- **Prime Location:** Situated between Morecambe's bustling town centre and the iconic promenade, ensuring maximum visibility and foot traffic.
- **Versatile Use Potential:** Suitable for various business types with the possibility for change of use.
- **Functional Amenities:** Includes rear goods lift, disabled toilet facilities, and staff rooms.
- **Realistic Pricing:** Priced at £225,000 for a quick sale, making it an attractive investment opportunity.
**Summary:**
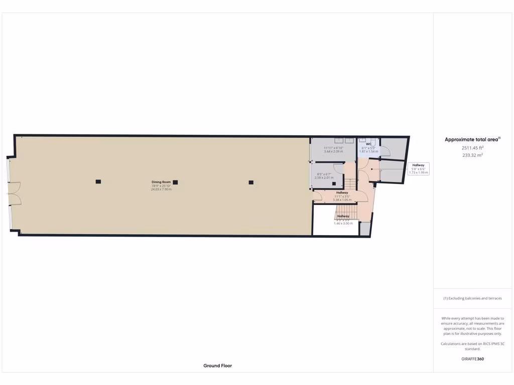
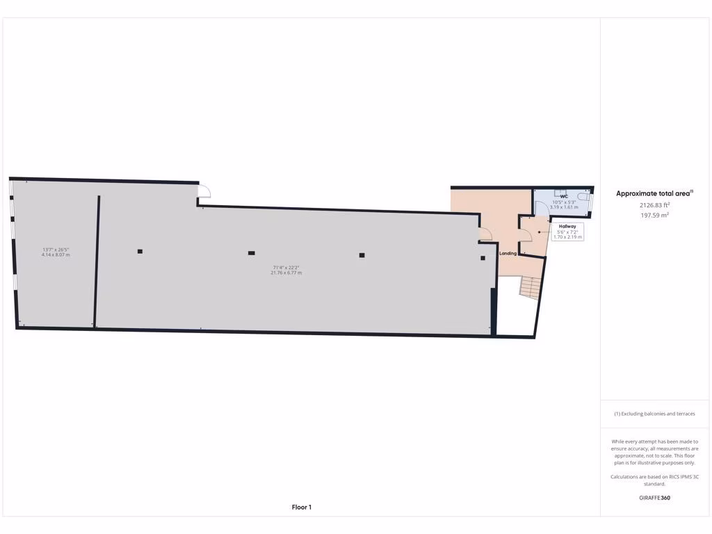
Lunedale House on Euston Road presents an exceptional opportunity for retail investors looking to establish a presence in Morecambe’s vibrant commercial landscape. With ample accommodation spread over two floors, this property offers a generous 4,638 square feet of flexible space, making it ideal for diverse business applications.
Located strategically between the lively town centre and the promenade, it captures both local and tourist footfall, taking advantage of nearby amenities such as cafes, boutiques, and entertainment options. The premises also features essential facilities including a rear goods lift and staff areas, all within proximity to major transport routes, ensuring ease of access for both customers and deliveries.
While the surrounding area has a noted high crime rate and the property may require some renovations, its competitive pricing and strong potential for growth cannot be overlooked. Viewing is highly encouraged to appreciate the full potential of this significant retail opportunity—don’t miss out on securing a prime location in a burgeoning coastal town!
High street retail property for sale in Euston Road, Morecambe, LA4 5DG, LA4 — £100,000 • 1 bed • 1 bath • 1488 ft²
Shop for sale in Lunedale House Market Street, Morecambe, LA4 5DW, LA4 — £395,000 • 1 bed • 1 bath • 4650 ft²
High street retail property for sale in Euston Road, Morecambe, LA4 5DG, LA4 — £100,000 • 1 bed • 1 bath • 1393 ft²
5 bedroom house for sale in Marine Road Central, Morecambe, LA4 — £350,000 • 5 bed • 1 bath • 1013 ft²
Commercial property for sale in Marine Road Central, Morecambe, LA4 — £320,000 • 1 bed • 1 bath • 2955 ft²
High street retail property for sale in 33 Market Street, Lancaster, Lancashire, LA1 — £375,000 • 1 bed • 1 bath • 2513 ft²






































































































