**Standout Features:**
- Prime two-storey retail unit in Morecambe Town Centre
- Highly visible glass storefront for maximum foot traffic exposure
- Versatile layout suitable for retail, offices, or dining establishments
- Excellent accessibility with both high street and rear entrance
- Located near shopping amenities and public transportation options
- Close proximity to ongoing development, including the proposed Eden Project Morecambe
---
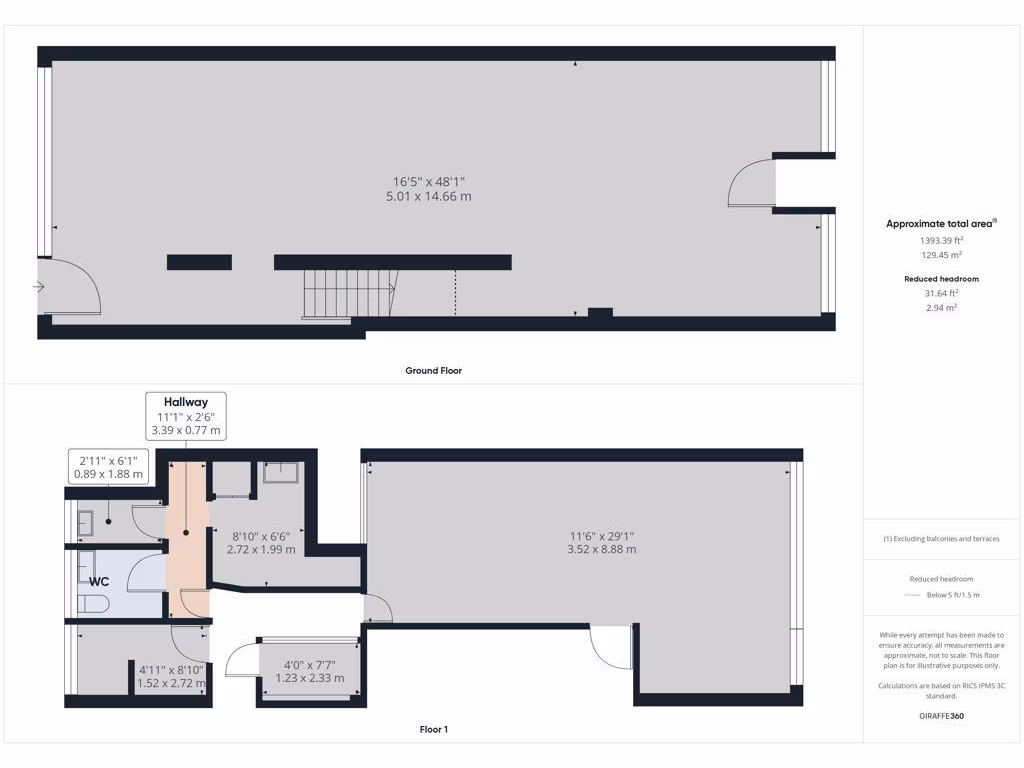
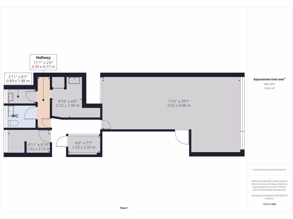
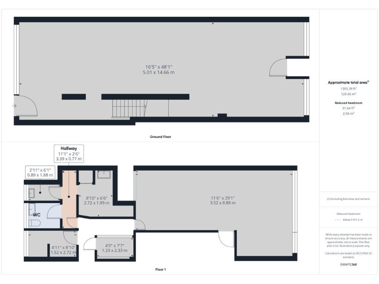
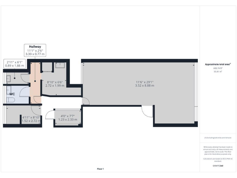
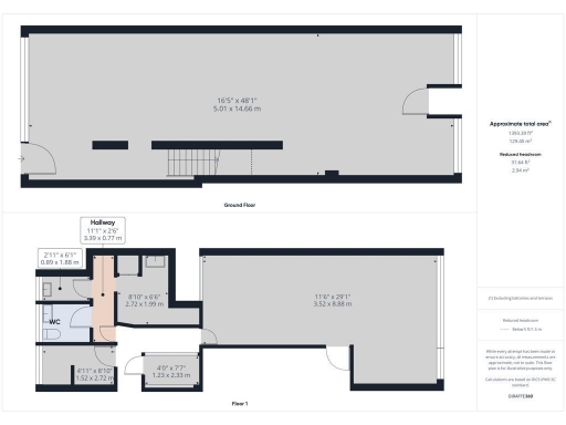
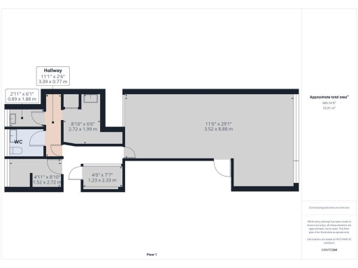
This impressive two-storey retail unit is situated in the bustling heart of Morecambe Town Centre, ensuring high visibility and foot traffic for any business. The expansive glass front enhances the property's appeal, inviting customers and providing a welcoming atmosphere. With its flexible layout, this space can effortlessly adapt to a variety of uses, from retail to offices or even dining, making it an ideal investment for established businesses and startups alike.
Investors will appreciate the unit's prime location, just a stone's throw from the Arndale Shopping Centre and adjacent to multiple public car parks, which makes accessibility a breeze. Furthermore, ongoing regeneration initiatives in Morecambe, including the much-anticipated Eden Project, promise to enhance local attraction and community vitality. Note that while the property is equipped with mains water and electricity, it may require some minor renovations to fully realize its potential. With a competitive price point of £100,000, this is an exclusive opportunity not to be missed in a rapidly developing area.
High street retail property for sale in Euston Road, Morecambe, LA4 5DG, LA4 — £100,000 • 1 bed • 1 bath • 1488 ft²
High street retail property for sale in Lunedale House, Euston Road, Morecambe, LA4 5DB, LA4 — £225,000 • 1 bed • 1 bath • 4638 ft²
Shop for sale in Lunedale House Market Street, Morecambe, LA4 5DW, LA4 — £395,000 • 1 bed • 1 bath • 4650 ft²
High street retail property for sale in Euston Road, Morecambe, LA4 5DD, LA4 — £190,000 • 1 bed • 1 bath • 1978 ft²
Commercial property for sale in Marine Road Central, Morecambe, LA4 — £320,000 • 1 bed • 1 bath • 2955 ft²
5 bedroom house for sale in Marine Road Central, Morecambe, LA4 — £350,000 • 5 bed • 1 bath • 1013 ft²






























































