Quiet village home with large basement and garden near Loch Ness.
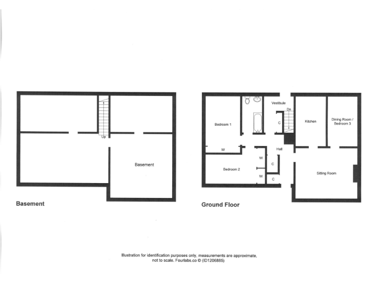
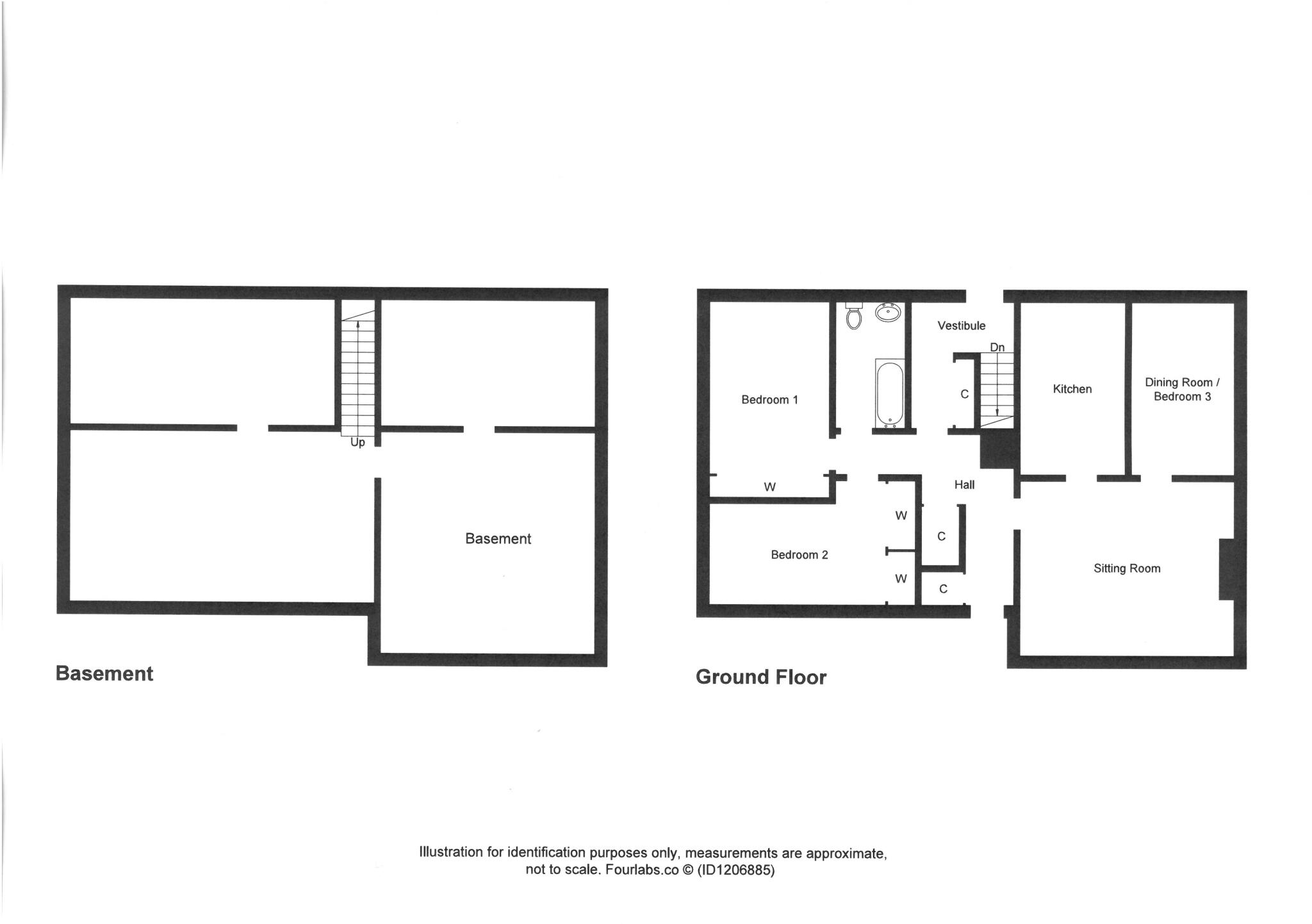
Deceptively spacious single-storey bungalow footprint
A deceptively spacious two-bedroom bungalow set in the quiet hamlet of Lower Foyers, close to village amenities and around 20 miles from Inverness. The single-storey layout, generous basement and wrap-around garden offer clear scope to create a comfortable long-term home in a peaceful, scenic location by Loch Ness.
The property requires renovation and modernisation — the kitchen is dated and fixtures are from the 1970s, and internal rooms will benefit from updating. Heating is gas-fired and the large basement occupies the full footprint, offering extensive storage or conversion potential subject to inspection and consent.
Practical positives include excellent mobile signal and fast broadband, off-street parking can be created to the side, and the site benefits from mature planting and a lawn. Note the area is classified as very deprived and council tax is above average; buyers should factor running costs and local market context into their plans.
This bungalow will suit a buyer seeking a quieter village or downsizing lifestyle with space to personalise. With some investment the house could become a comfortable, low-maintenance home or retain rental potential for those targeting the Highlands market close to tourist facilities and outdoor recreation.
Property for sale in Lower Boglashin, Drumnadrochit, IV63 — £230,000 • 1 bed • 1 bath
3 bedroom semi-detached house for sale in 9 Riverside, Foyers, Inverness, IV2 6YH, IV2 — £180,000 • 3 bed • 1 bath • 1109 ft²
6 bedroom detached house for sale in Foyers, Inverness, IV2 — £675,000 • 6 bed • 5 bath • 3684 ft²
3 bedroom bungalow for sale in Tigh Na Coine, 66 Balmacaan Road, Drumnadrochit, IV63 6UR, IV63 — £320,000 • 3 bed • 2 bath • 1323 ft²
2 bedroom semi-detached bungalow for sale in 39 Coiltie Crescent, Drumnadrochit, IV63 6TR, IV63 — £175,000 • 2 bed • 1 bath • 540 ft²
4 bedroom detached house for sale in Cul-A-Mhuilinn, Milton, Drumnadrochit, IV63 — £425,000 • 4 bed • 2 bath • 1928 ft²


















































