**Standout Features:**
- 3 Bedrooms plus attic room
- Eco-friendly with air source heating and solar panels
- Multi-fuel fireplace in a modern lounge
- Covered pergola and spacious raised decking with scenic views
- Quiet, semi-rural location with ample off-road parking
- Workshop and garden shed with electricity
- Close to Ammanford town amenities and M4 motorway
**Potential Concerns:**
- Structural details indicate no insulation in cavity walls
- Slightly dated double glazing installed before 2002
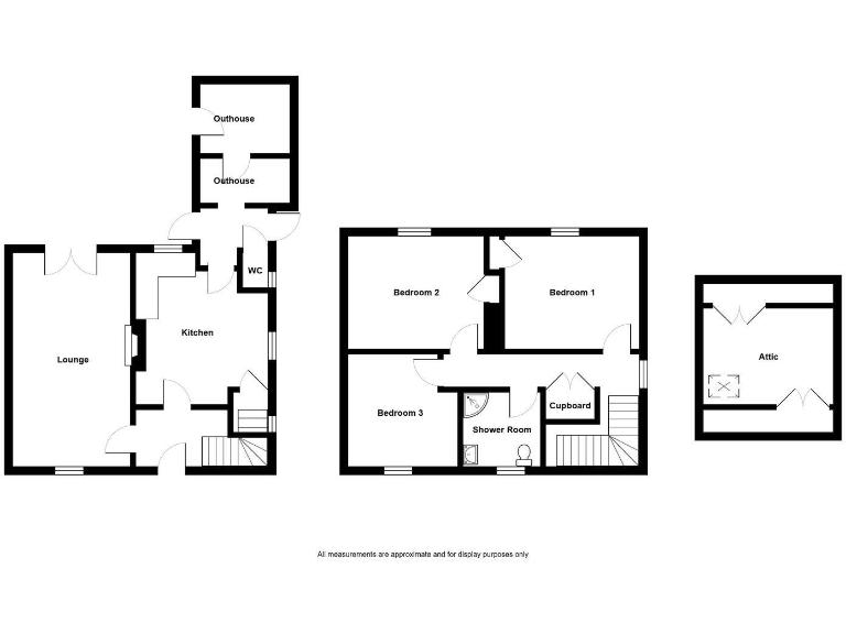
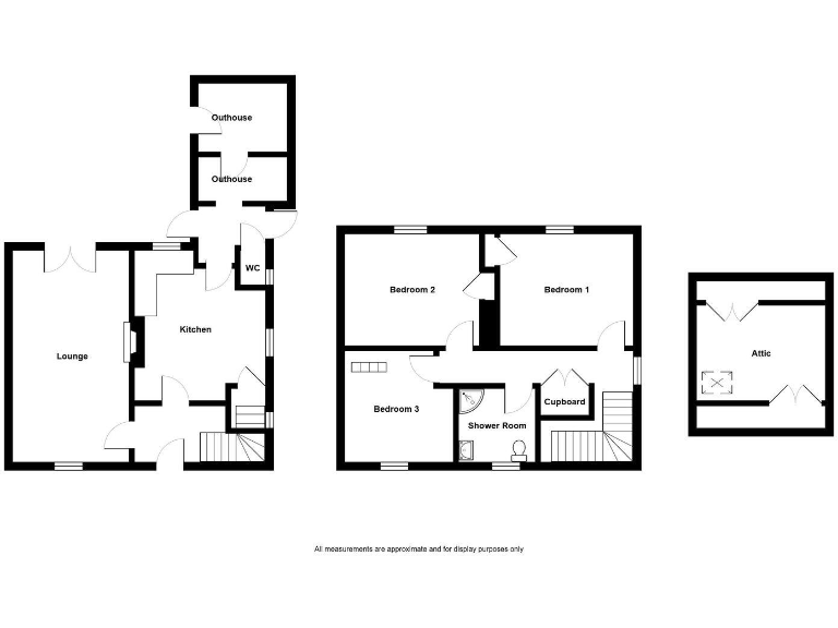
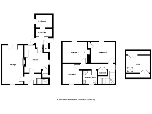
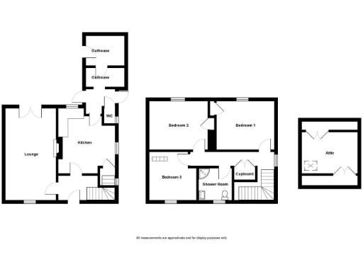
This charming three-bedroom semi-detached home in the picturesque village of Garnswllt offers a blend of modern comfort and rural tranquility. The inviting lounge, warmed by a multi-fuel fireplace, flows seamlessly into a well-equipped kitchen with a walk-in pantry. French doors open to a stunning rear garden featuring a covered pergola, raised decking overlooking farmland, and a workshop for your DIY projects. Enjoy year-round efficiency with fitted solar panels and air source heating. Although the property has some vintage features, including older double glazing and uninsulated cavity walls, it presents an excellent opportunity for further renovations.
Families and first-time buyers will appreciate the spacious design and the peaceful, community-oriented locale, while investors will notice the property's strong rental potential. With the added convenience of Ammanford's amenities just a short drive away, this home represents a comfortable and picturesque retreat—an opportunity that won’t last long! Secure your future and envision your life in this idyllic setting today.
3 bedroom semi-detached house for sale in Heol Y Garn, Garnswllt, SA18 2RN, SA18 — £187,500 • 3 bed • 1 bath • 840 ft²
3 bedroom semi-detached house for sale in Penyrallt, Garnant, Ammanford, SA18 — £165,000 • 3 bed • 1 bath • 1006 ft²
3 bedroom semi-detached house for sale in Maes Y Bedol, Garnant, Ammanford, SA18 — £165,000 • 3 bed • 2 bath • 1109 ft²
5 bedroom semi-detached house for sale in Heol Y Garn, Garnswllt, SA18 2RN, SA18 — £275,000 • 5 bed • 3 bath • 2164 ft²
3 bedroom semi-detached house for sale in Glyn Road, Lower Brynamman, Ammanford, Carmarthenshire., SA18 — £200,000 • 3 bed • 1 bath • 980 ft²
3 bedroom detached house for sale in Lon Y Felin, Ammanford, SA18 — £295,000 • 3 bed • 1 bath • 1777 ft²






















































































