**Standout Features:**
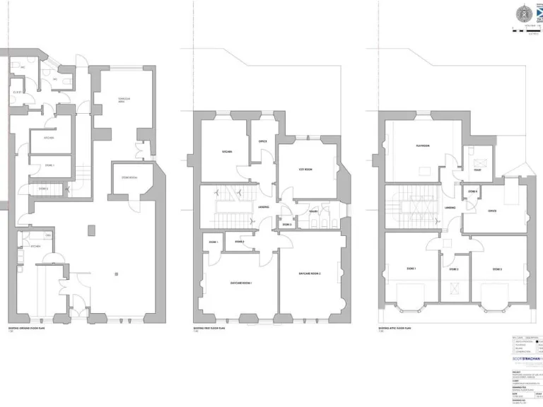
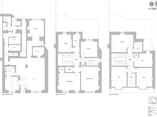
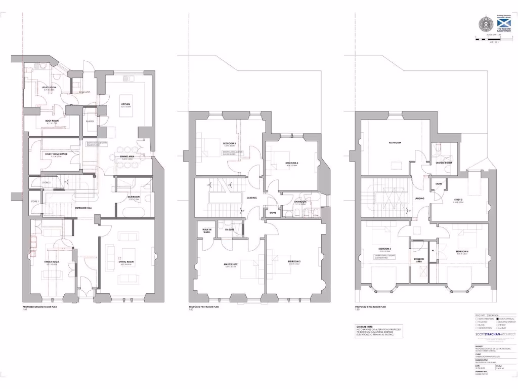
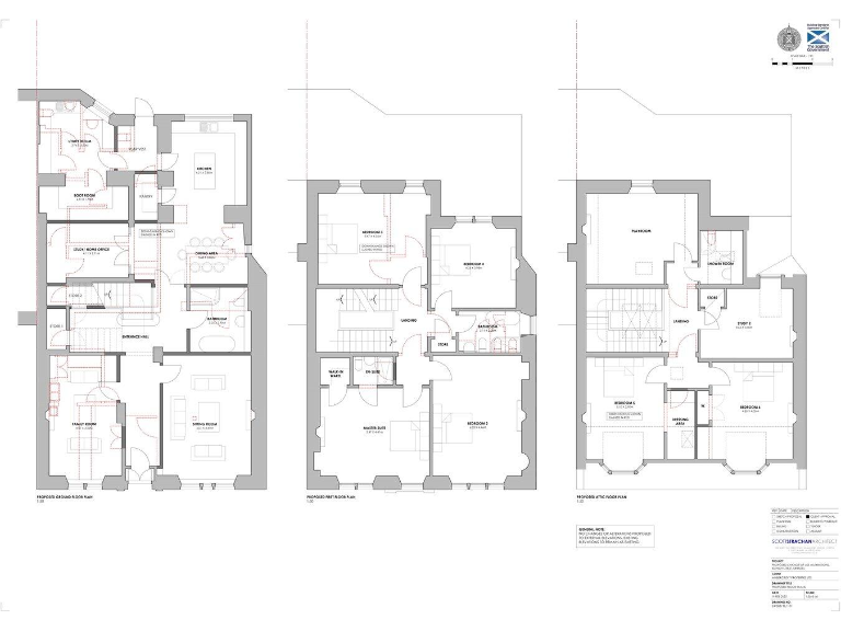
- Impressive 3-storey traditional stone-built villa
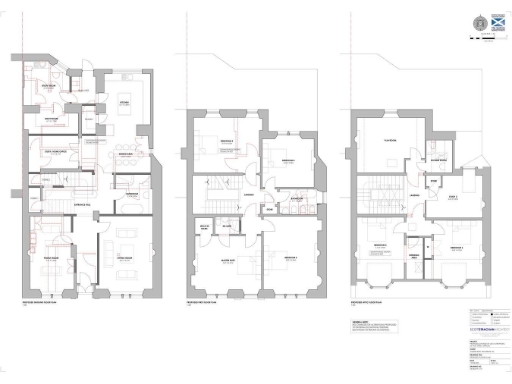
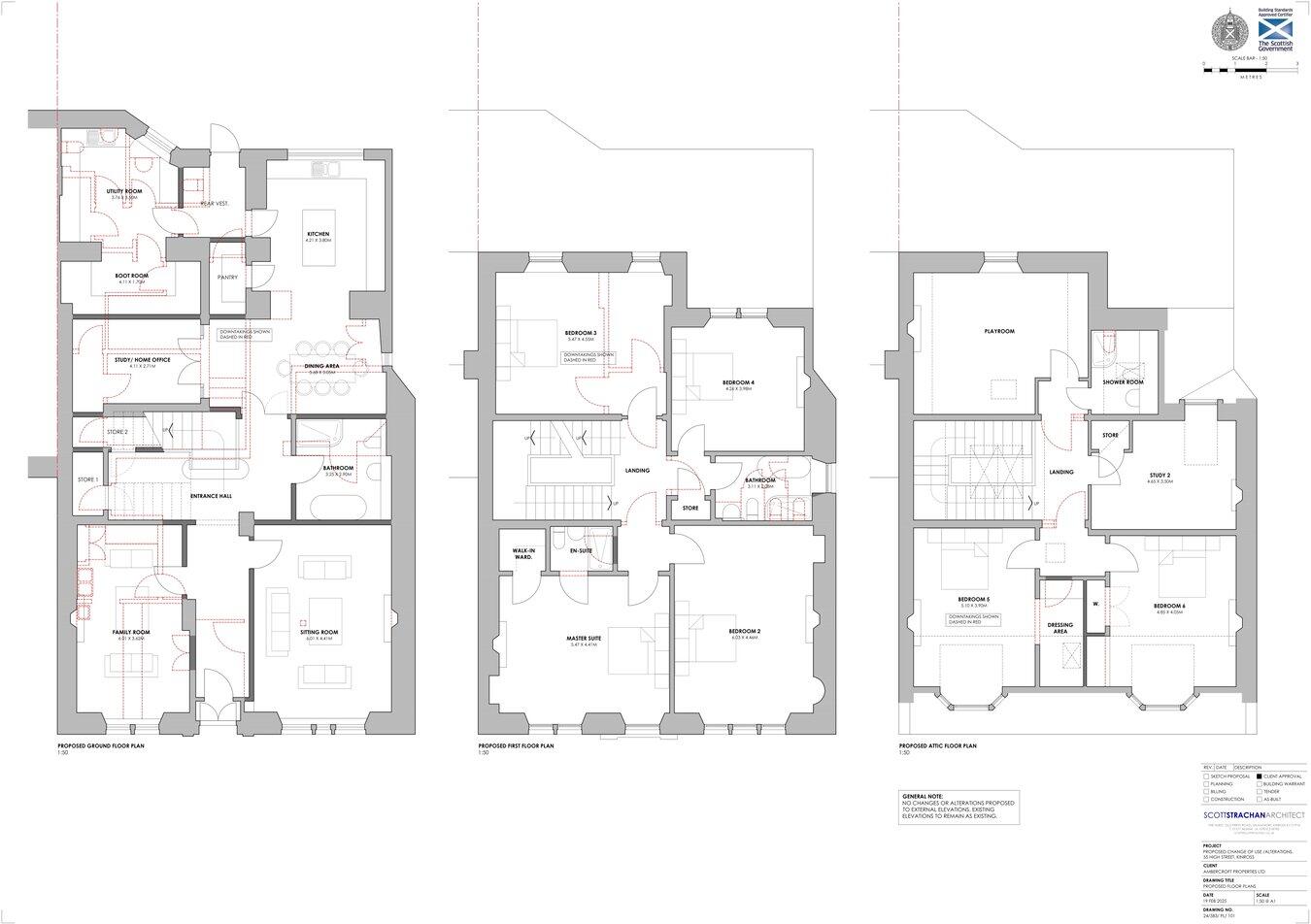
- Full planning consent for conversion into an 8-bedroom luxury home (Planning 25/00251/FLL)
- Large private rear garden with patio and mature trees
- High ceilings and spacious layout with character features
- Prominent High Street location close to amenities and transport links
- Currently operating as a retail unit and day nursery, presenting immediate income potential
- On-street parking available nearby
**Summary:**
Discover a unique investment opportunity with this stunning traditional stone-built villa, prominently situated on Kinross High Street. Currently functioning as a retail space and day nursery, this 3-storey property not only offers immediate rental income but also holds full planning permission for a luxurious 8-bedroom conversion, making it an excellent prospect for families or investors alike. The expansive layout boasts high ceilings and large windows throughout, beautifully complemented by a sizable private rear garden perfect for relaxation or entertaining.
With a multitude of amenities just a stone's throw away and fantastic transport links, this property promises both convenience and community within a vibrant area. While some renovations will be required for the full transformation, the undeniable charm and character of the villa provide a solid foundation for future potential. Don’t miss out on viewing this gem—opportunities like this are rare and won’t last long!
3 bedroom semi-detached house for sale in 8 School Wynd, Kinross, KY13 — £300,000 • 3 bed • 2 bath • 1090 ft²
4 bedroom maisonette for sale in 73 High Street, Kinross., KY13 — £280,000 • 4 bed • 2 bath • 1346 ft²
4 bedroom detached house for sale in 33 Simpson Wynd, Kinross, KY13 — £375,000 • 4 bed • 3 bath • 1307 ft²
3 bedroom semi-detached villa for sale in 16 Montgomery Street, Kinross, KY13 — £170,000 • 3 bed • 1 bath • 782 ft²
3 bedroom terraced house for sale in 44 Victoria Avenue Milnathort KY13 9YE, KY13 — £150,000 • 3 bed • 2 bath • 850 ft²
4 bedroom detached house for sale in 18 Sandport, Kinross, KY13 — £330,000 • 4 bed • 2 bath • 1179 ft²






























































































