Secluded family home with barn conversion, pool and scope for further improvement.
- Grade II listed buildings; consent restrictions and conservation obligations apply
- About 4.21 acres with lawns, orchard, greenhouse and croquet lawn
- Restored 16th‑century barn and stables: high‑quality conversion and event space
- Planning permission for 3‑bed annexe (redundant hop kiln) Ref: SDNP/52321
- Central courtyard with swimming pool, changing room and pool plantroom
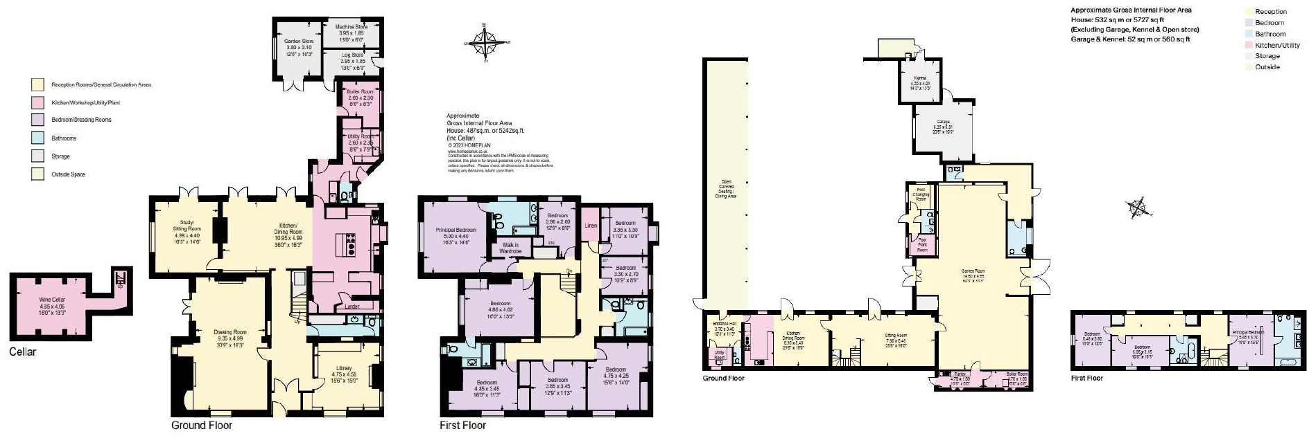
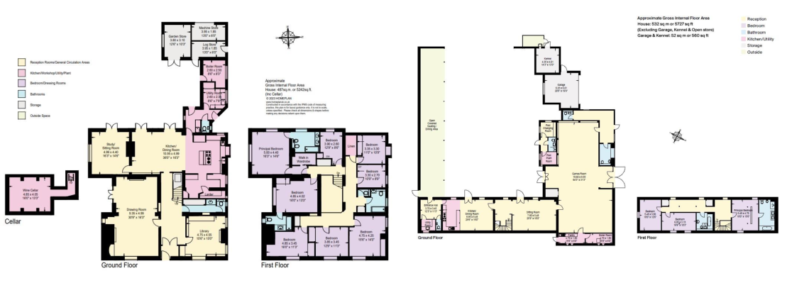
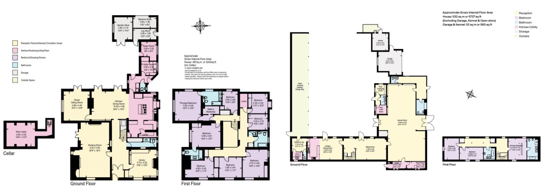
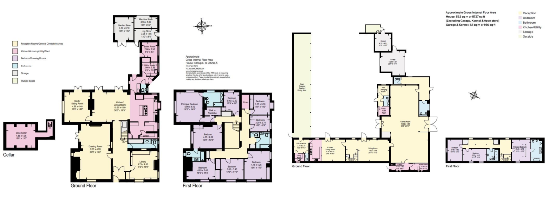
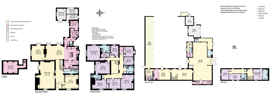
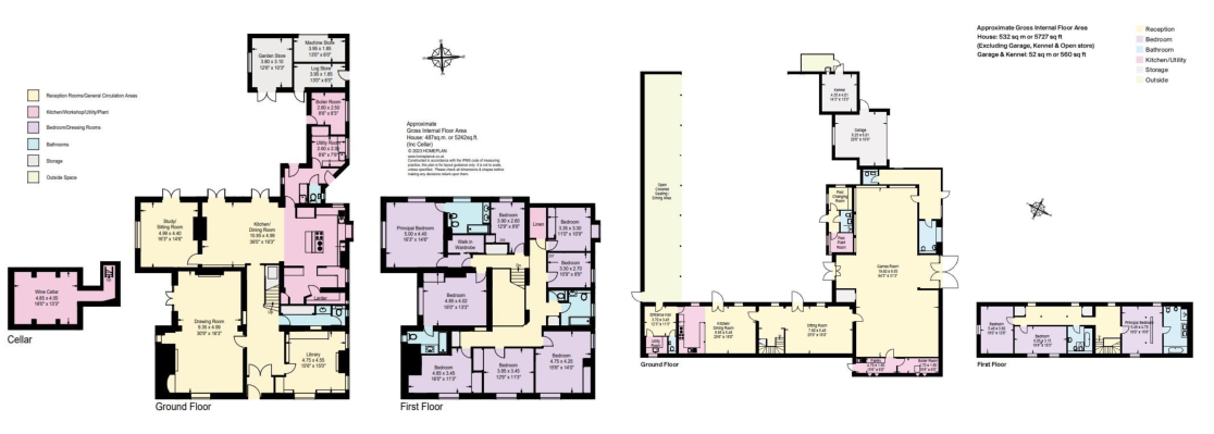
- Extremely large property: 11 bedrooms, multiple receptions, wine cellar
- Very slow broadband; modern connectivity will require upgrade
- Very expensive council tax and listed‑building maintenance costs
Burhunt Farm is an expansive, historic country estate set within the South Downs National Park, offered as a substantial family home with extensive ancillary buildings. The early 19th‑century farmhouse and sensitively converted 16th‑century barn provide flexible living: the main house has generous reception rooms, a double‑sized drawing room with open fireplaces and south‑facing terraces, while the restored barn and stables offer guest accommodation, entertaining space and proven event use. A wine cellar, underfloor heating in the barn and thoughtful heritage restoration are notable quality features.
The estate sits in about 4.21 acres of landscaped grounds including lawns, specimen trees, a small orchard, vegetable garden, greenhouse and a swimming pool at the heart of a courtyard. There is a separate restored three‑bed barn, double garage and further outbuildings; an existing planning permission covers conversion of the redundant hop kiln to a three‑bed annexe (Ref: SDNP/52321). The layout suits multigenerational living or regular entertaining, with easy access to footpaths, the Noar Hill nature reserve and nearby village amenities.
Important practical points are set out plainly: all buildings are Grade II listed, which preserves character but will complicate alterations and repairs; broadband speeds are very slow; council tax is very expensive. The property is freehold, has off‑street parking and is approached by a gravel drive. The location is secluded yet within reach of Alton and Petersfield rail connections and local schools, making it viable for families who value rural privacy and heritage living.
This estate will suit buyers seeking a characterful country home with scope for sensitive improvement, commercial or event use subject to planning and listing constraints, or those who want substantial outbuildings and equestrian potential. Buyers should budget for upkeep, listed‑building maintenance and improvements to modern communications.
8 bedroom detached house for sale in Great Rye Farm, Rye Common, Odiham, Hampshire, RG29 — £2,800,000 • 8 bed • 7 bath • 8910 ft²
4 bedroom semi-detached house for sale in Hanger Court, Hawkely Hurst, Hawkley nr Liss, GU33 — £1,250,000 • 4 bed • 3 bath • 2978 ft²
6 bedroom detached house for sale in Borough Court Road, Hartley Wintney, Hook, Hampshire, RG27 — £2,650,000 • 6 bed • 4 bath • 5055 ft²
3 bedroom detached house for sale in Rogate, Petersfield, West Sussex, GU31 — £1,650,000 • 3 bed • 3 bath • 3786 ft²
4 bedroom country house for sale in Forestside Road, Rowlands Castle, PO9 — £1,395,000 • 4 bed • 2 bath • 2948 ft²
5 bedroom detached house for sale in Church Lane, Holybourne, Alton, Hampshire, GU34 — £3,950,000 • 5 bed • 3 bath • 7930 ft²






























































































































































































































































































































































































































































































































































































































































