Modern three-bedroom family townhouse with large private garden and two parking bays, near amenities and upcoming station.
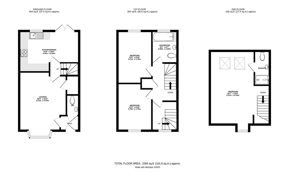
End-terrace, three-storey family home with top-floor master ensuite
High-spec kitchen with modern integrated appliances
Larger-than-average private rear garden, not overlooked
Two allocated parking bays with rear access
Double glazing, FTTP broadband and mains gas heating
Freehold tenure; service charge applies for communal upkeep
Plot size small; internal space average for its floor area
Moderate council tax and average local crime levels
Set within the modern Houlton development, this three-bedroom, three-storey end terrace offers a practical family layout with contemporary finishes. The top-floor master suite is a standout, with vaulted ceilings, skylights and an ensuite providing a peaceful, private retreat. Ground-floor living flows from a bright lounge into a sleek fitted kitchen with integrated appliances and French doors to the private rear garden.
The garden is larger than many nearby plots and benefits from rear access to two dedicated parking bays — a real convenience in newer developments. The home is well specified for energy and connectivity, with double glazing, mains gas central heating, and FTTP broadband. Local amenities, play areas, and several ‘Good’ rated schools are within easy reach, while the planned Rugby Parkway station (due 2026) will improve commuter links.
Practical points are clear and factual: the property is freehold but sits in a development where a service charge applies. The plot is small to modest, and internal space is typical for a 2021-built family townhouse (approximately 1,094 sq ft). Council tax is moderate and local crime levels are average. Overall, this is a low-maintenance, modern family home in an affluent, community-focused neighbourhood — ideal for buyers prioritising specification, schools and commuter improvements.
3 bedroom end of terrace house for sale in Birch Ground Close, Houlton, Rugby, CV23 — £299,950 • 3 bed • 2 bath • 861 ft²
3 bedroom terraced house for sale in Station Avenue, Houlton, Rugby, CV23 — £350,000 • 3 bed • 2 bath • 895 ft²
3 bedroom semi-detached house for sale in Moors Lane, Rugby, CV23 — £375,000 • 3 bed • 3 bath • 1242 ft²
3 bedroom semi-detached house for sale in Great Brook Ground, Houlton, Rugby, CV23 — £360,000 • 3 bed • 2 bath • 963 ft²
3 bedroom semi-detached house for sale in Warminster Close, Houlton, Rugby, CV23 — £295,000 • 3 bed • 2 bath • 789 ft²
3 bedroom detached house for sale in Ripon Way, Houlton, Rugby, CV23 — £350,000 • 3 bed • 2 bath • 1001 ft²






























































































