**Standout Features:**
- Prominent beachfront retail property in Weymouth
- Gross initial yield of 7.58%
- Rental income of £34,500 per annum
- 3 ground floor retail shops with 6 residential flats above (sold off)
- Located just 100 yards from prime retail spaces
- Long-term leases ensure stable income
- Freehold tenure with significant future potential
**Notable Concerns:**
- High crime rate in the local area
- Surrounding area classified as very deprived
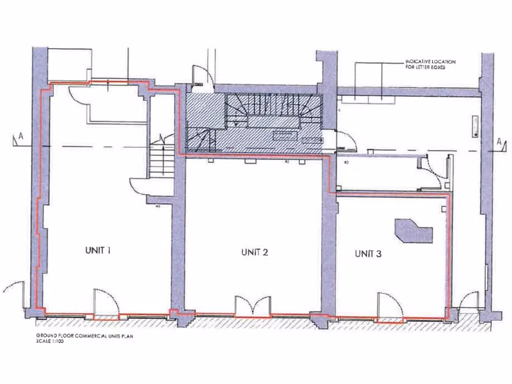
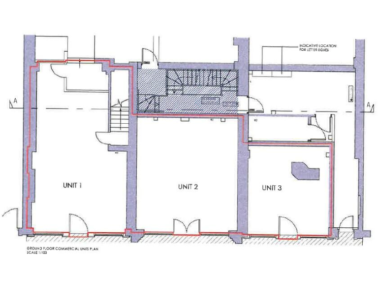
Discover a thriving investment at 87, 88, 89 The Esplanade, Weymouth—a prime retail property with a strong yielding potential and a desirable coastal location. This impressive building features three ground floor retail units totaling 1,271 sq ft, alongside six residential flats that have been sold on long leasehold. With a collective rental income of £34,500 per annum and long-term leases in place, this property promises a reliable cash flow.
Situated just 100 yards from bustling prime retail locations and popular dining establishments, this property offers remarkable retail visibility and foot traffic. It boasts an attractive traditional exterior and the potential for redevelopment, making it an appealing choice for investors looking to expand their portfolio.
Despite some concerns regarding local crime and deprivation, the allure of a thriving seaside resort coupled with excellent road access promises high tourist footfall, especially during summer months. This unique property, designed for flexible future use, is ideal for savvy investors seeking to harness the benefits of a high-yielding retail space with the charm of Weymouth's vibrant lifestyle. Act quickly—opportunities like this don’t last long!
3 bedroom terraced house for sale in St Thomas Street , Weymouth, DT4 — £385,000 • 3 bed • 2 bath • 1012 ft²
3 bedroom mixed use property for sale in 37 St. Thomas Street, Weymouth, Dorset, DT4 — £420,000 • 3 bed • 1 bath • 2216 ft²
4 bedroom flat for sale in Ranelagh Road, Weymouth, Dorset, DT4 — £300,000 • 4 bed • 2 bath • 616 ft²
Shop for sale in St. Alban Street, Weymouth, DT4 — £350,000 • 3 bed • 2 bath • 797 ft²
High street retail property for sale in 95 St. Mary Street, Weymouth, Dorset, DT4 8NY, DT4 — £200,000 • 1 bed • 1 bath • 2500 ft²
Commercial property for sale in St Mary Street, Weymouth, DT4 — £500,000 • 1 bed • 1 bath • 8944 ft²


















