**Standout Features:**
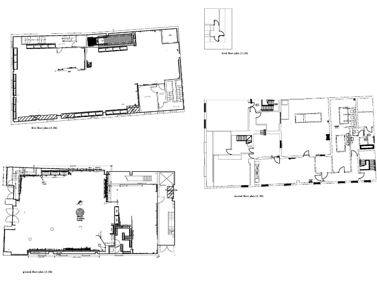
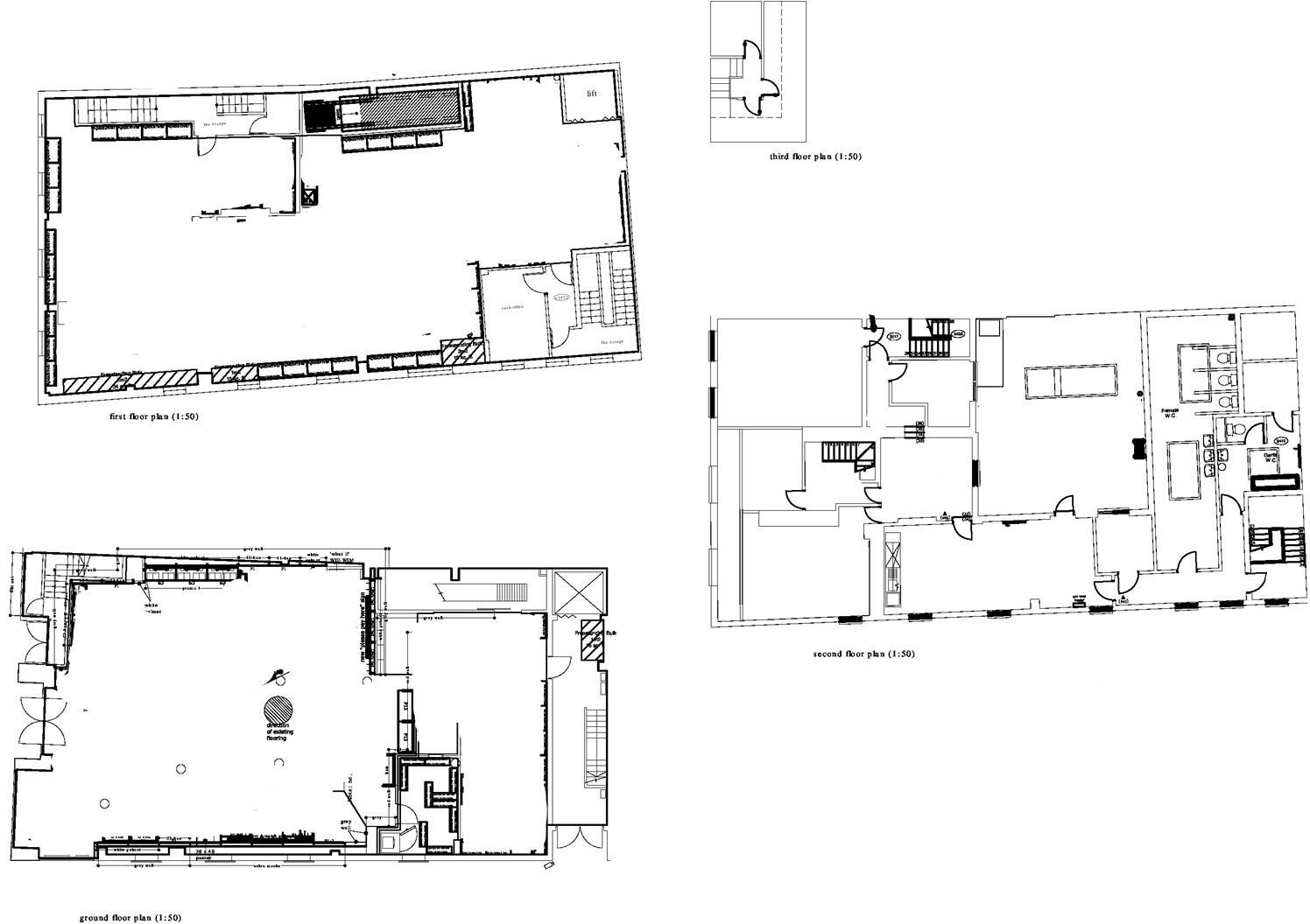
- Large freehold property totaling 8,944 sqft.
- Commercial space on the ground floor with prominent visibility on a bustling high street.
- Potential for residential conversion of upper floors, pending planning approval.
- Located within a cosmopolitan student neighborhood, surrounded by a variety of amenities, shops, and dining options.
- Current layout includes extensive ground floor retail space along with ample storage/office space on the upper levels.
- Affordable council tax.
**Summary Description:**
This substantial freehold commercial property, prominently positioned on a busy high street in Weymouth, offers exciting possibilities for both investors and businesses. The ground floor features approximately 2,850 sqft of commercial retail space, previously used as an Argos store, complete with changing facilities and additional storeroom access. The upper levels boast significant square footage that could be transformed into residential units, subject to planning permission, making it an attractive proposition for developers looking to capitalize on the strong local rental market.
Despite the expansive layout and prime location, the property requires renovation to modernize its internal spaces, presenting an excellent opportunity to create a customized environment that meets your vision. With a bustling community atmosphere and all essential amenities just steps away—from shops and eateries to schools—the potential for growth and customization is evident. Given the current development climate and high demand for mixed-use spaces, this unique property won't remain available for long. Explore the future possibilities of combining commercial and residential ventures in this lucrative location!
3 bedroom terraced house for sale in St Thomas Street , Weymouth, DT4 — £385,000 • 3 bed • 2 bath • 1012 ft²
Shop for sale in St. Alban Street, Weymouth, DT4 — £350,000 • 3 bed • 2 bath • 797 ft²
Leisure facility for sale in Slug & Lettuce, 55-57 St Thomas Street, Weymouth, DT4 8EQ, DT4 — £750,000 • 1 bed • 1 bath • 23258 ft²
High street retail property for sale in 87,88,89 The Esplanade, Weymouth, Dorset DT4 7AP, DT4 — £455,000 • 1 bed • 1 bath • 1271 ft²
3 bedroom mixed use property for sale in 37 St. Thomas Street, Weymouth, Dorset, DT4 — £420,000 • 3 bed • 1 bath • 2216 ft²
2 bedroom terraced house for sale in 57-58 St. Mary Street, Weymouth, Dorset, DT4 — £370,000 • 2 bed • 2 bath






























































