Spacious renovated farmhouse with annexe, gym and over an acre of gardens — listed status applies..
Grade II listed farmhouse — listing may restrict alterations
Fully renovated and extended with contemporary fittings
Over 5,500 sq.ft including a two-bed detached cottage
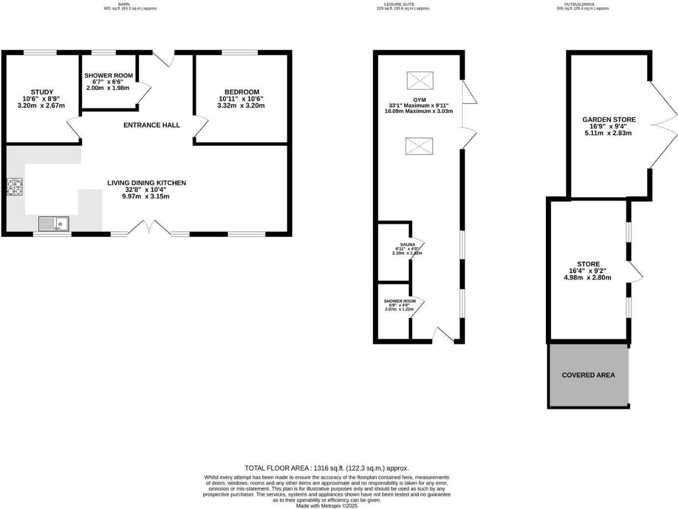
Detached gym/studio with sauna; multiple outbuildings
Landscaped, south-west facing gardens over 1 acre
Driveway parking for several vehicles; excellent entertaining space
Very slow broadband speeds — limited for heavy remote work
Management charge c.£80/month; services and appliances untested
Set within over an acre of south-west facing gardens, Poplar Grove Farm is a fully renovated Grade II listed farmhouse offering more than 5,500 sq.ft of flexible living. The principal house combines substantial reception rooms, a large open-plan family breakfast kitchen and six bedrooms across three floors, with three ensuite bedrooms and a dressing room to the principal suite. Period features such as exposed brick and traditional chimneys sit alongside high-spec contemporary fittings following the recent refurbishment.
The property includes a two-bedroom detached cottage (Pond View Barn), a detached gym/studio with sauna and shower, plus useful outbuildings and garden stores — useful for multi-generational living, home-working or rental income. Driveway parking for several vehicles and extensive outdoor entertainment space make the plot well-suited to family life and entertaining in a private rural setting. The location is quiet and picturesque, with Mouldsworth village amenities and the Chester–Manchester rail line within easy reach.
Practical points to note: the house is Grade II listed which will restrict changes and may cause additional consent and maintenance requirements. Broadband speeds are very slow, which may affect heavy remote-working or streaming needs. Services and appliances have not been tested, and prospective buyers should verify heating, drainage and other installations. There is a management charge of approximately £80 per month for shared communal areas, and the main property sits in Council Tax Band G (the annexe is Band D).
This property will suit buyers seeking a substantial, characterful country home with modern comforts, large private gardens and strong flexible ancillary accommodation. It presents immediate move-in potential after renovation works completed, but buyers should be comfortable managing listed-building obligations and limited broadband connectivity.
6 bedroom detached house for sale in Award winning 5,300 square feet family home with equestrian potential, CH3 — £2,000,000 • 6 bed • 5 bath • 5334 ft²
4 bedroom detached house for sale in Lea-By-Backford, Backford, CH1 — £900,000 • 4 bed • 2 bath • 2346 ft²
4 bedroom detached house for sale in Ridley, Nr. Tarporley, CW6 — £800,000 • 4 bed • 3 bath • 2176 ft²
7 bedroom detached house for sale in Chester, Cheshire, CH2 — £1,500,000 • 7 bed • 2 bath • 4763 ft²
6 bedroom detached house for sale in Stoak, Chester, Cheshire, CH2 — £550,000 • 6 bed • 2 bath • 4460 ft²
6 bedroom detached house for sale in An outstanding detached family residence in Little Budworth, CW6 — £2,500,000 • 6 bed • 5 bath • 6134 ft²






























































































































































































































































































































































































































