Spacious modern farmhouse on c.6 acres with stables, annexes and outstanding views.
- Detached modern family residence over 6,100 sq ft including ancillary accommodation
- Approximately 6 acres of south-west facing landscaped gardens and paddocks
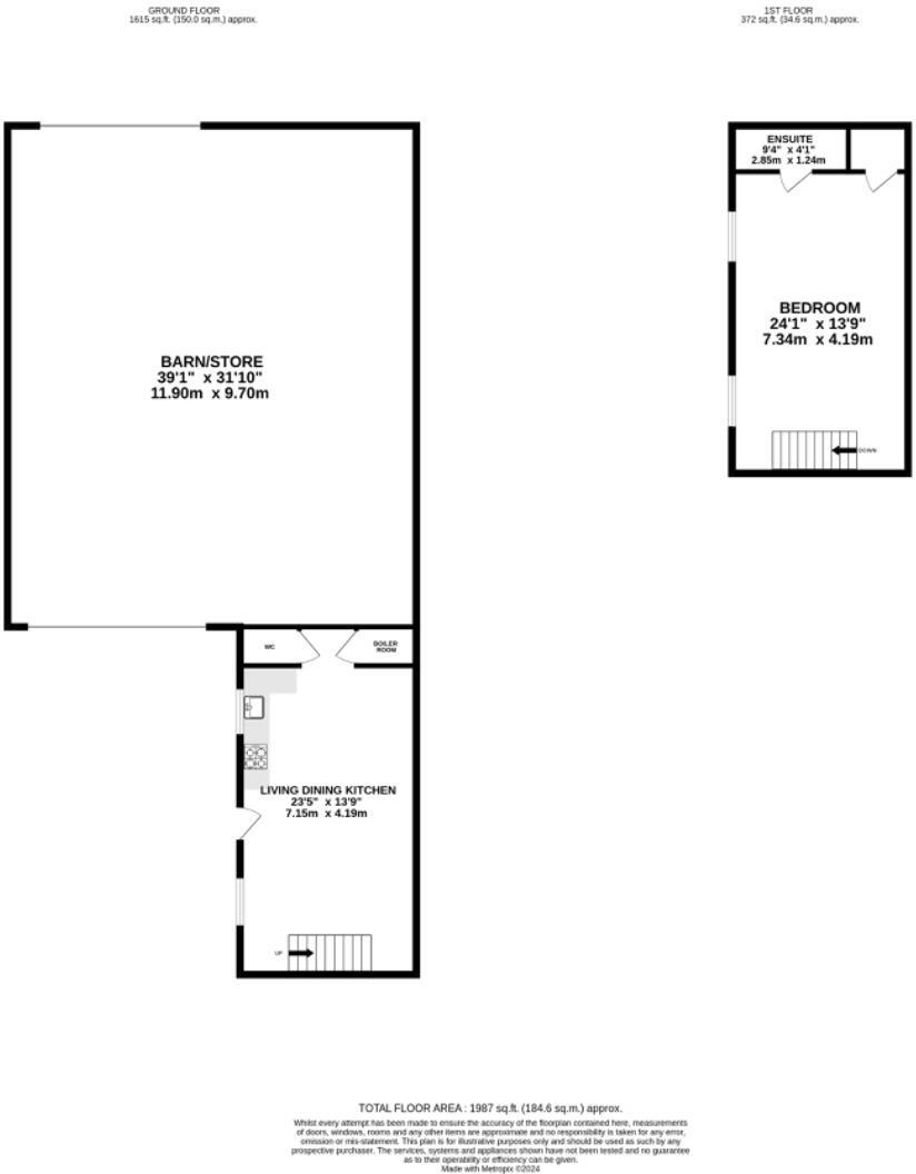
- Five brick-built stables, tack room, outdoor menage and large barn/machine store
- Garden cottage and separate annex provide self-contained living options
- In-and-out electric gated entrance with extensive parking and garaging
- Private drainage believed connected; mains services reported but not tested
- Slow broadband speeds in the area despite excellent mobile signal
- Council Tax Band H; fenced public footpath crosses a small land section
Set within c.6 acres of south-west facing landscaped grounds, Commonside Farm is an immaculately presented modern detached residence offering over 6,100 sq ft of flexible family accommodation. The principal house features generous reception rooms, a large open-plan kitchen, high ceilings and extensive glazing that frame uninterrupted Cheshire countryside views. The gated in-and-out driveway, substantial parking and integrated garaging support everyday family life and entertaining.
The estate includes significant ancillary accommodation — a garden cottage and an annex — plus substantial equestrian infrastructure: five brick-built stables, tack room, outdoor manège and a large barn/machine store. These outbuildings create options for multi-generational living, home business use or equestrian pursuits. Mobile signal is excellent on site despite the rural setting.
Practical points to note: broadband speeds are reported as slow and the property is served by private drainage (services not tested). Council Tax sits in Band H, reflecting high ongoing costs. A fenced public footpath crosses a small portion of the land. Prospective buyers should verify utilities and appliance condition prior to contract.
4 bedroom detached house for sale in Ridley, Nr. Tarporley, CW6 — £800,000 • 4 bed • 3 bath • 2176 ft²
4 bedroom detached house for sale in Luxurious Little Budworth home on a large private plot, CW6 — £1,250,000 • 4 bed • 2 bath • 3151 ft²
6 bedroom detached house for sale in Award winning 5,300 square feet family home with equestrian potential, CH3 — £2,000,000 • 6 bed • 5 bath • 5334 ft²
6 bedroom detached house for sale in Cliff Road, Acton Bridge, Northwich, Cheshire, CW8 — £1,750,000 • 6 bed • 6 bath • 8012 ft²
4 bedroom detached house for sale in Smithy Lane, Hulme Walfield, Congleton, Cheshire, CW12 — £1,250,000 • 4 bed • 2 bath • 3151 ft²
4 bedroom detached house for sale in Allostock, Knutsford, Cheshire, WA16 — £2,000,000 • 4 bed • 2 bath • 2712 ft²






















































































































































































































































































































































































































































































