Energy-efficient living with premium fixtures and garage parking.
Ground-floor master bedroom with private en suite
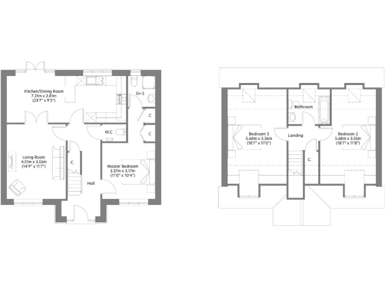
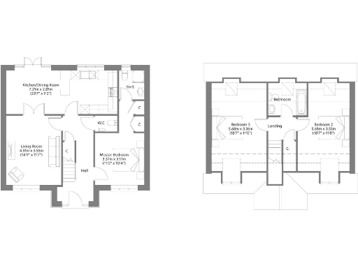
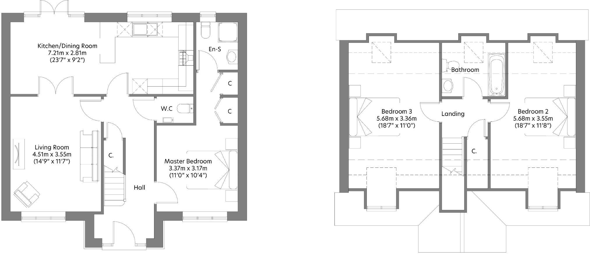
A practical three-bedroom chalet designed for energy-efficient, low-maintenance living. The ground-floor master bedroom with en suite offers privacy and accessibility, while two generous first-floor doubles give flexible family or home-office options. The open-plan kitchen/dining area, fitted with integrated Bosch appliances and Porcelanosa tiling, flows to the living room and enclosed rear garden, creating a bright everyday living space.
Comfort and running-cost savings are strong selling points: an air source heat pump supplies underfloor heating to the ground floor, with thermostatic radiators upstairs. The specification includes LED downlights, modern Roper Rhodes bathroom fittings and double glazing, reflecting a high-quality finish throughout.
Practical extras include a single garage, additional parking and low local crime levels in this small-town, rural-edge setting with good broadband and mobile signal. Nearby schools rated Good and local shops on Lakenheath High Street add convenience for families.
Notable drawbacks to factor in: the plot is small and the internal floor area is modest at about 928 sq ft, so outdoor space is limited. There is an annual residents’ management fee (estimated £195) and council tax banding is yet to be determined. Buyers seeking large gardens or extensive grounds may find this layout constrained.
3 bedroom detached house for sale in Briscoe Way,
Lakenheath,
Suffolk,
IP279SA, IP27 — £350,000 • 3 bed • 2 bath • 721 ft²
4 bedroom detached house for sale in Briscoe Way,
Lakenheath,
Suffolk,
IP279SA, IP27 — £435,000 • 4 bed • 2 bath • 925 ft²
3 bedroom detached bungalow for sale in Briscoe Way,
Lakenheath,
Suffolk,
IP279SA, IP27 — £375,000 • 3 bed • 2 bath • 676 ft²
3 bedroom detached bungalow for sale in Briscoe Way,
Lakenheath,
Suffolk,
IP279SA, IP27 — £465,000 • 3 bed • 2 bath • 918 ft²
2 bedroom detached bungalow for sale in Briscoe Way,
Lakenheath,
Suffolk,
IP279SA, IP27 — £315,000 • 2 bed • 2 bath • 537 ft²
4 bedroom semi-detached house for sale in Briscoe Way,
Lakenheath,
Suffolk,
IP279SA, IP27 — £399,995 • 4 bed • 3 bath • 919 ft²






















































































