High-spec, energy-efficient family home with low running costs and compact plot.
Four bedrooms including master with en suite and Juliet balcony
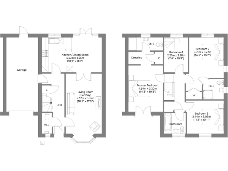
A well-specified four-bedroom semi-detached home in Lakenheath, the Henley offers contemporary living across a compact 919 sq ft footprint. The open-plan kitchen/dining area features integrated Bosch appliances, Porcelanosa tiling and French doors to an enclosed rear garden, making this a practical choice for families who value low-maintenance finishes and energy efficiency.
The first-floor layout is family-friendly: a master suite with dressing area, en suite and Juliet balcony, a second bedroom with en suite and fitted wardrobe, plus two further bedrooms for children or a home office. Ground-floor underfloor heating supplied by an air source heat pump, LED downlights and included flooring contribute to lower running costs and a modern feel throughout.
Practicalities are straightforward: an integral garage with additional parking, a small enclosed garden, and a modest annual residents’ management fee (estimated £195). Local amenities, schools rated Good, and quick road and rail links make this convenient for commuting to nearby towns.
Important considerations: the property is compact with a small plot and 919 sq ft total, so storage and garden space are limited compared with larger homes. Council Tax band is yet to be determined and images are illustrative, so final finishes and layouts may vary from the pictures.
3 bedroom detached house for sale in Briscoe Way,
Lakenheath,
Suffolk,
IP279SA, IP27 — £350,000 • 3 bed • 2 bath • 721 ft²
4 bedroom detached house for sale in Briscoe Way,
Lakenheath,
Suffolk,
IP279SA, IP27 — £435,000 • 4 bed • 2 bath • 925 ft²
3 bedroom chalet for sale in Briscoe Way,
Lakenheath,
Suffolk,
IP279SA, IP27 — £425,000 • 3 bed • 2 bath • 928 ft²
3 bedroom detached bungalow for sale in Briscoe Way,
Lakenheath,
Suffolk,
IP279SA, IP27 — £375,000 • 3 bed • 2 bath • 676 ft²
2 bedroom detached bungalow for sale in Briscoe Way,
Lakenheath,
Suffolk,
IP279SA, IP27 — £315,000 • 2 bed • 2 bath • 537 ft²
3 bedroom detached bungalow for sale in Briscoe Way,
Lakenheath,
Suffolk,
IP279SA, IP27 — £465,000 • 3 bed • 2 bath • 918 ft²






















































































