Move-in ready single-floor home with garage and easy gardens for downsizers.
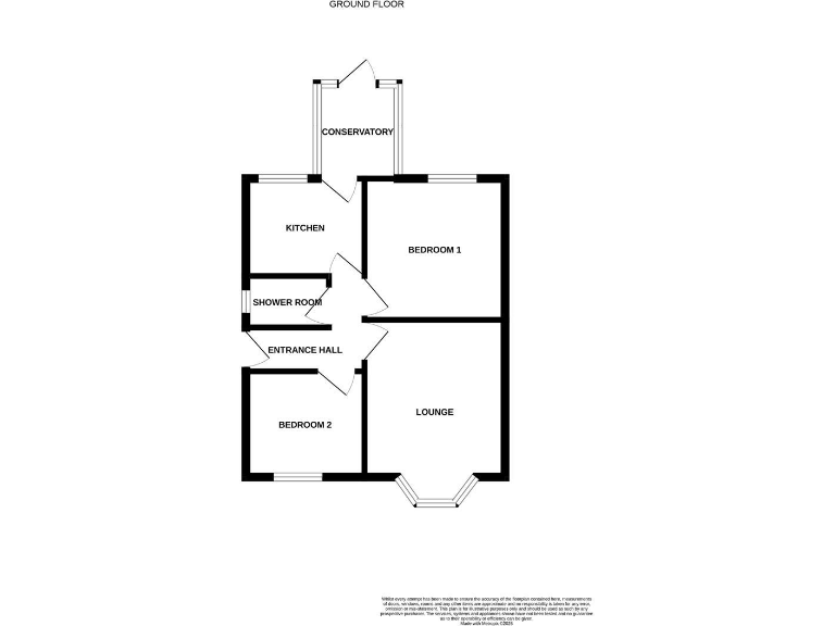
- Detached, single-storey bungalow, refurbished to a high standard
- Two double bedrooms, efficient 657 sq ft layout
- Modern fitted kitchen with integrated appliances
- Contemporary shower room; no separate bath
- Conservatory adds light and flexible space
- Block-paved driveway, off-road parking and detached garage
- Low-maintenance front and rear gardens
- Built 1967–75; cavity walls assumed uninsulated (upgrade potential)
Quiet, single-storey living in Holton‑Le‑Clay: this detached two-bedroom bungalow has been refurbished to a high standard and is offered with no onward chain. The lounge with bay window and a contemporary kitchen deliver comfortable, move‑in ready accommodation for those seeking easy single‑floor living. A small conservatory adds light and a flexible spot for plants or a reading nook.
Practical features include two double bedrooms, a modern shower room, double glazing and gas central heating. Outside, low‑maintenance front and rear gardens, a block‑paved drive and a detached garage provide parking and storage without time‑consuming upkeep. At about 657 sq ft the layout is efficient, well suited to downsizers, those retiring, or anyone wanting a compact home with good local amenities.
Known drawbacks are straightforward and typical for the era: the property was built in the late 1960s/early 1970s and cavity walls are assumed to have no added insulation. There is a single shower room rather than a separate bath, and room sizes are modest. Council tax is low and flooding risk is nil, making this a practical, low‑stress choice for buyers wanting a ready‑to‑occupy bungalow in a pleasant village setting.
2 bedroom bungalow for sale in Tetney Lane, Holton-le-Clay, Grimsby, Lincolnshire, DN36 — £140,000 • 2 bed • 1 bath • 752 ft²
2 bedroom bungalow for sale in Edinburgh Drive, Holton-le-Clay, DN36 — £249,000 • 2 bed • 1 bath
2 bedroom detached bungalow for sale in Southfield Road, Holton Le Clay, DN36 — £166,500 • 2 bed • 1 bath • 633 ft²
3 bedroom detached bungalow for sale in Carmen Crescent, Holton-Le-Clay, DN36 — £285,000 • 3 bed • 1 bath • 970 ft²
2 bedroom semi-detached bungalow for sale in Tetney Lane, Holton-le-clay, DN36 — £215,000 • 2 bed • 1 bath • 670 ft²
4 bedroom detached bungalow for sale in Tetney Lane, Holton-Le-Clay, Grimsby, N.E. Lincs, DN36 5AR, DN36 — £240,000 • 4 bed • 1 bath • 722 ft²


















































