Character-filled, newly renovated home with a south-facing garden and stream-side setting.
Deceptively spacious across three floors with five principal rooms
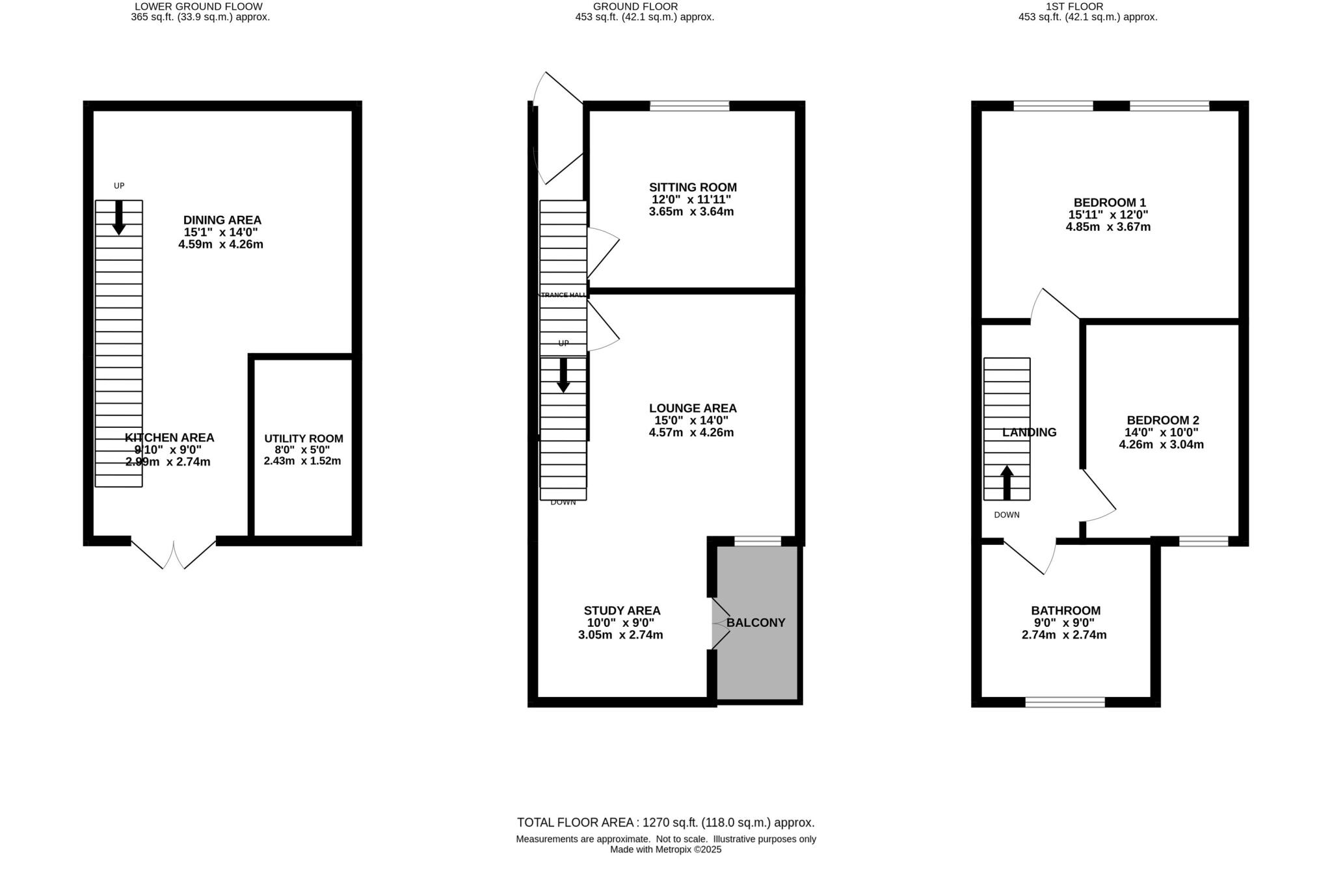
This deceptively spacious mid-terrace Victorian house spans three floors and is newly renovated throughout, offering a blend of period character and contemporary fittings. The ground and lower ground floors create flexible living with three reception rooms, a large dining area and a beautifully finished kitchen with quartz worktops, integrated appliances, a boiling-water tap and underfloor heating.
Two double bedrooms and a stylish bathroom occupy the first floor, while the property benefits from a landscaped south-facing private garden with multiple seating areas and a path down to a small stream. Residents’ parking permits are available for village car parks; the train station and local shops are a short walk away, making this practical for commuters and families.
Notable practical points are straightforward: the home is leasehold with a very long term remaining (circa 870 years) and is offered chain-free. There is a medium flood risk for the area due to the stream at the bottom of the garden — buyers should obtain flood-insurance advice. The house sits on solid brick walls (original construction) with double glazing installed post-2002 and mains gas central heating.
Overall this property will suit buyers seeking a characterful village home with generous living space and a high-quality finish, and those who value outdoor living and good commuter links. Renovation work has largely been completed, but prospective purchasers should review that the solid-wall construction may limit insulation improvements without investment.
3 bedroom semi-detached house for sale in Lower Fold, Marple Bridge, Stockport, SK6 — £475,000 • 3 bed • 3 bath • 1496 ft²
5 bedroom detached house for sale in Longhurst Lane, Marple Bridge, SK6 — £925,000 • 5 bed • 3 bath • 2956 ft²
2 bedroom terraced house for sale in Compstall Road, Marple Bridge, Stockport, Cheshire, SK6 5HE, SK6 — £250,000 • 2 bed • 1 bath • 664 ft²
4 bedroom semi-detached house for sale in Town Street, Marple Bridge, Stockport, Greater Manchester, SK6 — £795,000 • 4 bed • 3 bath • 1739 ft²
3 bedroom end of terrace house for sale in Compstall Road, Marple Bridge, Stockport, Greater Manchester, SK6 — £340,000 • 3 bed • 1 bath • 880 ft²
5 bedroom detached house for sale in Townscliffe Lane , Marple Bridge, Stockport, SK6 — £975,000 • 5 bed • 3 bath • 2544 ft²










































































