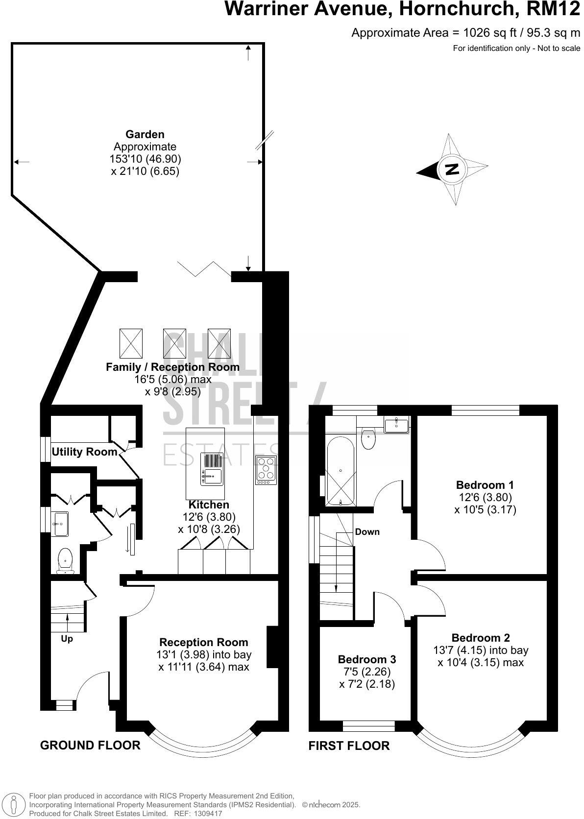
**Standout Features:**
- Extended semi-detached house with a contemporary design
- Three well-proportioned bedrooms and stylish family bathroom
- Two versatile reception rooms, perfect for family living
- Impressive 154 ft landscaped rear garden
- Convenient ground floor WC and separate utility room
- Off-street parking and side gate access
- Excellent location, 0.3 miles from Hornchurch Underground Station and close to local amenities
Nestled in the sought-after Hornchurch area, this beautifully presented, extended semi-detached house is a prime fit for family life. Spanning 1026 sq ft, the property offers spacious living with two elegant reception rooms, including an open-plan kitchen/family room flooded with natural light from bi-folding doors and skylights. The modern kitchen features stone worktops and premium appliances, while the utility room enhances everyday convenience. Upstairs, find three comfortable bedrooms adorned with neutral tones, perfect for restful nights.
Step outside into the remarkable 154 ft rear garden offering a fabulous outdoor space for children to play or for hosting summer gatherings. With off-street parking and a ground floor WC, this home combines practicality with comfort. Residents will appreciate the low crime rate and fast broadband access in this affluent community. Be quick—properties like this in such a desirable location don’t last long!
3 bedroom semi-detached house for sale in Hacton Drive, Hornchurch, RM12 — £525,000 • 3 bed • 1 bath • 1068 ft²
3 bedroom semi-detached house for sale in Goodwood Avenue, Hornchurch, RM12 — £600,000 • 3 bed • 2 bath • 1154 ft²
4 bedroom semi-detached bungalow for sale in Lambourne Gardens, Hornchurch, RM12 — £700,000 • 4 bed • 2 bath • 1444 ft²
3 bedroom semi-detached house for sale in Suttons Avenue, Hornchurch, RM12 — £550,000 • 3 bed • 1 bath • 1203 ft²
4 bedroom semi-detached house for sale in Mill Park Avenue, Hornchurch, RM12 — £950,000 • 4 bed • 3 bath • 1649 ft²
3 bedroom semi-detached house for sale in Alma Avenue, Hornchurch, RM12 — £575,000 • 3 bed • 2 bath • 1137 ft²


























































































