Bright family home with long west-facing garden and garage potential.
Extended ground floor plus first-floor extension for increased living space
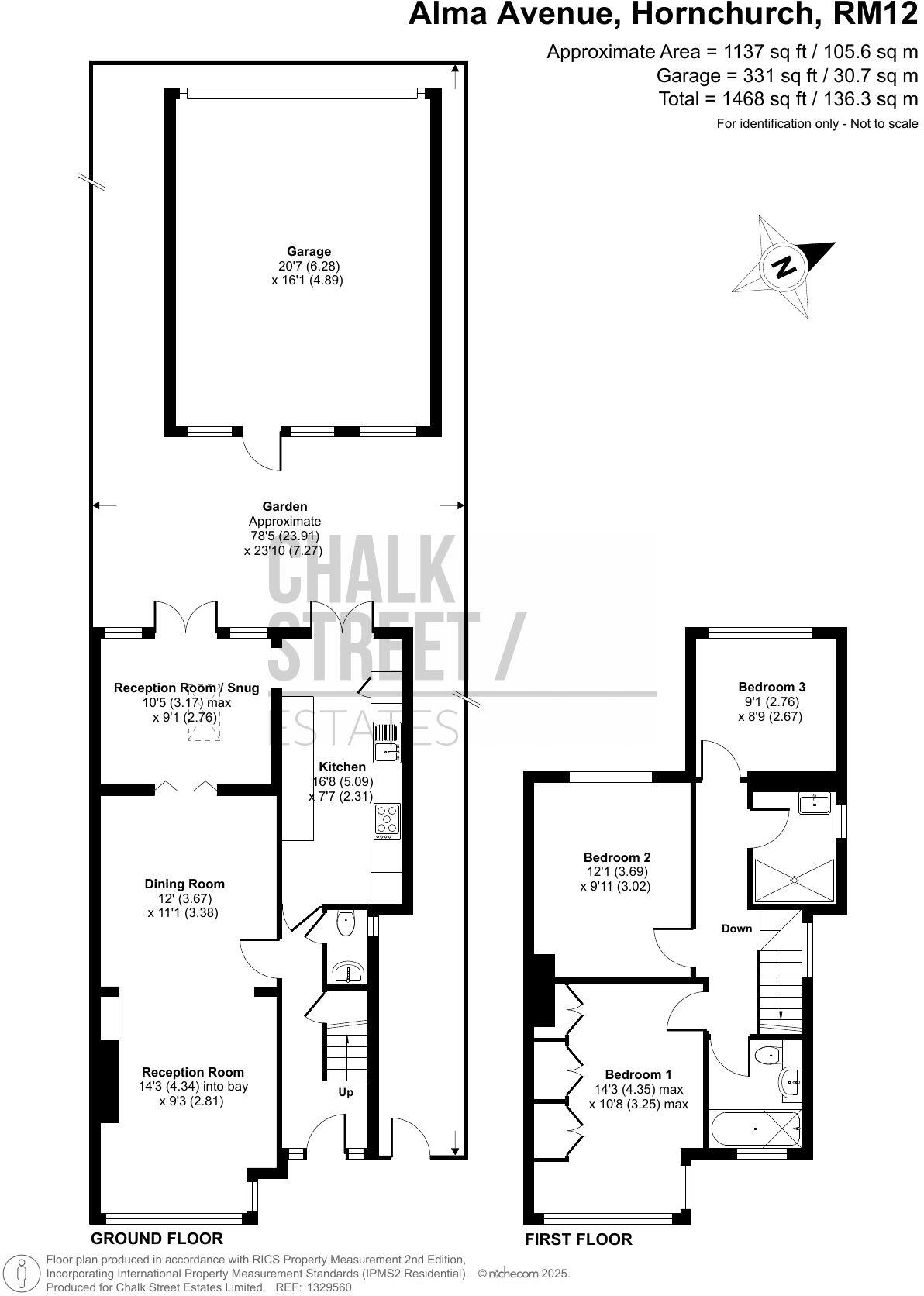
This extended three-bedroom semi-detached house offers well-balanced living space across just over 1,100 sq ft, ideal for growing families. The ground floor extension creates a versatile snug that links effortlessly with a modern kitchen fitted with high-quality Neff appliances and double doors out to the garden. The principal bedroom includes fitted wardrobes, and there are two bathrooms upstairs—a refurbished shower room plus a separate family bathroom—helpful for busy mornings.
Outside is a standout west-facing garden of approximately 78'5, with two patio areas and mature planting providing privacy and sunshine in the afternoons. A large double garage sits at the garden rear and has wiring in place for electrics (not currently connected), offering genuine potential for conversion into a home office, gym or studio subject to permissions. Driveway parking and side-gate access add everyday convenience.
Location is a strong selling point: 0.3 miles to Hornchurch Underground station and within walking distance of Hornchurch town centre, shops, parks and several well-rated primary and secondary schools. The property is freehold, newly renovated internally and benefits from mains gas central heating and double glazing.
A few factual points to note: the house is of 1930s solid-brick construction and external walls are assumed to lack modern cavity insulation, which may affect heating costs over time. The double glazing installation date is unknown and the garage electrics are not yet connected, so some additional works may be needed depending on intended use. Council tax band is moderate and there is no flooding risk recorded.
5 bedroom semi-detached house for sale in Hacton Drive, Hornchurch, RM12 — £775,000 • 5 bed • 2 bath • 1536 ft²
5 bedroom semi-detached house for sale in Abbs Cross Lane, Hornchurch, RM12 — £800,000 • 5 bed • 2 bath • 2097 ft²
3 bedroom semi-detached house for sale in Eyhurst Avenue, Hornchurch, RM12 — £525,000 • 3 bed • 2 bath • 1089 ft²
3 bedroom semi-detached house for sale in Suttons Avenue, Hornchurch, RM12 — £575,000 • 3 bed • 1 bath • 1046 ft²
3 bedroom semi-detached house for sale in Saunton Road, Hornchurch, RM12 — £575,000 • 3 bed • 2 bath • 1418 ft²
3 bedroom semi-detached house for sale in Hacton Drive, Hornchurch, RM12 — £525,000 • 3 bed • 1 bath • 1068 ft²






































































































