Rare stone barn with planning permission and nearly six acres, ideal for smallholding or equestrian use..
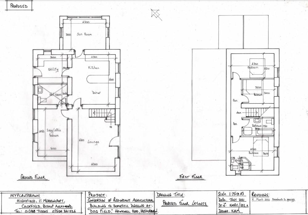
Full planning permission for a three-bedroom conversion (DM/21/02979/FPA)
Approximately 5.97 acres of grassland; huge private plot
Spectacular elevated views across the Weardale Valley
Remote village location with very low local crime
Electricity nearby; other services limited — connection works likely
Excellent mobile signal but slow broadband speeds
Conversion project — barn requires renovation and on-site works
Area classified as remoter communities and relatively deprived
Hawkwell Head Barn is a traditional stone barn with full planning permission (Durham County Council ref DM/21/02979/FPA) for conversion into a three-bedroom home. Set on about 5.97 acres of grassland, the site delivers expansive, elevated views across the Weardale Valley and a high degree of privacy — ideal for a smallholding or equestrian use.
The approved layout creates comfortable, traditional living: ground-floor lounge, snug, kitchen/diner, sunroom, utility and wetroom, with three bedrooms and a family bathroom upstairs. Services are limited: an electricity line runs adjacent to the road, mobile signal is excellent, but broadband speeds are slow, so expect some connectivity constraints.
This is a renovation-led purchase rather than a move-in-ready home. The barn conversion planning permission removes a key planning risk, but the building and site will need practical work, project management and likely further connections for services. The remote location offers quiet country living and spectacular scenery, but also means limited local amenities and longer journeys to larger towns.
For buyers seeking a lifestyle change — a rural retreat, hobby farm or equestrian base — Hawkwell Head Barn offers rare space and views with permission in place. Note the local area is classified as remoter communities and relatively deprived; intended buyers should factor in travel, utilities and renovation budget before committing.
Detached house for sale in Coates Barn, Carrshield, NE47 — £120,000 • 1 bed • 1 bath
1 bedroom barn conversion for sale in Ireshopeburn, Hawkwell Head, DL13 — £250,000 • 1 bed • 1 bath • 377 ft²
Barn conversion for sale in East Stobby Lea, Steel, Hexham, NE47 — £435,000 • 1 bed • 1 bath • 3113 ft²
4 bedroom barn conversion for sale in Burnfoot, St. Johns Chapel, DL13 — £675,000 • 4 bed • 3 bath • 1798 ft²
4 bedroom country house for sale in Hole House Farm, Eastgate, Bishop Auckland, DL13 — £1,250,000 • 4 bed • 3 bath • 2088 ft²
6 bedroom detached house for sale in Stanhope, DL13 — £1,800,000 • 6 bed • 6 bath • 4036 ft²






















































