Spacious period home with cinema room and west-facing courtyard, close to schools and shops..
Opposite Botanical Gardens with direct access to green space
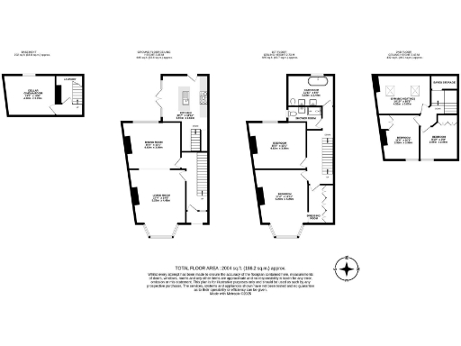
Set on Rutland Park directly opposite the Botanical Gardens, this mid-terraced Victorian house offers generous period proportions across three floors plus a basement. High ceilings, bay windows and original stone façade give immediate kerb appeal, while a bay-windowed living room and separate dining room create a classic layout for family life and entertaining.
The ground floor includes a breakfasting kitchen with direct access down to a lower-ground cinema room — a flexible space for teenagers, home working or media use. French doors open from the kitchen into a walled, west-facing courtyard that captures afternoon sun and provides a private outdoor space in this central S10 location.
Accommodation comprises five bedrooms in total (four of them described as double), the principal suite with a dressing room, a modern family bathroom and a second shower room with WC. Top-floor rooms include a currently adapted gym/office which could be reconfigured subject to consent. The property extends to about 2,004 sq ft, offering roomy family living close to schools, shops and hospitals.
Practical information: the property is leasehold with 669 years remaining and a small ground rent of £14 per year. EPC is rated E with possible improvement to C; Council Tax band E (above-average running costs). Parking is on-street by permit. These are important considerations alongside the many location and period advantages.
4 bedroom detached house for sale in Brocco Bank, S11 — £700,000 • 4 bed • 3 bath • 2214 ft²
4 bedroom terraced house for sale in Southgrove Road, Sheffield, S10 — £650,000 • 4 bed • 3 bath • 2510 ft²
1 bedroom apartment for sale in 3 Southgrove Road, Botanical Gardens, S10 — £150,000 • 1 bed • 1 bath • 463 ft²
3 bedroom semi-detached house for sale in 86 Clarkehouse Road, Botanical Gardens, S10 2LJ, S10 — £575,000 • 3 bed • 1 bath • 1527 ft²
4 bedroom terraced house for sale in Thompson Road, Sheffield, S11 — £499,950 • 4 bed • 2 bath • 1352 ft²
6 bedroom semi-detached house for sale in Clarkegrove Road, Botanical Gardens, S10 — £550,000 • 6 bed • 2 bath • 2706 ft²






































































































































































































































