Characterful detached home with large garden, views and garage—scope to modernise.
Detached four-bedroom stone cottage with large private garden and valley views
New wood-burning stove (2023) and new oil tank (2023)
Two ground-floor bedrooms—good for single-level living or office
Detached garage and off-road parking; potential workshop space
Oil-fired heating and septic tank drainage—note running and maintenance costs
Stone walls likely uninsulated; thermal upgrades may be needed
Double glazing installed before 2002—may be less efficient than modern units
Fast broadband, low crime, no flood risk; village amenities and good schools nearby
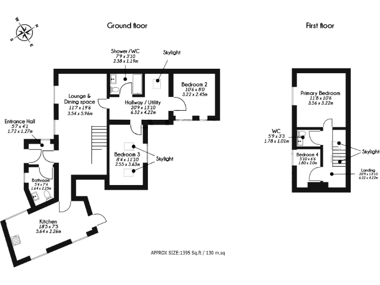
Set on a large plot in peaceful Ruardean Woodside, Quarry Cottage is a characterful detached stone home blending period charm with recent practical upgrades. The house offers four bedrooms across two storeys and around 1,395 sq ft of living space, with far-reaching countryside views from the private garden and patio. A new wood-burning stove (2023) and new oil tank (2023) are useful recent improvements that make the house ready for cosy rural living.
The flexible layout includes two ground-floor bedrooms—useful for single-level living, guests or a home office—plus two further bedrooms upstairs. The living room centres on the wood-burning stove, while the kitchen and separate utility provide everyday practicality. There are two ground-floor bathrooms and a first-floor WC, which suits family or multi-occupant use.
Practical considerations are clear: the property uses oil-fired central heating and drains to a septic tank, and the original sandstone/limestone walls are assumed to have no insulation. Double glazing was fitted before 2002. These factors mean buyers should budget for ongoing running costs and possible thermal upgrades to improve comfort and efficiency.
This home will suit families, downsizers or buyers seeking a rural retreat with scope to personalise. The detached garage and off-road parking add secure storage or workshop potential. Broadband speeds are fast and local schools include several good and outstanding options nearby, while local footpaths and woodland access appeal to outdoor-minded buyers.
3 bedroom detached house for sale in Farm Road, Ruardean Woodside, Ruardean, GL17 — £350,000 • 3 bed • 1 bath • 1130 ft²
4 bedroom detached house for sale in Forest Road, Ruardean Woodside, Ruardean, GL17 — £499,950 • 4 bed • 2 bath • 1410 ft²
3 bedroom detached house for sale in Duttons Lane, Ruardean Woodside, Ruardean, GL17 9XY, GL17 — £450,000 • 3 bed • 2 bath • 1106 ft²
4 bedroom detached house for sale in Forest Road, Ruardean Woodside, Ruardean, GL17 — £500,000 • 4 bed • 2 bath • 2034 ft²
2 bedroom detached house for sale in Ruardean Hill, Drybrook, GL17 — £249,995 • 2 bed • 1 bath • 1026 ft²
3 bedroom house for sale in Camomile Green, Lydbrook, GL17 — £525,000 • 3 bed • 2 bath • 1248 ft²










































































































































































































































