Contemporary two-bedroom park home on a large plot — low-maintenance rural living..
2 double bedrooms with en-suite and dressing area to master
Open-plan lounge/diner with French doors and tall windows
Contemporary ivory kitchen with integrated appliances
Wall-mounted electric fire; semi-enclosed entrance with hooks
Large plot in quiet, agricultural hamlet setting
New-build park home — confirm tenure, site rules and pitch fees
Very slow broadband; average mobile signal may hinder remote work
Low crime area but remoter community location
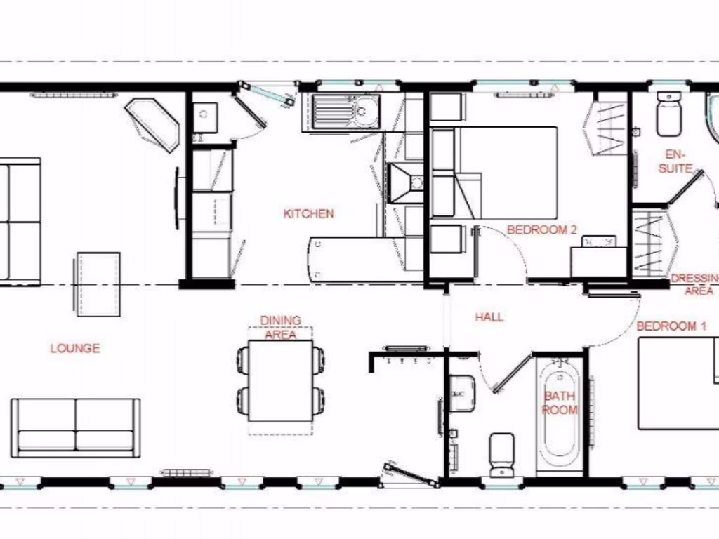
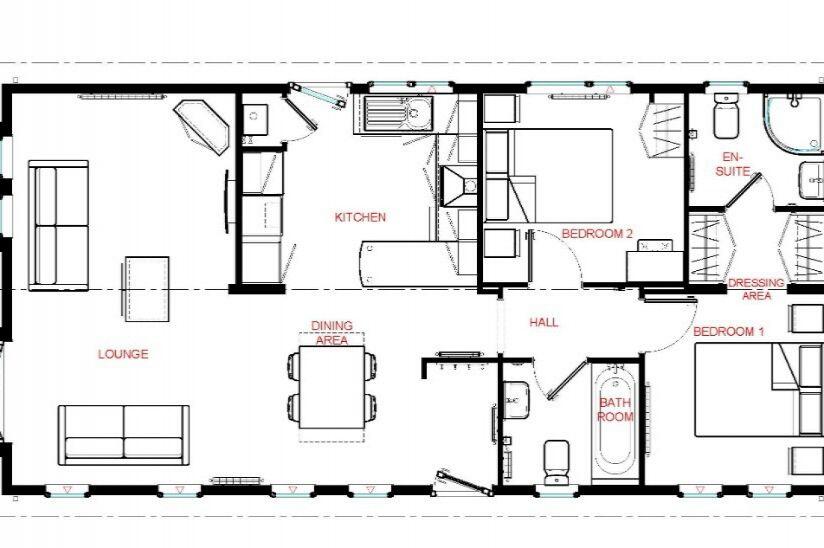
Light-filled, modern and compact, this new-build Omar Newmarket park home is aimed at buyers seeking low-maintenance, stylish downsizing in a quiet rural setting. Tall windows and French doors bring generous daylight into the open-plan lounge and dining area, where a wall-mounted electric fire creates a cosy focal point. The contemporary ivory kitchen includes integrated appliances and flows naturally into the dining space for easy entertaining.
The principal bedroom benefits from a dressing area with twin fitted wardrobes and a modern en-suite; a second bedroom sits beside the main bathroom for guests or a hobby room. Practical additions such as a utility room and optional study on selected plans add flexibility for storage and home-working. Exterior CanExel cladding is available in a range of colours to personalise the appearance.
This plot is large and set in an agricultural, low-crime hamlet environment, ideal for those who value peace and countryside views. Important practical points: broadband speeds are very slow and mobile signal is only average, which may affect regular remote working or heavy streaming. The home is a park home and tenure details are not provided, so buyers should confirm site rules, pitch fees and legal status before committing.
Overall, the Newmarket suits downsizers or buyers seeking a contemporary, low-upkeep home in a rural community. It offers strong design and turnkey new-build finishes, but buyers should budget for connectivity limitations and check tenure/site arrangements.
2 bedroom park home for sale in Much Wenlock, Shropshire, TF13 — £285,000 • 2 bed • 2 bath • 960 ft²
2 bedroom park home for sale in Much Wenlock, Shropshire, TF13 — £240,000 • 2 bed • 2 bath • 800 ft²
2 bedroom park home for sale in Two Bed Wessex Classic (40x20), Presthope Grange, Stretton Rd, Much Wenlock, Shropshire, TF13 6DQ, TF13 — £270,000 • 2 bed • 2 bath
2 bedroom park home for sale in Two Bed Omar Serenity, Presthope Grange, Stretton Rd, Much Wenlock, Shropshire, TF13 6DQ, TF13 — £325,000 • 2 bed • 2 bath
2 bedroom park home for sale in Pool View Caravan Park, Telford, TF8 — £150,000 • 2 bed • 1 bath
2 bedroom park home for sale in 2 Red Admiral Way, Presthope Grange, Stretton Rd, Much Wenlock, Shropshire, TF13 — £255,000 • 2 bed • 1 bath • 800 ft²






































































