Easy-maintenance retirement living near Much Wenlock with private parking.
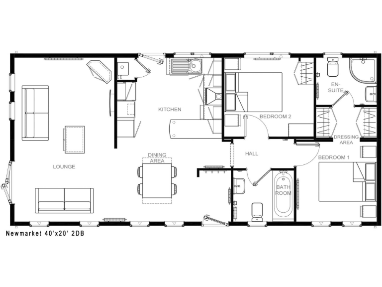
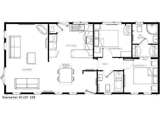
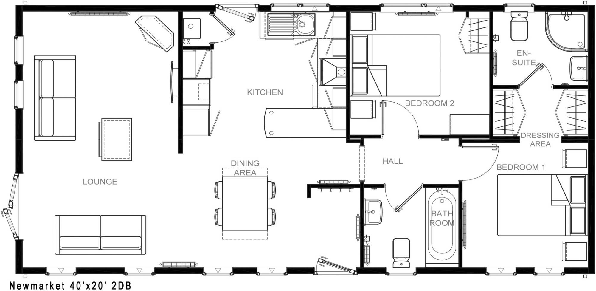
Brand-new single-storey Omar Newmarket park home
This brand-new Omar Newmarket park home offers low-maintenance, single-storey living in a private, gated development close to Much Wenlock. The bright lounge with French doors, contemporary kitchen and two bathrooms provide comfortable, bungalow-style accommodation designed for easy day-to-day living and entertaining. Pet friendly and exclusive to the over-45s, the park is secure with CCTV and piped gas, giving practical comforts in a peaceful countryside setting.
Practical benefits include private off-street parking for two cars, a neat garden, and quarterly metered utilities. The layout suits downsizers or couples who want modern fixtures without the upkeep of a larger house, and part-exchange is available to simplify a move.
Buyers should note this property sits on leased land under a virtual freehold arrangement; park homes are typically not mortgageable and legal advice is recommended. Annual ground rent is high (£2,860.56) plus current site fees of £238.38 pcm, and broadband speeds on site are reported as very slow — important if you rely on fast internet. Council tax is low, and the area is affluent with minimal local crime, but services and transport are rural in nature.
2 bedroom park home for sale in Much Wenlock, Shropshire, TF13 — £285,000 • 2 bed • 2 bath • 960 ft²
2 bedroom park home for sale in Two Bed Omar Newmarket (40x20), Presthope Grange, Stretton Rd, Much Wenlock, Shropshire, TF13 6DQ, TF13 — £260,000 • 2 bed • 2 bath
2 bedroom park home for sale in Two Bed Omar Image (40x20) 2022, Presthope Grange, Stretton Rd, Much Wenlock, Shropshire, TF13 6DQ, TF13 — £255,000 • 2 bed • 2 bath
2 bedroom park home for sale in 14 Red Admiral Way, Presthope, TF13 — £235,000 • 2 bed • 2 bath • 769 ft²
2 bedroom park home for sale in Pool View Caravan Park, Telford, TF8 — £150,000 • 2 bed • 1 bath
2 bedroom park home for sale in Two Bed Wessex Classic (40x20), Presthope Grange, Stretton Rd, Much Wenlock, Shropshire, TF13 6DQ, TF13 — £295,000 • 2 bed • 2 bath














































