Characterful starter with garden and no onward chain.
Three bedrooms in mid-terrace Victorian house
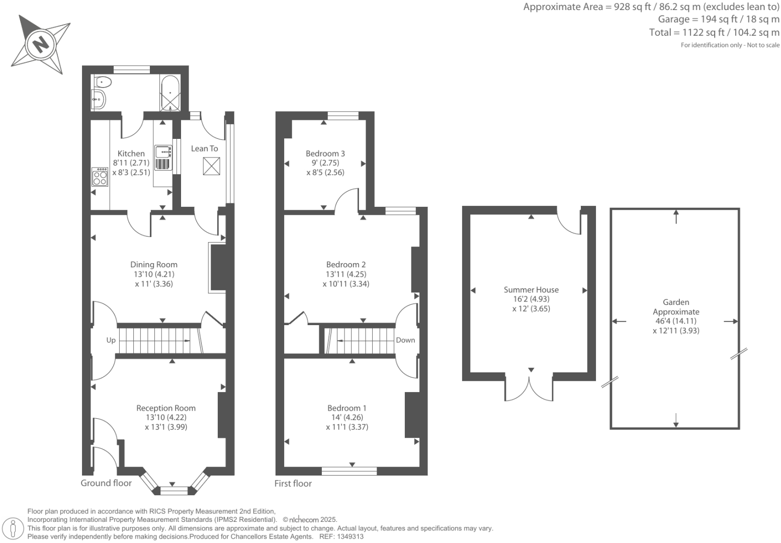
This mid-terraced Victorian home on Wootton Bassett Road offers three bedrooms and a private rear garden — a practical family starter or buy-to-let opportunity. The layout is traditional with a bay-fronted living room and compact rooms across two storeys, arranged for straightforward everyday living.
Highlights include freehold tenure, fast broadband and excellent mobile signal, plus direct transport links into Swindon town and surrounding areas. The property is offered with no onward chain, making a quick sale or investment conversion simpler.
Buyers should note the property’s period construction: solid brick walls with no recorded insulation and double glazing of unknown age. The house has one bathroom and a small plot, so families who need larger outdoor space or more bathrooms should plan for extension or reconfiguration. Some updating and insulating work is likely to improve comfort and running costs.
Local amenities and schools are within easy reach, including well-rated primary options and convenient shops, station access and leisure facilities. Overall this is a straightforward, characterful home with clear potential for sensible modernisation or rental use.
3 bedroom terraced house for sale in Morse Street, Swindon, SN1 — £240,000 • 3 bed • 1 bath • 1406 ft²
3 bedroom terraced house for sale in Hythe Road, Old Town, Swindon, Wiltshire, SN1 — £260,000 • 3 bed • 1 bath • 987 ft²
2 bedroom terraced house for sale in Clifton Street, Swindon, Wiltshire, SN1 — £229,950 • 2 bed • 1 bath • 635 ft²
3 bedroom terraced house for sale in Exmouth Street, Old Town, Swindon, SN1 — £270,000 • 3 bed • 2 bath • 1018 ft²
3 bedroom terraced house for sale in Greenham Walk, Walcot, Swindon, SN3 — £230,000 • 3 bed • 1 bath • 893 ft²
3 bedroom terraced house for sale in Tennyson Street, Swindon, Wiltshire, SN1 — £280,000 • 3 bed • 2 bath • 938 ft²






















































































