Immediate rental income with scope to raise returns through modest upgrading.
Two self-contained flats on a single freehold title
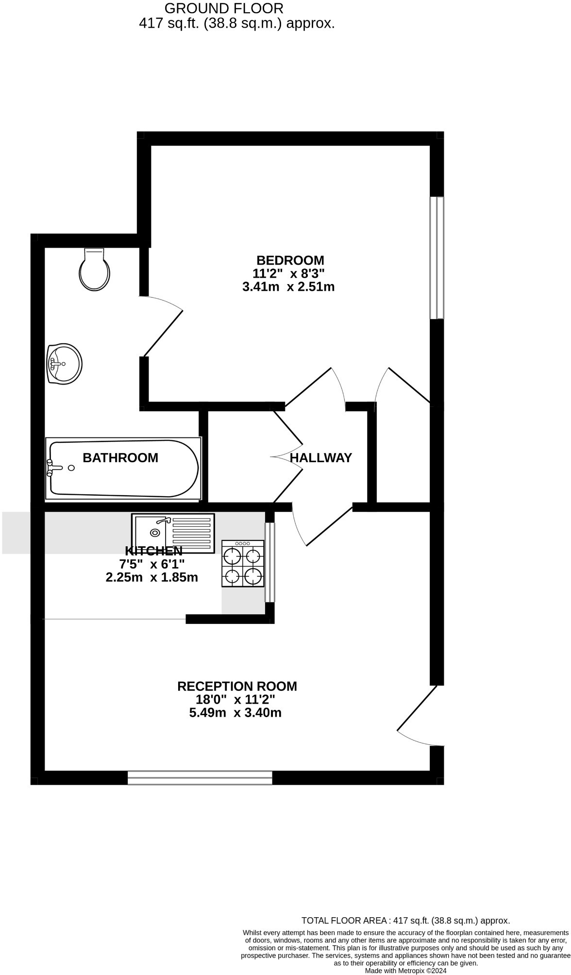
A compact freehold property arranged as two self-contained rental flats, offered as an immediate income investment in Worcester. The ground-floor one-bedroom and first-floor two-bedroom flats are separately leased and currently fully let, bringing steady monthly income and a reported yield around 7%.
The layout and independent tenancies make this a simple, hands-off addition to a buy-to-let portfolio. Freehold ownership removes leasehold fees and gives full control over future changes. The vendor notes that purchasers may be able to use two standard buy-to-let mortgages (one per flat), which can simplify financing.
Practical considerations: the building is a Victorian end-terrace with solid brick walls and likely no cavity insulation. Photos and descriptions indicate some maintenance and modest refurbishment potential; wall insulation and modernisation could improve energy performance and long-term rental value. Local area metrics show higher crime levels and overall deprivation, which may affect tenant mix and management needs.
This is best suited to investors seeking an entry-level, cash-flowing, freehold residential investment with immediate returns. Expect a hands-on initial review (viewing recommended) to confirm current condition, tenant arrangements, and any refurbishment scope before purchase.
1 bedroom mixed use property for sale in St. Johns, Worcester, WR2 — £150,000 • 1 bed • 1 bath • 917 ft²
Office for sale in 13 Park Street, Worcester, Worcestershire, WR5 1AA, WR5 — £550,000 • 1 bed • 1 bath • 1840 ft²
24 bedroom apartment for sale in Mealcheapen Street, Worcester, WR1 — £1,350,000 • 24 bed • 24 bath • 731 ft²
1 bedroom terraced house for sale in St. Johns, Worcester, WR2 — £150,000 • 1 bed • 1 bath • 917 ft²
2 bedroom flat for sale in Toftdale Green, Lyppard Bourne, Worcester, Worcestershire, WR4 0PE, WR4 — £150,000 • 2 bed • 1 bath • 560 ft²
1 bedroom flat for sale in Woolhope Road, Worcester, Worcestershire, WR5 — £85,000 • 1 bed • 1 bath • 431 ft²






























































