Move-in ready home with large garden and commuter links for first-time buyers.
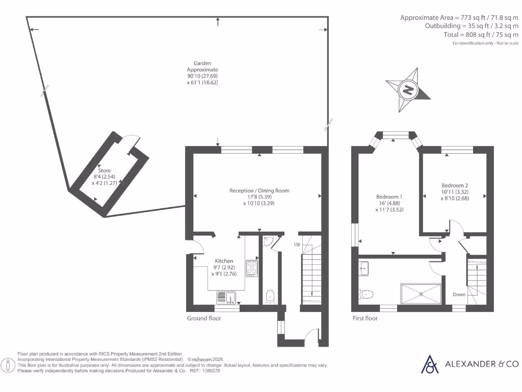
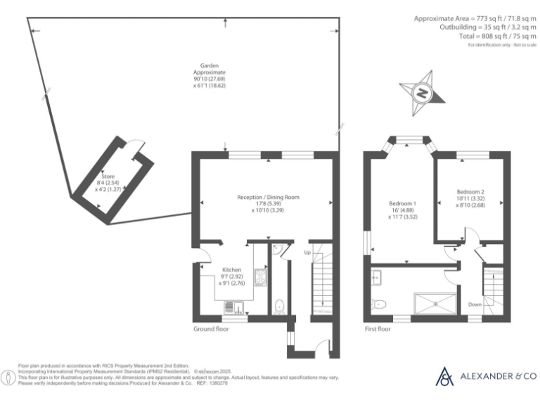
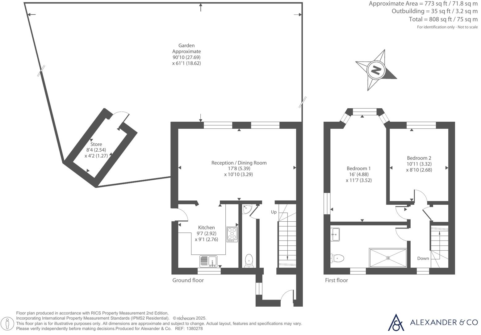
- Two double bedrooms, both well proportioned
- Large, privately enclosed rear garden
- Newly renovated and move-in ready
- Downstairs W/C and first-floor family bathroom
- Off-street parking via driveway
- Potential to extend (subject to planning permission)
- Located near M1 J11 and Dunstable Downs
- Area classed as deprived; average local crime levels
Step into a neatly presented two-bedroom end-terrace that has been recently renovated and is ready to move into. The ground floor offers a comfortable living room, re-fitted kitchen and a handy downstairs W/C, while upstairs provides two double bedrooms and a modern family bathroom. The bright, neutral finishes and hardwood floors create a low-maintenance home for first-time buyers or professionals.
Externally the property sits on a decent plot with a large, privately enclosed rear garden — a genuine family asset for outdoor living and entertaining. A paved front path and driveway provide off-street parking. There is potential to extend the property subject to planning permission, which could increase living space and future value, though planning is not confirmed.
Location is convenient for commuters with quick access to Junction 11 of the M1 and regular local buses; Dunstable Downs and local shops are within easy reach. Broadband speeds are fast and mobile signal is excellent, supporting home working.
Be aware this home sits in a deprived, hard-pressed neighbourhood classification with average local crime levels; readers should consider local context. The house is freehold and council tax is described as affordable, and there is no flood risk recorded.
3 bedroom end of terrace house for sale in Catchacre, Dunstable, LU6 — £400,000 • 3 bed • 3 bath • 2338 ft²
3 bedroom end of terrace house for sale in Sycamore Road, Houghton Regis, Dunstable, Bedfordshire, LU5 — £350,000 • 3 bed • 1 bath • 1348 ft²
4 bedroom terraced house for sale in Dukeminster Road, Dunstable, Bedfordshire, LU5 — £400,000 • 4 bed • 2 bath • 1136 ft²
3 bedroom terraced house for sale in Englands Avenue, Dunstable, Bedfordshire, LU6 — £375,000 • 3 bed • 1 bath • 1080 ft²
3 bedroom end of terrace house for sale in Suncote Avenue, DUNSTABLE, LU6 — £300,000 • 3 bed • 1 bath • 743 ft²
5 bedroom detached house for sale in Coombe Drive, Dunstable, Bedfordshire, LU6 — £850,000 • 5 bed • 2 bath • 1737 ft²


















































