Quiet cul-de-sac near M1, ideal for growing families.
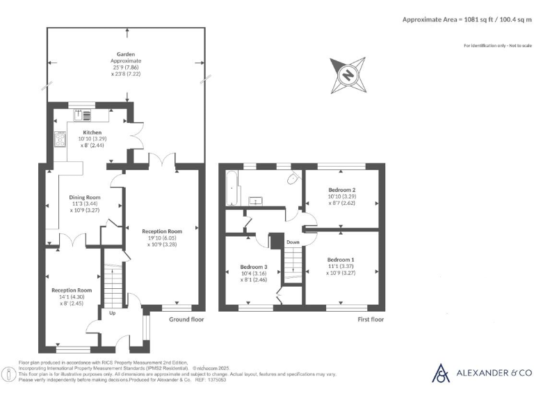
Extended three-bedroom mid-terrace with flexible reception layout
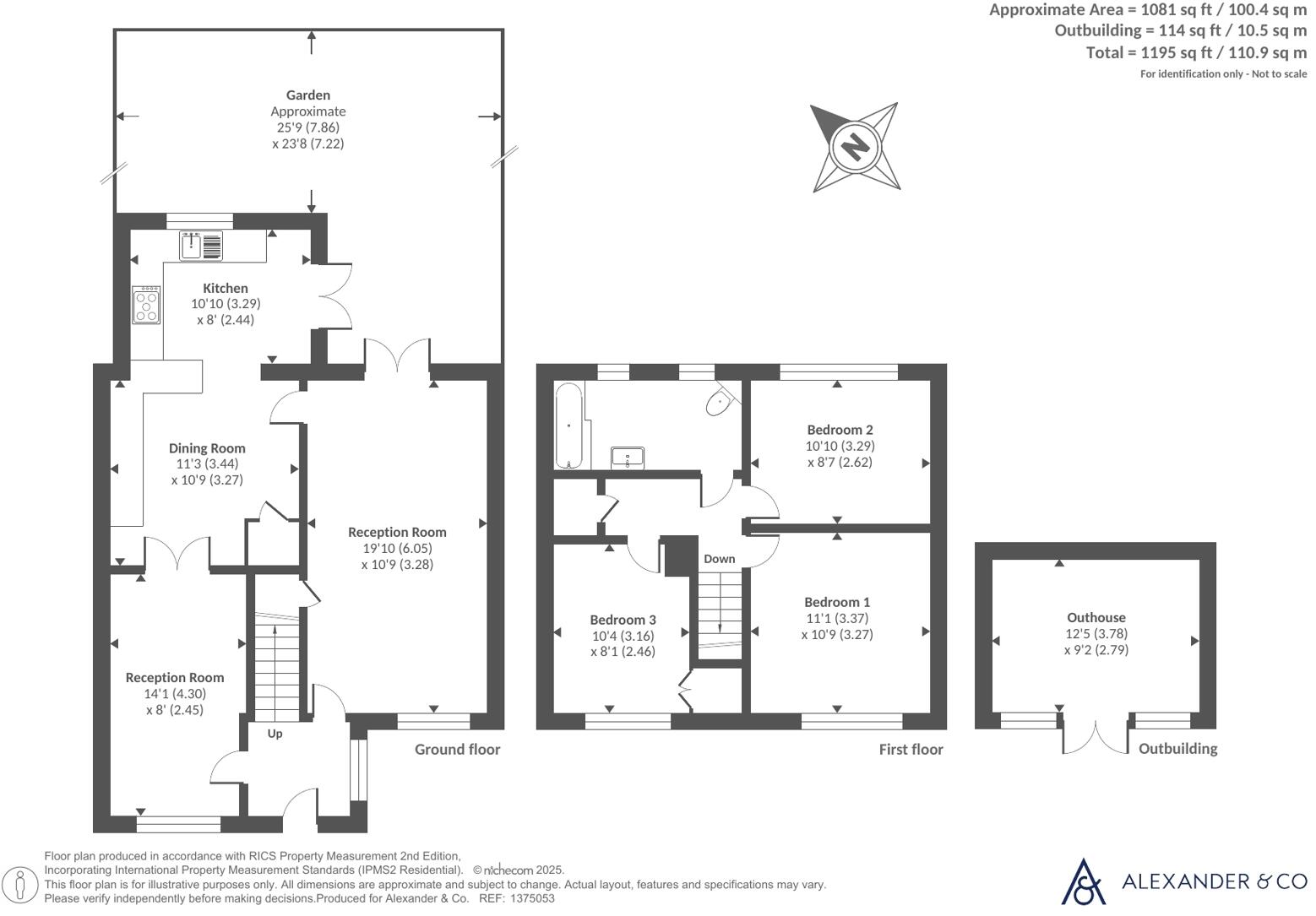
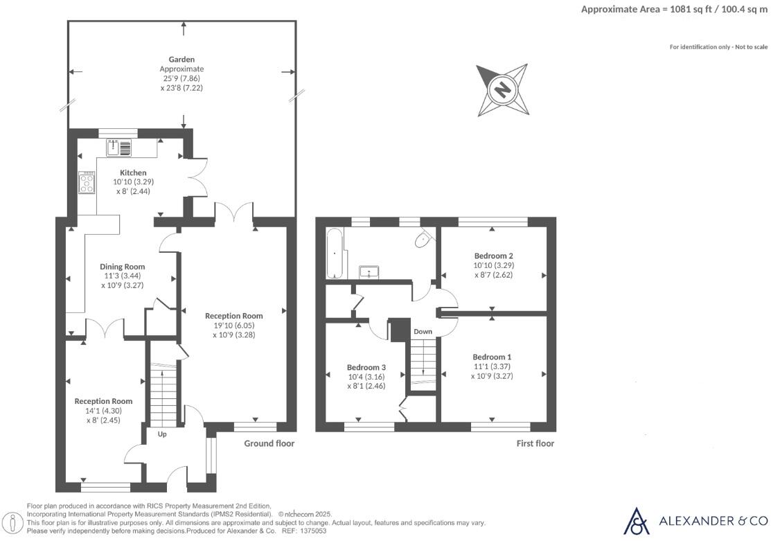
This extended three-bedroom mid-terrace sits at the end of a quiet cul-de-sac in North Dunstable, offering practical family living across about 1,080 sq ft. The ground floor features a dual-aspect 19ft lounge, an open kitchen–diner and a second reception room (formerly the garage), giving flexible space for family life or a home office.
Outside there is a wide block-paved driveway providing off-street parking for multiple vehicles and a low-maintenance rear garden. Double glazing, mains gas central heating and an updated kitchen mean the house is ready to move into while still offering scope for cosmetic updates to personalise it.
There is no onward chain and the location benefits from good road links (M1 J11A, A5) and nearby countryside walks at Sewell. Local schools include several primary options rated Good; the nearest secondary has a lower Ofsted rating, so buyers with older children should check catchment choices.
The property presents further potential to extend subject to planning permission (STPP). While overall the house appears well cared for and structurally sound, buyers should expect standard modernisation rather than major renovation and to confirm any structural or planning details during survey and pre-purchase enquiries.
3 bedroom terraced house for sale in Churchill Road, Dunstable, LU6 — £350,000 • 3 bed • 2 bath • 1200 ft²
3 bedroom semi-detached house for sale in Houghton Road, Dunstable, LU5 — £340,000 • 3 bed • 1 bath • 750 ft²
3 bedroom end of terrace house for sale in Suncote Avenue, DUNSTABLE, LU6 — £300,000 • 3 bed • 1 bath • 743 ft²
3 bedroom semi-detached house for sale in Meadway, Dunstable, Bedfordshire, LU6 — £425,000 • 3 bed • 1 bath • 1257 ft²
3 bedroom semi-detached house for sale in Kirkstone Drive, Dunstable, Bedfordshire, LU6 — £385,000 • 3 bed • 1 bath • 789 ft²
3 bedroom semi-detached house for sale in Katherine Drive, Dunstable, Bedfordshire, LU5 — £425,000 • 3 bed • 1 bath • 1071 ft²


















































