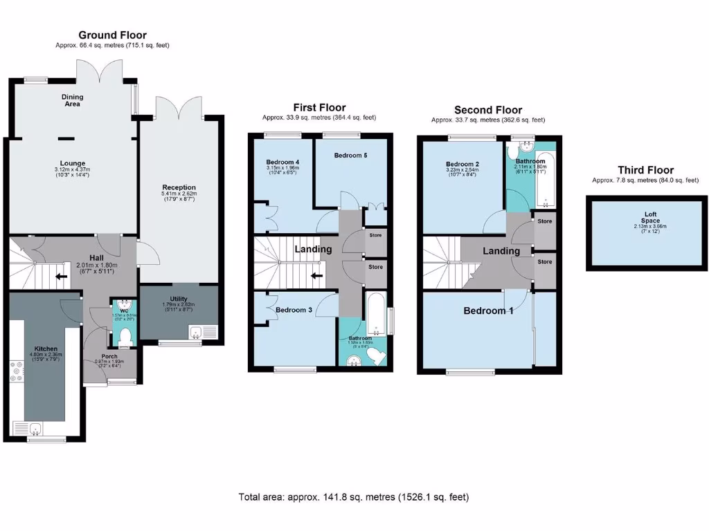
Large three‑storey home with modern updates and practical family layout.
Five bedrooms across three floors, plus boarded insulated loft storage
Open-plan lounge/dining and large second reception room for family living
Extended to side and rear; garage converted to kitchen (no garage)
New roof, double glazing and central heating within last eight years
Corner plot with block‑paved driveway; small low‑maintenance rear garden
Possible non-standard Bryant System 2 build — mortgage checks advised
Located in a very deprived area; local socio-economic factors apply
Council tax very low; crime level average for the area
Spacious five-bedroom, three-storey family home arranged over three floors with flexible reception space and a modernised interior. The property has been extended to the side and rear, offering an open-plan lounge/dining area, a second large reception room and a ground-floor WC — practical for family life. Recent works in the last eight years include a new roof, replacement double glazing and an upgraded central heating system, reducing immediate maintenance needs.
Outside, a corner plot creates extra frontage, a block‑paved driveway provides off-street parking and the low-maintenance rear garden features a decked patio and artificial lawn — easy to manage for busy families. The loft is boarded and insulated, providing useful storage and potential for further conversion subject to planning.
Buyers should note the garage has been converted into the current modern kitchen, so secure garage parking/storage is not available without alteration. There is an outstanding query that the property may be a non‑standard Bryant System 2 construction; confirmation is awaited — this affects mortgage availability and should be checked with lenders. The neighbourhood is in a very deprived wider area classification, so prospective buyers should consider local socio-economic factors alongside the home’s practical benefits.
Overall, the house suits a growing family seeking generous internal space, modern fixtures and low running maintenance, while purchasers prepared to check construction details and accept a smaller plot will find strong usable accommodation for the price.
5 bedroom link detached house for sale in Delamere Close, Birmingham, B36 — £375,000 • 5 bed • 2 bath • 1346 ft²
5 bedroom detached house for sale in St. Martins Close, Birmingham, B36 — £350,000 • 5 bed • 3 bath • 1464 ft²
3 bedroom terraced house for sale in Daimler Close, BIRMINGHAM, B36 — £200,000 • 3 bed • 2 bath • 969 ft²
5 bedroom semi-detached house for sale in Newbridge Road, BIRMINGHAM, B9 — £650,000 • 5 bed • 4 bath • 1658 ft²
5 bedroom end of terrace house for sale in Newman Road, BIRMINGHAM, B24 — £315,000 • 5 bed • 2 bath • 1475 ft²
5 bedroom semi-detached house for sale in Westfield Road, Acocks Green, Birmingham, West Midlands, B27 — £450,000 • 5 bed • 3 bath • 2414 ft²






















































































































































