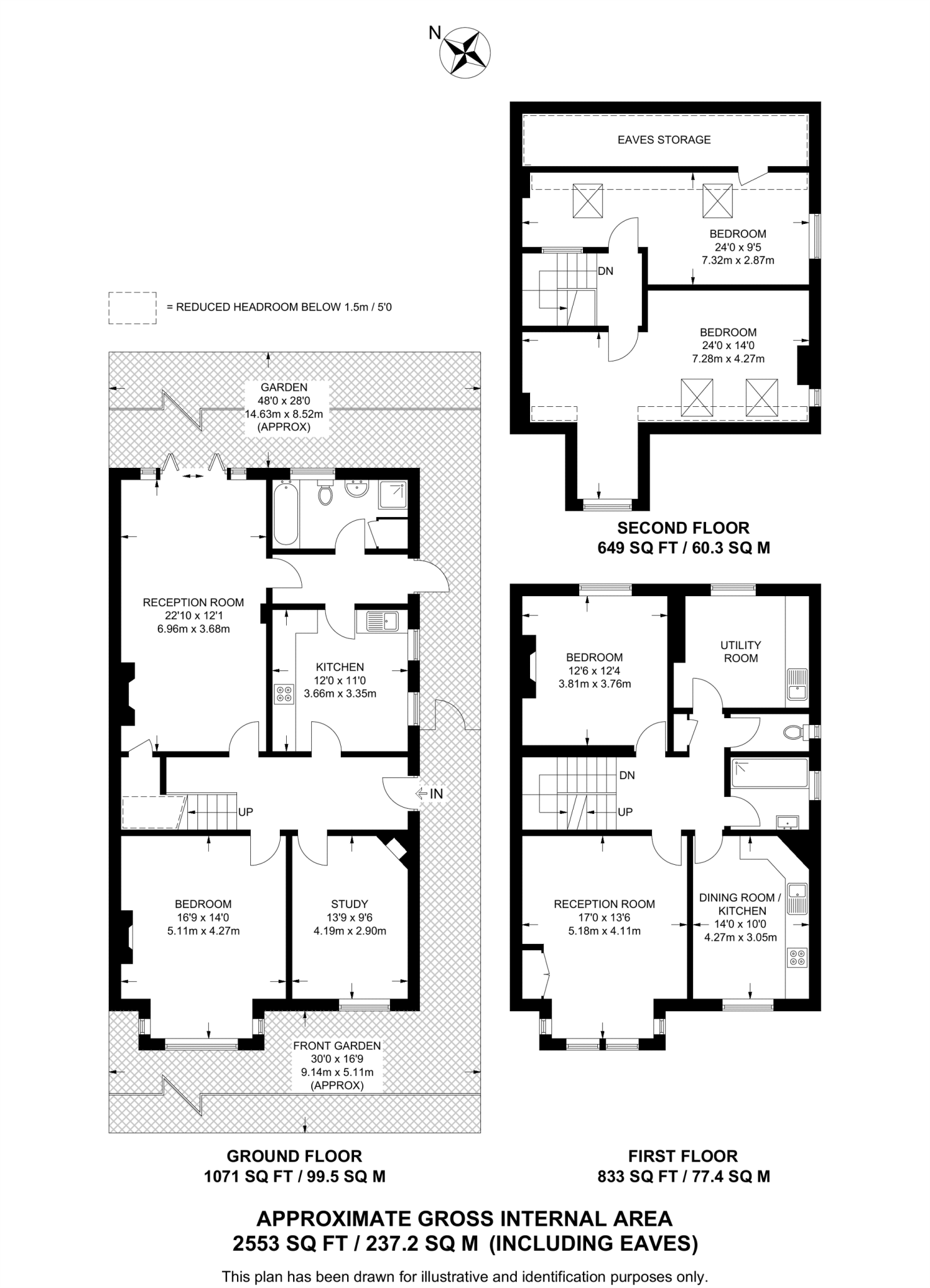
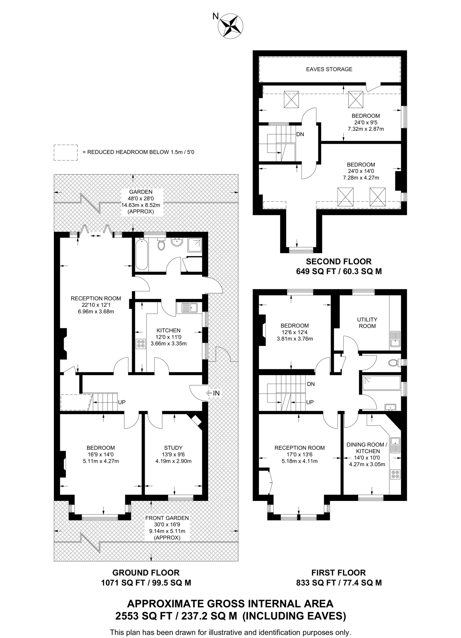
Generous rooms, ready to move into — scope to extend and add parking.
- Five well-proportioned bedrooms across three floors
- Large reception room with feature fireplace and garden access
- Private garden with patio; small overall plot
- Freehold; total internal area approx. 2,553 sq ft
- Potential to extend and add off-street parking (subject to consents)
- Built c.1900–1929; solid brick — likely requires insulation upgrades
- Two bathrooms only for five bedrooms
- Close to New Southgate station, shops and several good schools
A substantial Victorian semi-detached house arranged over three floors, this five-bedroom home combines period character with contemporary presentation. High ceilings and large room proportions are apparent throughout, anchored by an impressive reception room with a feature fireplace and glass doors opening to a private garden and patio.
The property is offered freehold and sits in a convenient New Southgate location with local shops, green space and a good range of schools close by. New Southgate rail station is within walking distance, making commutes straightforward. Interiors are presented in superb condition, ready for immediate occupation by a family seeking space and style.
There is clear scope to enhance value: potential to extend and create off-street parking, subject to the necessary consents. The house was built c.1900–1929 with solid brick construction; insulation upgrades and other energy-efficiency improvements are likely to be worthwhile. Note there are two bathrooms serving five bedrooms, which may require updating for larger households.
Overall this is a generous family home in a well-connected urban neighbourhood. Buyers seeking extra living space or future uplift through extension will find strong potential here, while those prioritising an already low-maintenance, move-in-ready finish will also be well served.
 5 bedroom semi-detached house for sale in Macdonald Road, Friern Barnet, N11 — £950,000 • 5 bed • 2 bath • 2500 ft²
 5 bedroom semi-detached house for sale in Macdonald Road, Friern Barnet, N11 — £950,000 • 5 bed • 2 bath • 2500 ft² 5 bedroom semi-detached house for sale in Brunswick Park Road, London, N11 — £775,000 • 5 bed • 3 bath • 1331 ft²
 5 bedroom semi-detached house for sale in Brunswick Park Road, London, N11 — £775,000 • 5 bed • 3 bath • 1331 ft² 4 bedroom semi-detached house for sale in Waterfall Road, New Southgate, London, N11 — £750,000 • 4 bed • 2 bath • 1619 ft²
 4 bedroom semi-detached house for sale in Waterfall Road, New Southgate, London, N11 — £750,000 • 4 bed • 2 bath • 1619 ft² 5 bedroom semi-detached house for sale in Macdonald Road, LONDON, London, N11 — £950,000 • 5 bed • 2 bath • 2300 ft²
 5 bedroom semi-detached house for sale in Macdonald Road, LONDON, London, N11 — £950,000 • 5 bed • 2 bath • 2300 ft² 5 bedroom semi-detached house for sale in Springfield Road, London, N11 — £750,000 • 5 bed • 1 bath • 1636 ft²
 5 bedroom semi-detached house for sale in Springfield Road, London, N11 — £750,000 • 5 bed • 1 bath • 1636 ft² 2 bedroom terraced house for sale in Brunswick Crescent, London, N11 — £565,000 • 2 bed • 1 bath • 885 ft²
 2 bedroom terraced house for sale in Brunswick Crescent, London, N11 — £565,000 • 2 bed • 1 bath • 885 ft²


















































































































































































































































