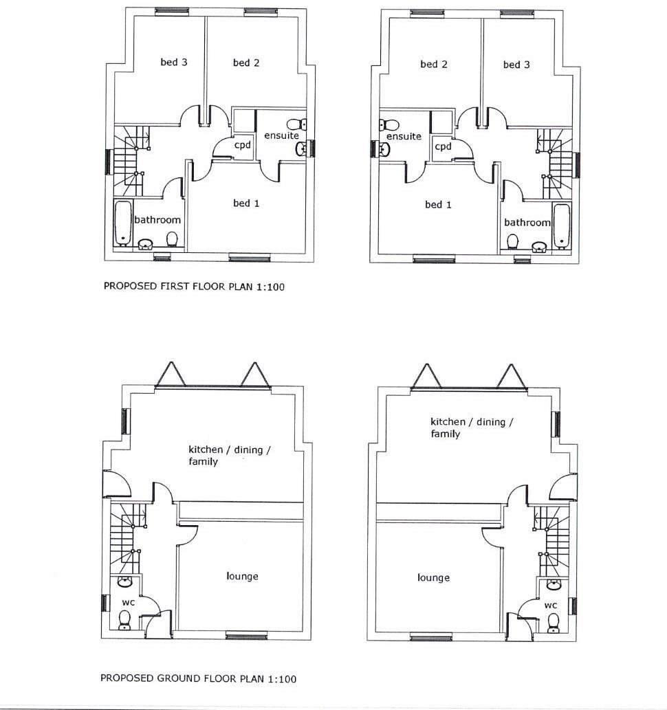
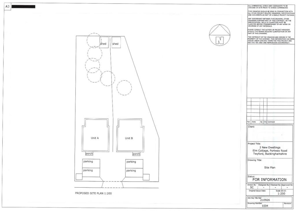
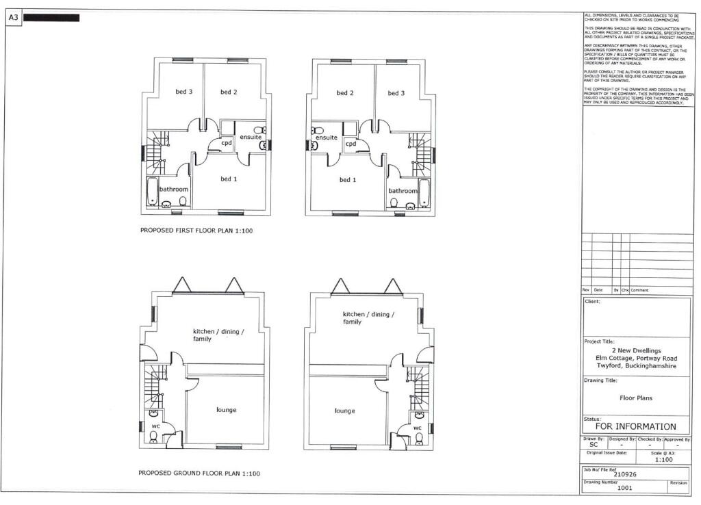
**Standout Features:**
- Two building plots with planning permission for 3-bedroom, 2-bathroom detached houses
- Off-road parking for 2 cars per dwelling
- Ready for connection to mains drainage, electricity, water, and fast broadband
- Set in a picturesque village with local amenities nearby
- Environmental features include air-source heating and underfloor heating
**Potential Downsides:**
- Requires development effort to realize potential
- Average mobile signal in the area
Discover an exceptional opportunity to build your dream homes in the idyllic village of Twyford, Buckingham. These two adjoining plots come with granted planning permission for two thoughtfully designed detached houses, perfect for families seeking modern living in a rural setting. Each plot features off-road parking for two cars and is well-positioned for convenient access to utilities, including mains drainage, water, and high-speed broadband.
The surrounding landscape offers serene views and a community vibe, with local amenities including a café, primary school, and pub just a short walk away. Families will appreciate the proximity to highly-rated schools, including Royal Latin School, ensuring quality education for children. While these plots present an exciting development project, your future vision awaits on this generous property location. Act quickly—opportunities like this in tranquil settings are rare and won’t last long!
Land for sale in Development Site, Bicester Road, Twyford, MK18 — £600,000 • 1 bed • 1 bath
Plot for sale in Land At Moreton Road, Buckingham, Buckinghamshire, MK18 — £345,000 • 4 bed • 2 bath
3 bedroom detached house for sale in Southall, Maids Moreton, Buckingham, MK18 1QB, MK18 — £250,000 • 3 bed • 3 bath • 1668 ft²
Plot for sale in Land At Moreton Road, Buckingham, Buckinghamshire, MK18 — £390,000 • 3 bed • 3 bath • 1109 ft²
Land for sale in Plot 2, Land On The South Side, Bicester Road, Twyford, MK18 — £50,000 • 1 bed • 1 bath
Plot for sale in Land At Moreton Road, Buckingham, Buckinghamshire, MK18 — £390,000 • 4 bed • 3 bath


























