Perfect family layout with sunny south-facing garden and driveway.
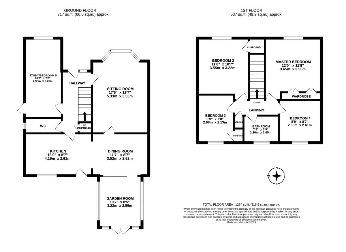
Four double bedrooms plus separate study or fifth bedroom
This well-presented four-bedroom detached house sits in a desirable Southam neighbourhood and offers practical family living over two floors. The heart of the home is a stylish kitchen/diner that opens to a sunny south-facing garden and adjoining garden room — ideal for everyday family meals and informal entertaining.
Ground floor accommodation includes a comfortable sitting room, a useful study (or fifth bedroom), downstairs cloakroom and a generous driveway for off-street parking. Upstairs are four double bedrooms served by a modern family bathroom. Outside the rear garden includes a patio and summer house, set on a decent plot with good privacy.
The property is freehold, in a very affluent area with fast broadband and excellent mobile signal — useful for home working and family connectivity. Local schools include two ‘Good’ primaries and an ‘Outstanding’ secondary, though one nearby primary currently requires improvement. Council tax is above average and the home has average-sized overall accommodation.
Practical buyers should note there is a single family bathroom for four double bedrooms, which may be a consideration for larger households. Otherwise this traditional-layout home offers easy-to-manage outdoor space and straightforward presentation, ready for a growing family to move in and enjoy.
4 bedroom detached house for sale in Little Trace Avenue, Southam, Warwickshire, CV47 — £550,000 • 4 bed • 3 bath • 1550 ft²
4 bedroom semi-detached house for sale in Old Road, Southam, Warwickshire, CV47 — £340,000 • 4 bed • 2 bath • 1213 ft²
4 bedroom detached house for sale in Newstead Drive, Southam, CV47 — £750,000 • 4 bed • 2 bath • 2325 ft²
4 bedroom detached house for sale in Quarry Road, Southam, CV47 — £460,000 • 4 bed • 2 bath • 1232 ft²
4 bedroom detached house for sale in Barkus Close, Southam, CV47 — £475,000 • 4 bed • 2 bath • 1476 ft²
4 bedroom detached house for sale in Warwick Place, Southam, Warwickshire, CV47 — £475,000 • 4 bed • 1 bath • 1680 ft²


































































































