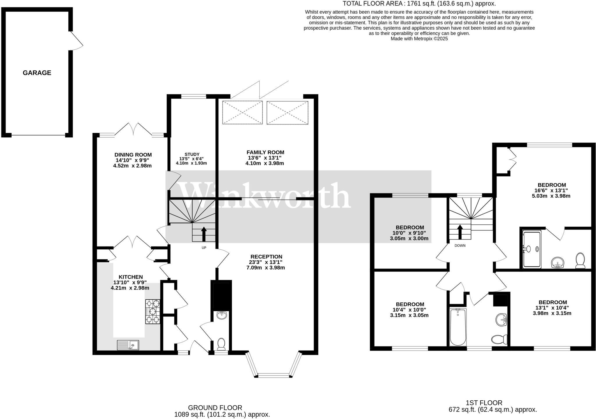
**Standout Features:**
- Modern detached house in a desirable cul-de-sac
- Imaginatively extended with flexible living spaces
- Spacious main reception room with bay window and fireplace
- Bright family room with Velux windows and bi-folding doors to the garden
- Four well-proportioned bedrooms, including en suite in the principal bedroom
- Lovely south-facing rear garden with patio and vegetable area
- Ample driveway parking and brick garage
**Summary:**
Discover a stylish and flexible family home nestled in the sought-after cul-de-sac of Worlingham, perfect for families seeking modern convenience and community spirit. This thoughtfully extended modern detached house boasts over 1,700 square feet of versatile living space, ideal for growing families. The generous reception rooms are bathed in natural light, with a charming main room featuring an inviting fireplace and a magnificent rear family room that flows seamlessly to the outdoor patio through bi-folding doors.
Upstairs, four spacious bedrooms provide comfort, with the principal suite enjoying the luxury of an en suite shower. A family bathroom adds contemporary flair. The sun-drenched, south-facing garden offers a delightful retreat for gardening enthusiasts or al fresco dining, while ample driveway parking and a brick garage add practicality.
Located at the edge of the picturesque Suffolk Broads, Worlingham offers a peaceful lifestyle with easy access to vibrant market town amenities in nearby Beccles. Excellent local schools and transport links, including a train station, enhance this property’s appeal, making it a fantastic investment for families or those seeking a comfortable community setting. Be quick to explore this captivating home – opportunities like this in such a prime location don't last long!
4 bedroom detached house for sale in Rectory Lane, Worlingham, Beccles, Suffolk, NR34 — £425,000 • 4 bed • 2 bath • 1881 ft²
4 bedroom detached house for sale in Pepys Avenue, Worlingham, Beccles, Suffolk, NR34 — £450,000 • 4 bed • 2 bath • 2247 ft²
4 bedroom detached house for sale in Brookwood Close, Worlingham, NR34 — £400,000 • 4 bed • 2 bath • 1169 ft²
5 bedroom house for sale in Fairmile Close, Worlingham, NR34 — £450,000 • 5 bed • 3 bath • 2013 ft²
4 bedroom detached house for sale in Orchard Rise, Worlingham, NR34 — £360,000 • 4 bed • 1 bath
5 bedroom detached house for sale in Rectory Lane, Worlingham, Beccles, NR34 — £625,000 • 5 bed • 3 bath • 2489 ft²






























































































