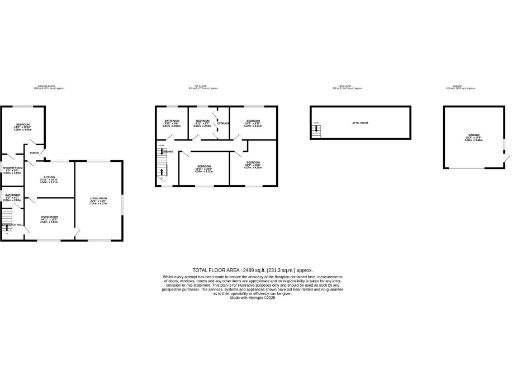
Large family home with ground-floor accessible bedroom and expansive private gardens..
Five bedrooms including accessible ground-floor double with en-suite
Triple-aspect living room; separate formal dining room
Large wrap-around private gardens; mature planting
Detached garage with potential for conversion (consents required)
Kitchen practical but offers scope for modernisation
EPC awaiting; energy performance currently unknown
Generous driveway parking; Council Tax Band D
Highly sought Worlingham location near Beccles and coast
Set on prestigious Rectory Lane in Worlingham, this five-bedroom detached home combines generous family living with clear multi-generational potential. Spacious triple-aspect living and a formal dining room create flexible reception space, while a practical kitchen offers a blank canvas for modernisation to personal taste.
Ground-floor accommodation includes a double bedroom with an en-suite shower, previously adapted for wheelchair use — ideal for guests, extended family or accessible living. Upstairs provides four further bedrooms and a well-appointed four-piece family bathroom, all arranged around bright, airy landing spaces.
The property occupies a large wrap-around plot with fully enclosed, private gardens, mature planting and a detached garage with conversion potential (subject to necessary consents). Driveway parking is generous. Note: EPC is currently awaiting, the kitchen would benefit from updating for a contemporary finish, and any garage conversion would need planning approval.
Guide price £575,000–£600,000. Council Tax Band D. Freehold. This home suits families or buyers seeking substantial indoor space and private outdoor grounds close to Beccles and coast links.
5 bedroom house for sale in Fairmile Close, Worlingham, NR34 — £450,000 • 5 bed • 3 bath • 2013 ft²
4 bedroom detached house for sale in Rectory Lane, Worlingham, Beccles, Suffolk, NR34 — £425,000 • 4 bed • 2 bath • 1881 ft²
4 bedroom detached house for sale in Pepys Avenue, Worlingham, Beccles, Suffolk, NR34 — £450,000 • 4 bed • 2 bath • 2247 ft²
4 bedroom detached bungalow for sale in Park Drive, Worlingham, Beccles, NR34 — £340,000 • 4 bed • 2 bath • 1289 ft²
4 bedroom detached house for sale in Rectory Lane, Worlingham, Beccles, NR34 7RF, NR34 — £425,000 • 4 bed • 2 bath • 1695 ft²
4 bedroom detached house for sale in Orchard Rise, Worlingham, Beccles, Suffolk, NR34 — £450,000 • 4 bed • 3 bath • 1761 ft²






































































































