**Standout Features:**
- Rarely available plot with approved planning permission for a contemporary detached villa.
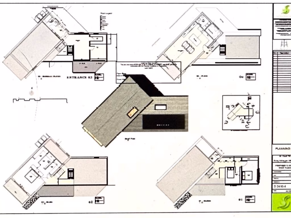
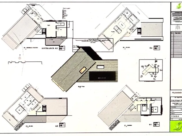
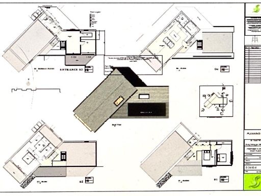
- Proposed design includes five spacious apartments with generous storage.
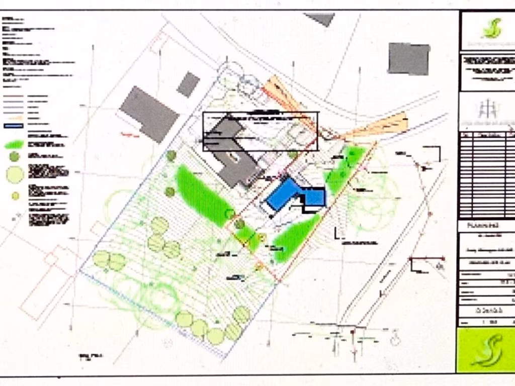
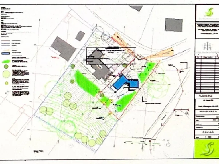
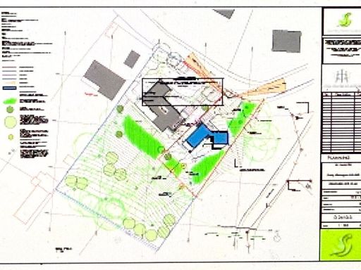
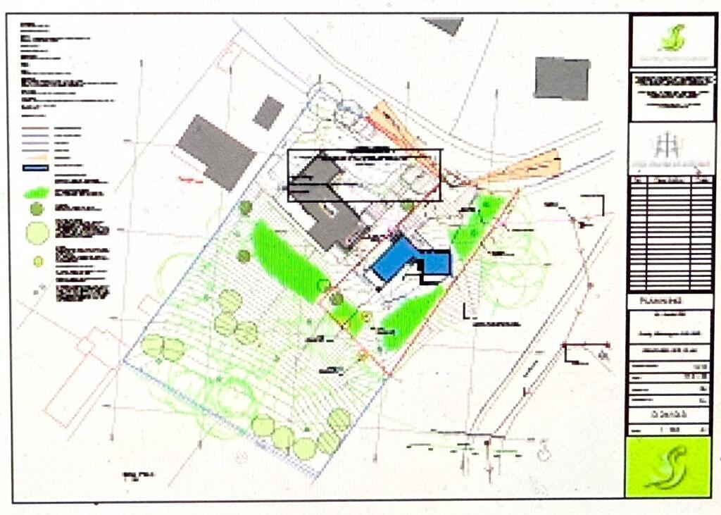
- Plot size of 0.21 acres (approx. 50m x 17m) with off-street parking and landscaped gardens.
- Located in Kilcreggan, surrounded by the stunning countryside of Argyll & Bute.
**Concise Description:**
Seize this exceptional opportunity to own a rare plot in Kilcreggan, featuring approved plans for a stunning split-level contemporary detached villa. Envision a stylish family home that boasts five well-sized apartments, thoughtfully designed with high ceilings and grand living spaces, all set within a generous 0.21-acre landscape. This idyllic location offers captivating views of Loch Long and the River Clyde, while being conveniently close to local amenities and established road networks.
This property is being sold at auction and is chain-free, presenting a unique chance for buyers to create their dream home in a serene rural setting. Approval for the design and layout has been granted, with plans highlighting additional features such as a grand lounge, kitchen/dining area, and multiple bathrooms. The plot also provides off-street parking and ample outdoor space for gardens and recreation.
Prospective buyers should act quickly, as opportunities like this don’t last long, especially in such a sought-after region. Early viewings of the plans are highly recommended to appreciate the full potential of this remarkable property.
Land for sale in Land At Ferrybrae, Kilcreggan, G84 0JL, G84 — £105,000 • 1 bed • 1 bath
Land for sale in Land At Ferrybrae, Kilcreggan, G84 0JL, G84 — £90,000 • 1 bed • 1 bath
Land for sale in Plot at Torwoodhill Road, Helensburgh, G84 8LF, G84 — £175,000 • 1 bed • 1 bath • 3000 ft²
Land for sale in Barbour Road, Kilcreggan, G84 — £150,000 • 1 bed • 1 bath • 1970 ft²
3 bedroom property for sale in Campbell Street, Helensburgh G84 9QW, G84 — £195,000 • 3 bed • 2 bath • 1400 ft²
Land for sale in Adjacent to Auchengower, Strone, Dunoon, PA23 — £75,000 • 1 bed • 1 bath • 840 ft²






























































