SE3 8TN - 2 bedroom terraced house for sale in Couthurst Road, London…

View on Property Piper

2 bedroom terraced house for sale in Couthurst Road, London, SE3

Summary - 23 COUTHURST ROAD LONDON SE3 8TN

2 bed 1 bath Terraced

**Standout Features:**
- Charming Victorian architecture in an attractive conservation area
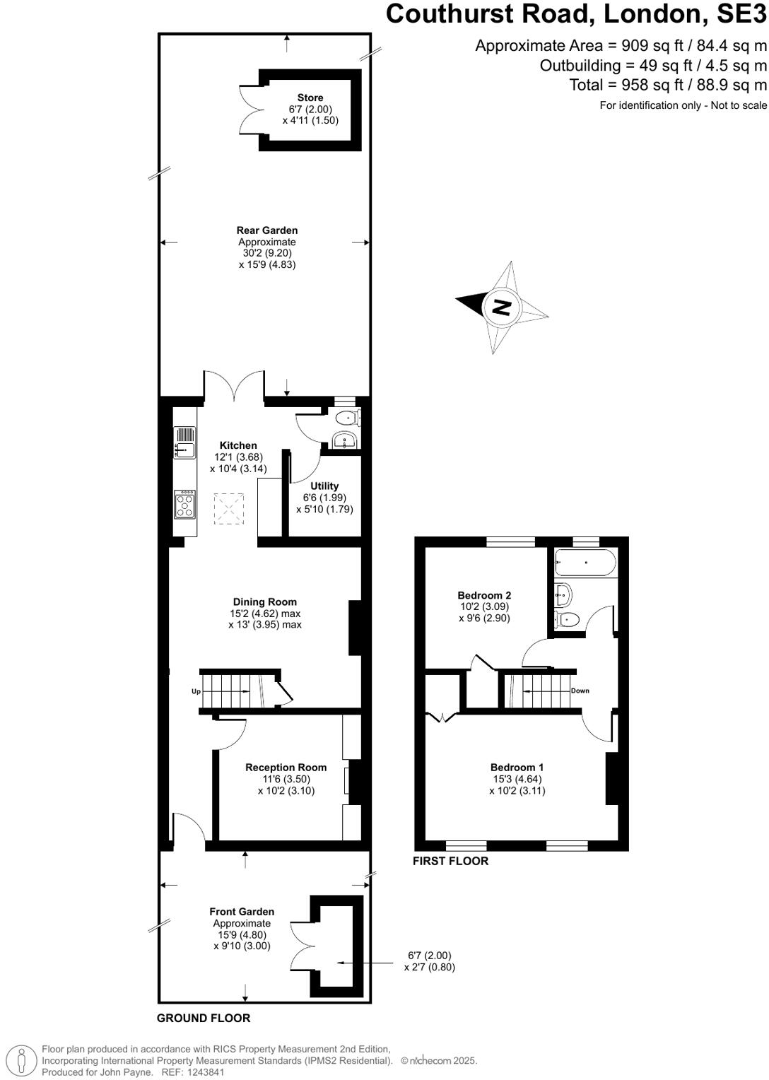
- Spacious two double bedrooms and a cozy reception room
- Open-plan kitchen/diner with high-end appliances and access to a utility room
- Stylish landscaped 30-foot East-facing garden
- Excellent transport links and proximity to shops and local amenities
- Within catchment for highly-rated primary and secondary schools

**Potential Downsides:**
- Solid brick walls with no insulation could require energy efficiency improvements
- Average crime rate for peace of mind

Step into this beautifully maintained Victorian cottage nestled in the sought-after Rectory Fields conservation area. This spacious home harmonizes period charm with modern functionality, featuring two generous double bedrooms, an inviting reception room with a feature fireplace, and a chic open-plan kitchen/diner designed for contemporary living. The well-appointed utility room and convenient ground floor cloakroom add to its appeal.

Enjoy the serene East-facing garden, perfect for outdoor gatherings or a quiet retreat. With excellent local amenities—including shops, cafes, and parks—just moments away, plus superb transport links to North Greenwich, this property is ideal for families and first-time buyers alike. Don’t miss out on the chance to own this alluring home that combines comfort, style, and prime location!

Property Details

Brochure Descriptions

Image Descriptions

Floorplan Description

Rooms

Textual Property Features

Detected Visual Features

EPC Details

Nearby Schools

Nearest Bars And Restaurants

,,,,}

Nearest General Shops

,,}

Nearest Grocery shops

,,}

Nearest Supermarkets

,,}

Nearest Religious buildings

,,}

Nearest Medical buildings

,,,}

Nearest Airports

,,}

Nearest Leisure Facilities

,,,,}

Nearest Tourist attractions

,,}

Nearest Train stations

,,,,}

Nearest Bus stations and stops

,,,,}

Nearest Hotels

,,}

Tags

Local Market Stats

AirBnB Data

Similar Properties

Meta

High Res Images

Compatible Images

Low res Images

Thumbnails

Raw Images

High Res Floorplan Images

Compatible Floorplan Images

Low res Floorplan Images

FloorplanImages Thumbnail

Raw Floorplan Images