Affordable starter home with private yard and upgrade potential.
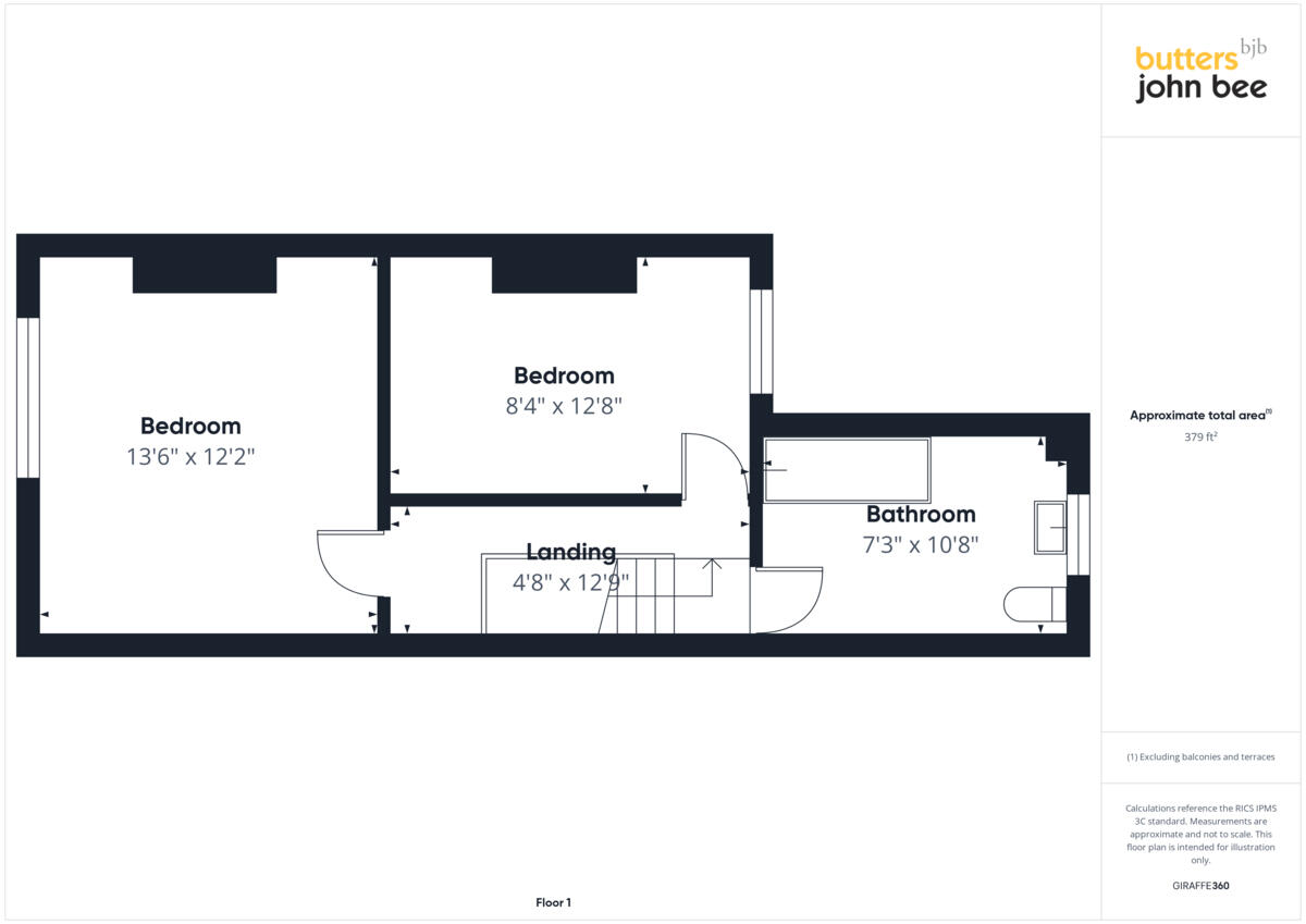
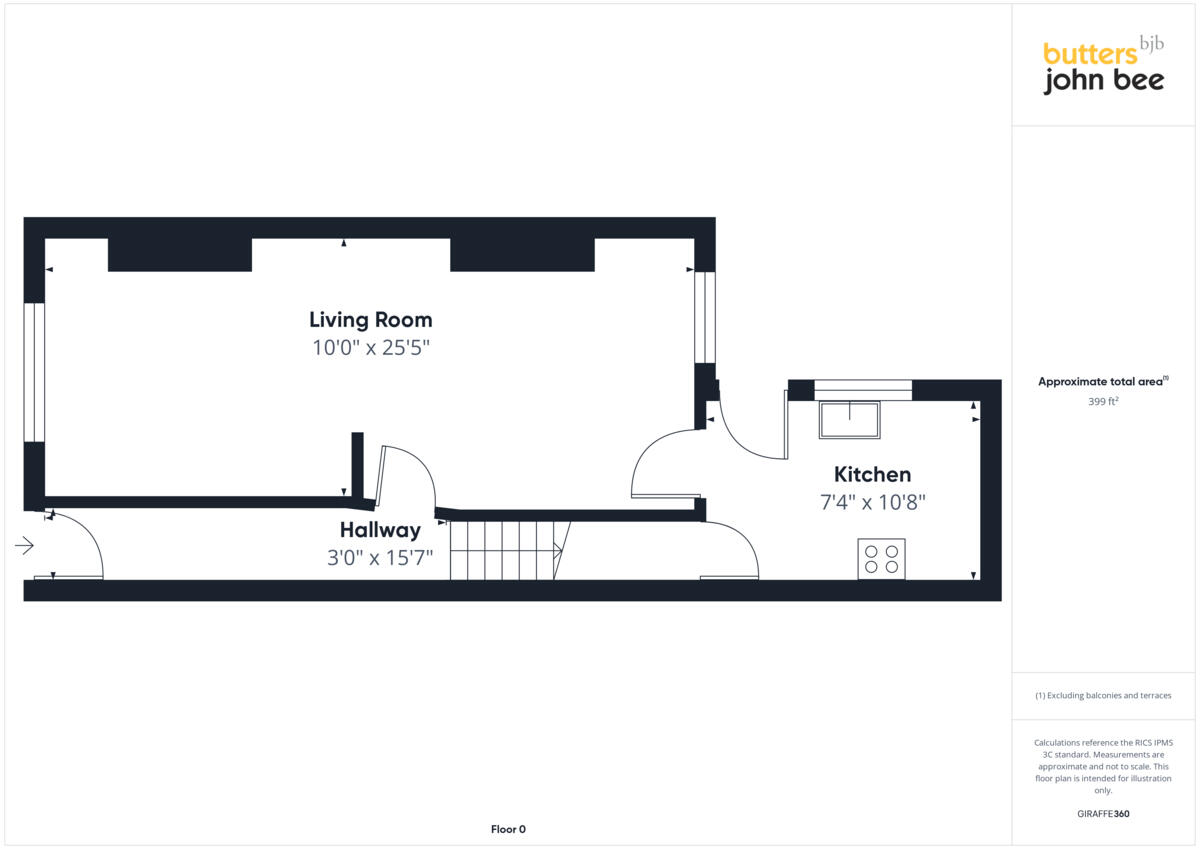
Freehold Victorian mid-terrace, two bedrooms
A compact Victorian mid-terrace offering a practical starter home in Crewe. The property has two bedrooms, a generous family bathroom and an open-plan living and dining area that benefits from good natural light. The house is freehold and move-in ready for buyers wanting an affordable entry to the market.
Highlights include a private rear yard, gas central heating with boiler and radiators, double glazing (installed before 2002) and fast broadband with excellent mobile signal. Council tax is very cheap, helping keep ongoing costs low.
Buyers should be aware this is an older solid-brick house built before 1900 and likely has no cavity wall insulation. The description and images note potential damp and the building will benefit from energy-efficiency upgrades and general modernization. The plot is small and the neighbourhood has above-average crime and higher area deprivation, which may affect long-term resale or rental appeal.
This home suits first-time buyers seeking an affordable, characterful property to personalise and improve. With good local schools nearby and straightforward layout, it offers clear potential for staged upgrades to increase comfort and value.
2 bedroom terraced house for sale in Walthall Street, Crewe, CW2 — £135,000 • 2 bed • 1 bath
3 bedroom terraced house for sale in Madeley Street, Crewe, Cheshire, CW2 — £130,000 • 3 bed • 1 bath • 1189 ft²
2 bedroom terraced house for sale in Ridgway Street, Crewe, Cheshire, CW1 — £130,000 • 2 bed • 1 bath • 816 ft²
3 bedroom terraced house for sale in Spring Gardens, Crewe, CW1 — £150,000 • 3 bed • 1 bath • 1002 ft²
2 bedroom terraced house for sale in Newdigate Street, Crewe, Cheshire, CW1 — £90,000 • 2 bed • 1 bath • 872 ft²
3 bedroom terraced house for sale in Audley Street, Crewe, CW1 — £130,000 • 3 bed • 1 bath • 941 ft²






















































