Affordable three-bedroom terrace near Crewe town centre — ideal to renovate or rent out.
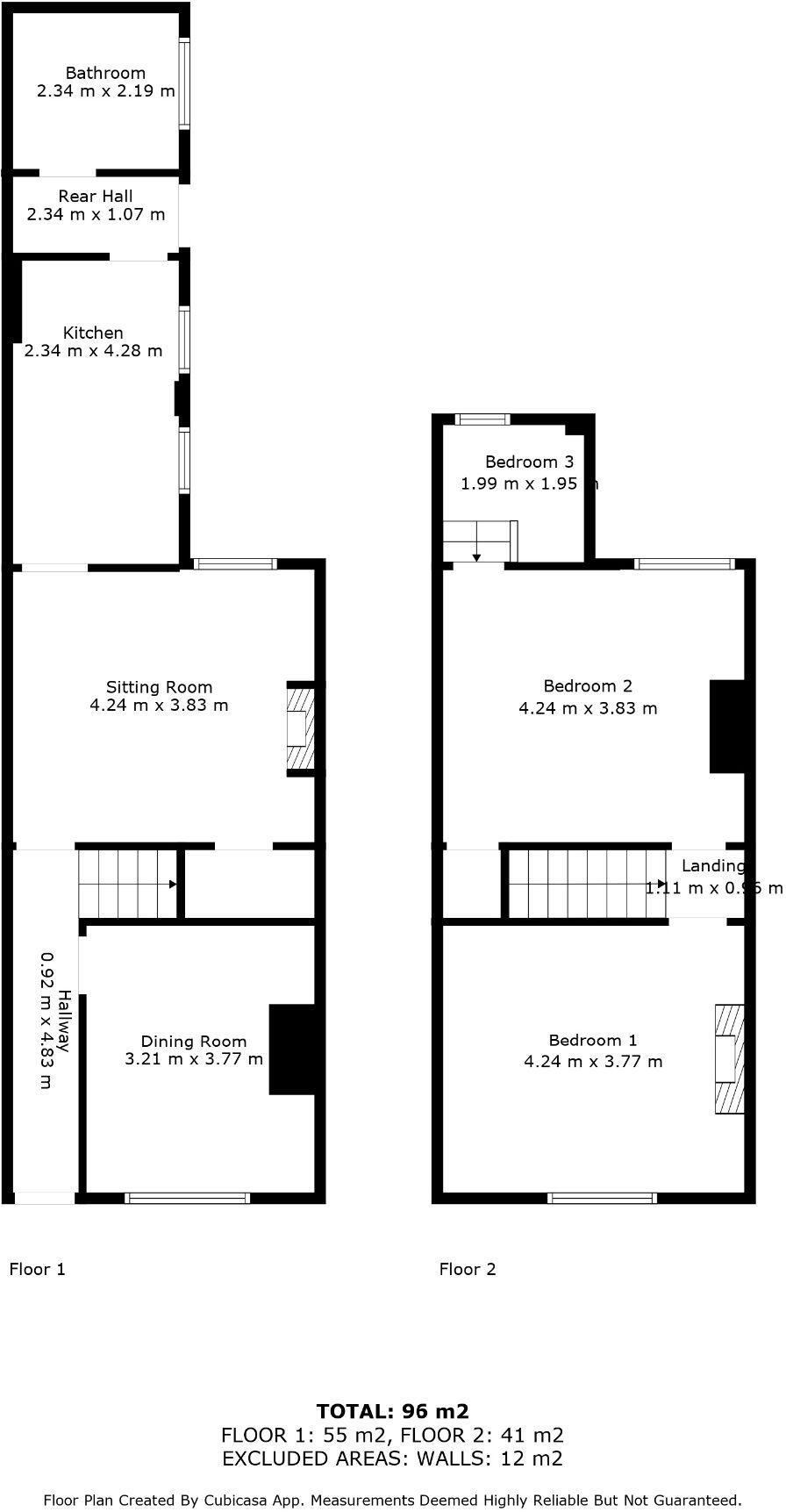
Three bedrooms and two reception rooms, approx. 941 sq ft
This red-brick Victorian mid-terraced house offers practical, entry-level accommodation in central Crewe. The layout includes three bedrooms, two reception rooms and a bathroom across about 941 sq ft, plus an enclosed rear garden. It suits first-time buyers wanting a town-centre home or investors targeting rental demand close to shops and transport.
The property is freehold, double-glazed and heated by a mains gas boiler with radiators. It benefits from excellent mobile signal and fast broadband, plus easy walking access to the town centre, retail park and local amenities. Council Tax is low (Band A), which helps running costs.
Be candid about condition: the house will likely need internal modernisation and cosmetic refurbishment to meet contemporary tastes. There is no off-street parking and the plot is small, typical of late-Victorian terraces. The immediate area records high crime and significant deprivation; buyers should weigh location advantages against these local issues.
Overall this is a straightforward, affordable urban terrace with clear potential for upgrading or steady rental income. It is best for cash-conscious first-time buyers prepared to carry out improvements or investors seeking a lettable, centrally located property.
2 bedroom terraced house for sale in Oakley Street, Crewe, Cheshire, CW1 — £125,000 • 2 bed • 1 bath • 898 ft²
2 bedroom terraced house for sale in Gresty Terrace, Crewe, CW1 — £130,000 • 2 bed • 1 bath • 872 ft²
3 bedroom terraced house for sale in Ernest Street, Crewe, Cheshire, CW2 — £135,000 • 3 bed • 1 bath • 910 ft²
3 bedroom terraced house for sale in Adelaide Street, Crewe, Cheshire, CW1 — £100,000 • 3 bed • 1 bath • 1051 ft²
1 bedroom terraced house for sale in Derrington Avenue, Crewe, CW2 — £85,000 • 1 bed • 1 bath • 1183 ft²
3 bedroom terraced house for sale in Heathfield Avenue, Crewe, CW1 — £159,950 • 3 bed • 1 bath • 934 ft²


































































