**Standout Features:**
- Charming 2-bedroom Victorian stone cottage
- South-facing mature garden offering privacy and tranquility
- Detached garage/workshop and off-street parking
- Central location in the coastal village of Brora, close to amenities
- In need of renovation with great potential for customization
**Potential Concerns:**
- Requires modernisation throughout
- Garden maintenance may be needed due to age
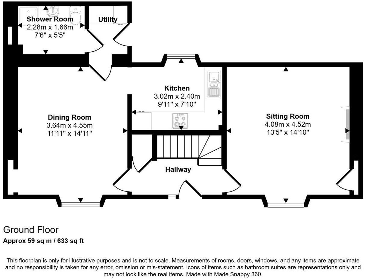
Discover the quaint charm of this 2-bedroom stone cottage nestled in the picturesque village of Brora, overlooking the serene Brora River and lush woodland. With a generous 1,076 square feet of living space, this property features a south-facing garden, perfect for enjoying the sun, along with a detached garage/workshop that provides flexibility for hobbies or storage. A traditional layout boasts a neutrally decorated sitting room, a dining room, and a modern kitchen equipped with stainless steel appliances, making it ideal for family gatherings.
Although the cottage requires renovation, it holds immense potential to create a cozy retreat tailored to your taste. The first floor accommodates two double bedrooms with garden views and a bathroom that adds to the home's charm. Located within walking distance to primary schools, shops, medical practices, and public transport, this property is perfectly positioned for family living or as an investment opportunity. Don’t miss the chance to turn this character-filled cottage into your dream home!
3 bedroom villa for sale in Dunmore, Harbour Road, Brora, Sutherland KW9 6QF, KW9 — £160,000 • 3 bed • 1 bath • 731 ft²
3 bedroom detached house for sale in Bet-sys-mith, 14 Market Street, Brora, Sutherland KW9 PX, KW9 — £110,000 • 3 bed • 1 bath • 732 ft²
3 bedroom detached bungalow for sale in Colbheinn Road, Brora, KW9 — £240,000 • 3 bed • 1 bath • 821 ft²
3 bedroom detached house for sale in Mount Pleasant, 4 Academy Street, Brora, Sutherland KW9 6QP, KW9 — £260,000 • 3 bed • 2 bath • 1173 ft²
5 bedroom detached bungalow for sale in Duncarin, Mosshill, Brora, Sutherland KW9 6NG, KW9 — £350,000 • 5 bed • 2 bath • 2206 ft²
4 bedroom detached house for sale in Pier House, Harbour Road, Brora, Sutherland KW9 6QF, KW9 — £195,000 • 4 bed • 2 bath • 1496 ft²


















































































