Three-bedroom cottage close to beach, requiring modernisation and offering renovation potential.
Traditional stone cottage with exposed stone and fireplace
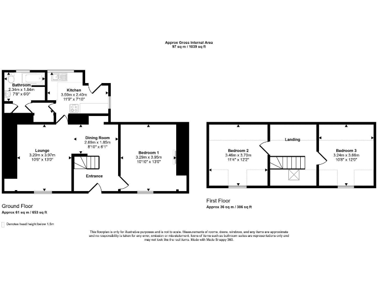
Set in Lower Brora, this traditional stone cottage offers three bedrooms and coastal character within a compact 732 sq ft footprint. The property is freehold, benefits from off-street parking and a small rear garden, and sits close to the beach, river mouth and village amenities — a genuine village-coast opportunity for someone wanting character close to the sea.
The interior retains period features such as an exposed stone wall and fireplace; the layout includes a ground-floor bedroom, open-plan lounge/diner and an extended kitchen, with two further bedrooms on the first floor beneath coombed ceilings. Practical modern essentials are in place: good mobile signal and fast broadband, and council tax is low.
Important to note: the cottage needs modernising and upgrading throughout. The home report should be read for detail — buyers should expect refurbishment costs to bring kitchens, bathrooms, heating and finishes up to current standards. The plot and rooms are modest in size, and outside space is limited to a small rear garden and a gravelled forecourt area.
This house will suit a buyer seeking a project with immediate coastal character — first-time buyers prepared to renovate, or those wanting a compact holiday or lock-up-and-leave base near the sea. It offers strong potential for value-add through careful updating, but is not move-in ready without investment.
3 bedroom villa for sale in Dunmore, Harbour Road, Brora, Sutherland KW9 6QF, KW9 — £160,000 • 3 bed • 1 bath • 731 ft²
2 bedroom cottage for sale in Riverside Cottage, Riverside, Brora, Sutherland KW9 6NB, KW9 — £210,000 • 2 bed • 2 bath • 1076 ft²
4 bedroom detached house for sale in Pier House, Harbour Road, Brora, Sutherland KW9 6QF, KW9 — £195,000 • 4 bed • 2 bath • 1496 ft²
Land for sale in Culgower Steading, Loth, Helmsdale, KW8 6HP, KW8 — £300,000 • 1 bed • 1 bath
3 bedroom semi-detached house for sale in 8 Dudgeon Drive, Brora, Sutherland KW9 6PN, KW9 — £115,000 • 3 bed • 1 bath • 990 ft²
3 bedroom detached bungalow for sale in Colbheinn Road, Brora, KW9 — £240,000 • 3 bed • 1 bath • 821 ft²






































































