Two ensuite bedrooms, garage and landscaped garden in a peaceful Cotswold village development..
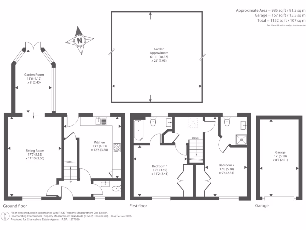
Two double bedrooms, both with en-suites
Modern kitchen/breakfast room and bright garden room
Landscaped rear garden; decent plot size
Garage plus off-road parking on private development
Oil-fired boiler and radiators (main fuel: oil)
Double glazing installed before 2002; built 1996–2002
Freehold; no flood risk, very low crime
Located 2 miles from Burford in Cotswold village setting
Set within the private Bradwell Village development, Grove Cottage is a well-proportioned two-bedroom home arranged over two floors and offering comfortable, low-traffic village living two miles from Burford. The house benefits from a modern kitchen/breakfast room, a bright garden room that overlooks a landscaped rear garden and two double bedrooms, each with an en-suite — a practical layout for couples or those wishing to downsize without compromising on ensuite convenience.
The property was built around the turn of the century and has double glazing installed before 2002 and cavity-filled walls; the main heating is an oil-fired boiler with radiators. These features support solid thermal performance but mean the property uses oil fuel and may not offer the same efficiencies as mains gas or newer renewable systems — something to consider for running costs and future upgrades.
Externally there is a decent plot with a landscaped rear garden, garage and off-road parking. The location is peaceful with very low crime, excellent mobile signal and fast broadband, and sits in an affluent, rural village setting ideal for those seeking Cotswold character and easy access to Burford’s amenities. Council tax is moderate and there is no identified flood risk.
Overall this cottage-style home suits buyers looking to downsize into a manageable, characterful property with room for entertaining and flexible living. It offers immediate move-in practicality with straightforward scope for energy or cosmetic improvements if desired.
2 bedroom end of terrace house for sale in Glissard Way, Bradwell Village, Burford, OX18 — £325,000 • 2 bed • 2 bath • 840 ft²
2 bedroom semi-detached house for sale in Windrush Close, Burford, Oxfordshire, OX18 — £370,000 • 2 bed • 1 bath • 737 ft²
3 bedroom detached house for sale in Woodside Drive, Bradwell Village, Nr Burford, OX18 — £425,000 • 3 bed • 2 bath • 967 ft²
3 bedroom detached house for sale in Bradwell Village, Nr. Burford, OX18 — £400,000 • 3 bed • 2 bath • 970 ft²
2 bedroom terraced house for sale in Bradwell Village, Oxfordshire, OX18 — £300,000 • 2 bed • 2 bath • 853 ft²
3 bedroom detached house for sale in Bradwell Village, Burford, Oxfordshire, OX18 — £425,000 • 3 bed • 2 bath • 968 ft²






















































































