CT11 0AT - 3 bed victorian terrace near marina in King Edward Road, CT…

View on Property Piper

3 bedroom terraced house for sale in King Edward Road, Ramsgate, Kent, CT11

Summary - 7 KING EDWARD ROAD RAMSGATE CT11 0AT

3 bed 1 bath Terraced

Chain-free three-bed terrace near Ramsgate station — good scope for refurbishment and rental potential..
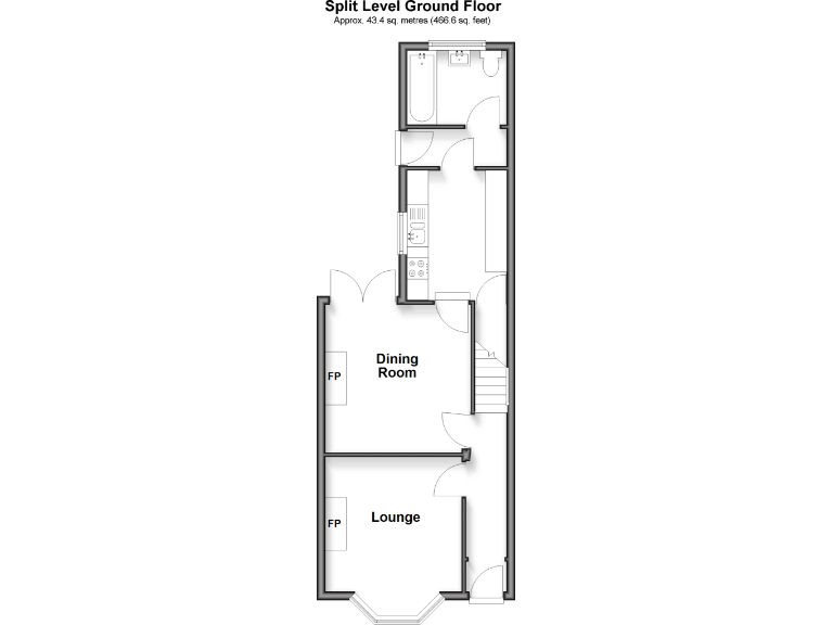
Three bedrooms in a Victorian mid-terrace, 862 sq ft
Set on a quiet cul-de-sac just a short walk from Ramsgate station and the marina, this three-bedroom Victorian mid-terrace offers a practical, commuter-friendly layout with 862 sq ft of living space. New carpets and a modern kitchen make the home comfortable to move into straightaway, and a sunny low-maintenance rear garden adds outdoor space without heavy upkeep.

The property will suit first-time buyers or downsizers seeking character and location rather than a turnkey finish. Constructed circa early 20th century with solid brick walls, the house shows signs of age: there are reported damp issues and elements that need modernisation. Insulation in the walls is assumed absent and some rooms may benefit from further updating to improve energy efficiency.

Chain-free sale and mains gas heating via a boiler and radiators simplify purchase and everyday running. The small plot and modest room sizes reflect the period layout, but the accommodation is sensible: two reception rooms, kitchen, ground-floor bathroom, and three bedrooms upstairs. Local schools rated Good are within easy reach, with a variety of shops, cafés and leisure options nearby.

This is a realistic opportunity to secure a well-located Victorian terrace with scope to increase value through targeted refurbishment. Buyers should budget for remedial works (damp investigation and possible repairs, insulation upgrades, roof/chimney checks) and verify all services and consents before purchase.

Property Details

Image Descriptions

Floorplan Description

Rooms

Textual Property Features

Target Audience

AI Tags

Detected Visual Features

EPC Details

Nearby Schools

Nearest Bars And Restaurants

,,,,}

Nearest General Shops

,,}

Nearest Grocery shops

,,}

Nearest Supermarkets

,,}

Nearest Religious buildings

,,}

Nearest Medical buildings

,,,}

Nearest Leisure Facilities

,,,,}

Nearest Tourist attractions

,,}

Nearest Train stations

,,,,}

Nearest Bus stations and stops

,,,,}

Nearest Hotels

,,}

Tags

Local Market Stats

AirBnB Data

Similar Properties

Meta

High Res Images

Compatible Images

Low res Images

Thumbnails

Raw Images

High Res Floorplan Images

Compatible Floorplan Images

Low res Floorplan Images

FloorplanImages Thumbnail

Raw Floorplan Images