CT11 0AY - 3 bedroom terraced house for sale in Grosvenor Road, Ramsga…

View on Property Piper

3 bedroom terraced house for sale in Grosvenor Road, Ramsgate, Kent, CT11

Summary - 11 GROSVENOR ROAD RAMSGATE CT11 0AY

3 bed 1 bath Terraced

**Standout Features:**
- Mid-terraced Victorian townhouse in Ramsgate
- Chain-free sale, ready for immediate move-in
- Low-maintenance, sunny courtyard garden
- Spacious open-plan lounge/dining area
- Three well-proportioned bedrooms
- Convenient utility room and family bathroom
- Prime coastal location, ideal for families or first-time buyers
- Fast broadband and excellent mobile signal

**Potential Downsides:**
- Above average crime rate in the area
- Solid brick walls lacking insulation could impact energy efficiency

Discover the charming potential of this mid-terraced Victorian townhouse nestled in the heart of Ramsgate. With a blend of original character and modern living, this home features a generous open-plan lounge and dining area that invites family gatherings and easy entertaining. The light-filled kitchen and practical utility room enhance day-to-day living. Enjoy the comfort of three spacious bedrooms and a family bathroom, perfect for a growing household.

The property's sunny courtyard garden offers a serene escape or a low-maintenance outdoor area. Families will appreciate the nearby good-rated schools and vibrant local amenities. Although the area has an above-average crime rate, the location's coastal allure and ready-to-move-in condition provide a unique opportunity for savvy buyers. Don't miss out on owning this delightful home—properties like this in Ramsgate are in high demand and won't last long!

Property Details

Image Descriptions

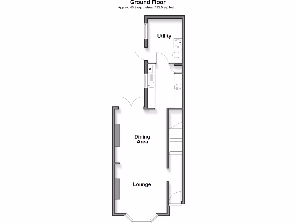
Floorplan Description

Rooms

Textual Property Features

Detected Visual Features

EPC Details

Nearby Schools

Nearest Bars And Restaurants

,,,,}

Nearest General Shops

,,}

Nearest Grocery shops

,,}

Nearest Supermarkets

,,}

Nearest Religious buildings

,,}

Nearest Medical buildings

,,,}

Nearest Leisure Facilities

,,,,}

Nearest Tourist attractions

,,}

Nearest Train stations

,,,,}

Nearest Bus stations and stops

,,,,}

Nearest Hotels

,,}

Tags

Local Market Stats

AirBnB Data

Similar Properties

Meta

High Res Images

Compatible Images

Low res Images

Thumbnails

Raw Images

High Res Floorplan Images

Compatible Floorplan Images

Low res Floorplan Images

FloorplanImages Thumbnail

Raw Floorplan Images