Substantial plot, three beds, garage — ideal for a renovation project.
Large, enclosed plot with scope to extend or redevelop
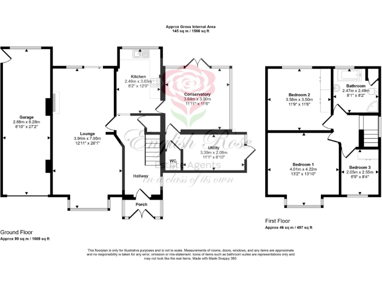
Set on a substantial plot in Kirkby In Ashfield, this 1930s detached home offers significant scope for a family seeking space and character. The ground floor features a large bay-fronted lounge, a sunny conservatory overlooking the garden, separate utility and WC, plus a practical kitchen. Outside there is a circular driveway, an additional separate driveway and a garage providing generous parking and storage.
The property requires modernisation throughout — it currently uses electric storage heaters and room heaters and will need updating to current heating and energy standards. With three bedrooms and one bathroom, the layout suits a family but may need alteration to suit modern living. Although double glazed, the installation date is unknown and some refurbishment works are likely.
The large, enclosed garden and overall plot are the main value drivers, offering potential to extend or reconfigure the house (subject to planning consent) or to create distinct outdoor spaces. Practical benefits include fast broadband, no flood risk and freehold tenure. Note: the immediate area records above-average crime, and the house is sold as needing renovation, so budget for improvements should be allowed.
3 bedroom detached house for sale in Seagrave Avenue, Kirkby-In-Ashfield, Nottinghamshire, NG17 9AW, NG17 — £250,000 • 3 bed • 1 bath • 1048 ft²
3 bedroom detached house for sale in North Street, Kirkby-in-Ashfield, Nottingham, Nottinghamshire, NG17 — £180,000 • 3 bed • 1 bath • 1315 ft²
3 bedroom bungalow for sale in Greenacres, Kirkby-in-Ashfield, Nottingham, Nottinghamshire, NG17 — £200,000 • 3 bed • 2 bath • 958 ft²
3 bedroom semi-detached house for sale in Oak Street, Kirkby-In-Ashfield, Nottingham, NG17 — £160,000 • 3 bed • 1 bath • 760 ft²
3 bedroom semi-detached house for sale in Regent Street, Kirkby-In-Ashfield, Nottingham, NG17 — £250,000 • 3 bed • 1 bath • 1002 ft²
3 bedroom bungalow for sale in Beverley Drive, Kirkby-in-Ashfield, Nottingham, Nottinghamshire, NG17 — £220,000 • 3 bed • 1 bath • 775 ft²


















































































