Spacious period home with garden and coastal views, ideal for downsizers seeking room to adapt.
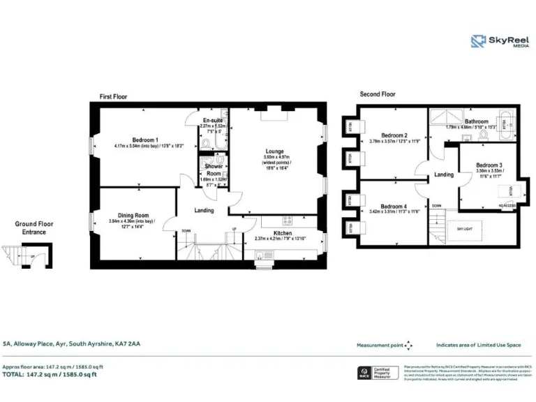
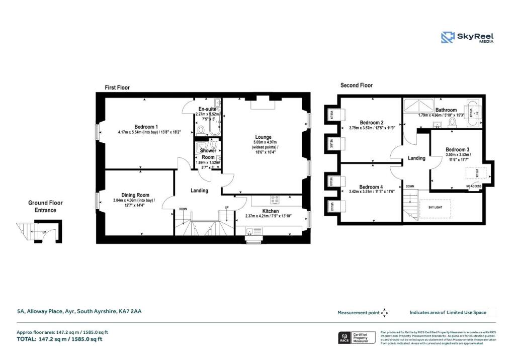
Victorian sandstone upper duplex with original period features
Four double bedrooms, one en-suite; three bathrooms in total
Private walled garden, shed and private driveway parking
Dining room and rear rooms enjoy coastal views
Many rooms well restored; some areas require further renovation
EPC Band D; Council Tax Band E (above average)
Upper-level layout with internal stairs — limited accessibility
Located near beaches, parks, golf courses and central amenities
Set within a handsome Victorian sandstone terrace on Alloway Place, this upper duplex conversion offers generous rooms, high ceilings and period character across two light-filled levels. The layout includes a formal lounge, dining room with coastal views, a modern fitted kitchen, four double bedrooms (one en-suite) and three bathrooms — well suited to someone moving from a larger house who still wants space for guests or hobbies.
Outside there is a private walled garden, shed and a private driveway for off-street parking. The location is a major draw: close to Ayr town centre, beaches, parks and renowned golf courses, with excellent mobile and broadband connectivity and convenient rail and bus links.
Buyers should note a mixed condition report across the building: while many rooms are well presented with restored features — hardwood floors, original doors and decorative coving — other areas will need renovation or updating. EPC is Band D and council tax is Band E (above average). The property is sold freehold and, being an upper duplex with internal stairs, it may present accessibility challenges for those with limited mobility. The surrounding neighbourhood is classified as an ageing, higher-deprivation area, which may influence local services and resale considerations.
5 bedroom semi-detached house for sale in Alloway Park, Ayr, KA7 — £650,000 • 5 bed • 1 bath • 3800 ft²
3 bedroom character property for sale in Park Circus, Ayr, KA7 — £195,000 • 3 bed • 1 bath • 851 ft²
4 bedroom apartment for sale in 10A Barns Street, Ayr, KA7 1XA, KA7 — £295,000 • 4 bed • 4 bath • 2777 ft²
3 bedroom house for sale in Midton Road, Ayr, South Ayrshire, KA7 — £300,000 • 3 bed • 1 bath • 1688 ft²
3 bedroom apartment for sale in 12 Ailsa Place, Ayr, KA7 1JG, KA7 — £135,000 • 3 bed • 1 bath • 1066 ft²
3 bedroom apartment for sale in 22 Carrick Road, Ayr, KA7 2RB, KA7 — £235,000 • 3 bed • 2 bath • 1012 ft²






































































































































































