Spacious coastal home with flexible living and private gardens.
Period stone villa with original plasterwork and tall ceilings
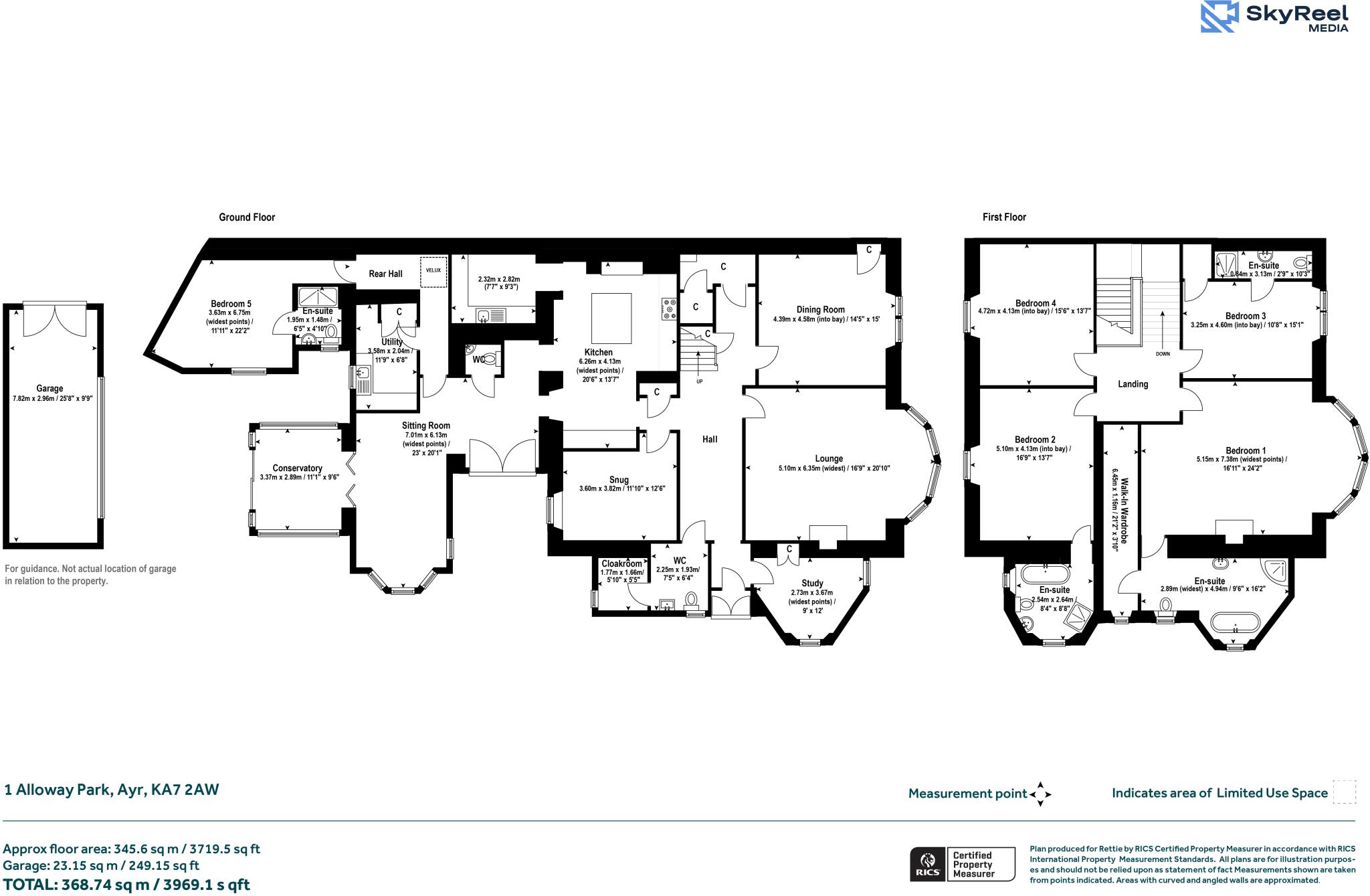
This substantial Victorian semi-detached villa, built in 1880, offers almost 3,800 sq ft of flexible accommodation across multiple storeys. Tall ceilings, original plasterwork, wood panelling and large windows create impressive room proportions and period character throughout. The layout includes five bedrooms, generous reception rooms and a bright conservatory opening onto enclosed walled gardens.
Practical benefits include a gated driveway with ample off-street parking, a large detached garage, fast broadband and excellent mobile signal. The property includes co-ownership of the paddock/field opposite, and sits in a conservation area within easy reach of Ayr town centre, beach and strong transport links — appealing for families seeking spacious coastal living.
Buyers should note this is a large historic house in a very deprived local area and currently records a high council tax burden (Band G). The official EPC is band E. Tenure details are not confirmed in the supplied data. The house has only one bathroom recorded against five bedrooms, which may require alteration or additional bathroom installation for modern family use.
Overall this is a rare, characterful home with significant space and period detail — well suited to buyers willing to invest in upgrades and internal reconfiguration to maximise comfort and rental or family potential.
4 bedroom apartment for sale in Alloway Place, Ayr, South Ayrshire, KA7 — £275,000 • 4 bed • 3 bath
5 bedroom detached house for sale in 37 Castlehill Road, Ayr, KA7 2HY, KA7 — £550,000 • 5 bed • 5 bath • 3261 ft²
6 bedroom town house for sale in 7 Carrick Avenue, Ayr, KA7 2SN, KA7 — £425,000 • 6 bed • 3 bath • 2519 ft²
4 bedroom detached house for sale in Ardrossan Road, Saltcoats, North Ayrshire, KA21 — £370,000 • 4 bed • 2 bath • 1781 ft²
3 bedroom house for sale in Midton Road, Ayr, South Ayrshire, KA7 — £300,000 • 3 bed • 1 bath • 1688 ft²
3 bedroom semi-detached villa for sale in Glenallo, Craigie Road, Ayr, KA8 — £295,000 • 3 bed • 3 bath • 1230 ft²






































































































































































































































